← Horsham District Council

Status

Registered House extension
Received
Last month
New homes
0

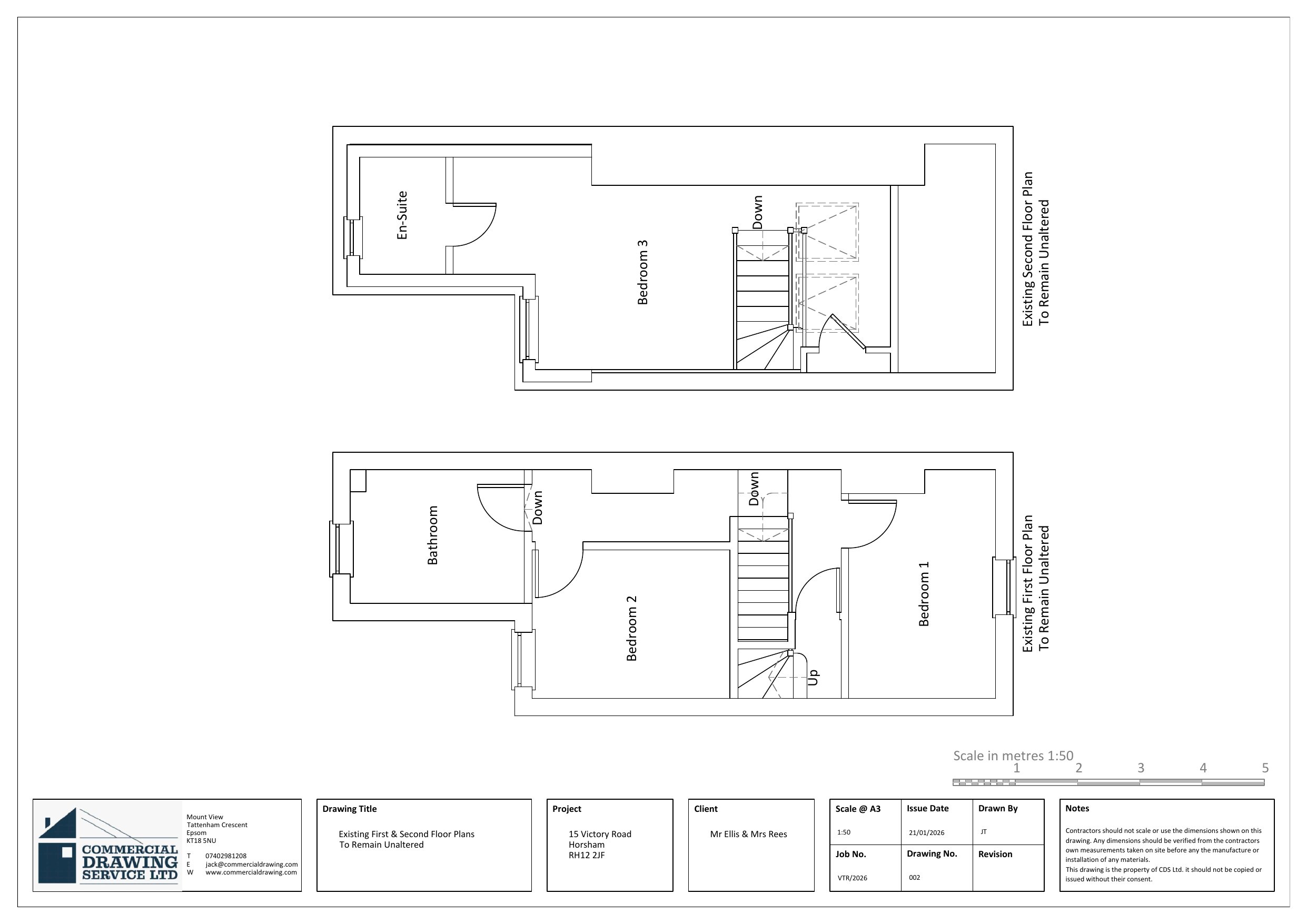
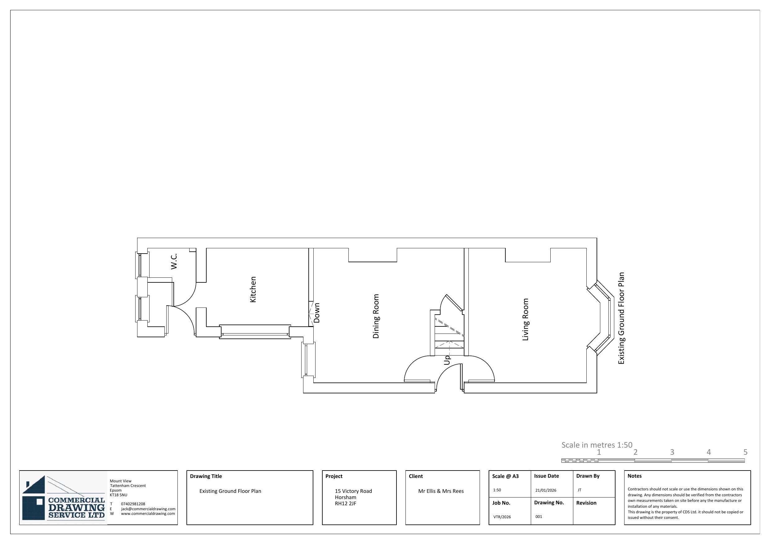
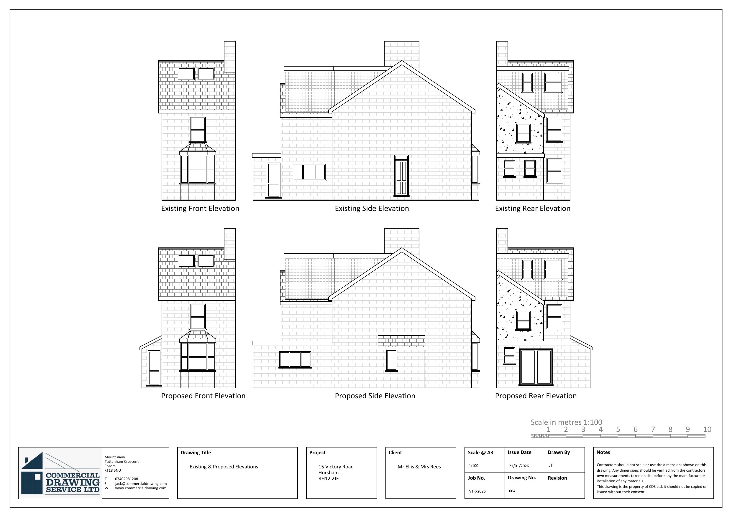
Full proposal

Erection of a single storey infill extension and a side porch.

Documents

Application form
Archived · Original link
CIL Additional Info Form
Archived · Original link
Latest plan
Archived · Original link
Consultation Response
Archived · Original link

Have your say

Your comment matters. Councils must consider every representation that raises material planning considerations.

Write a comment