← Horsham District Council

Status

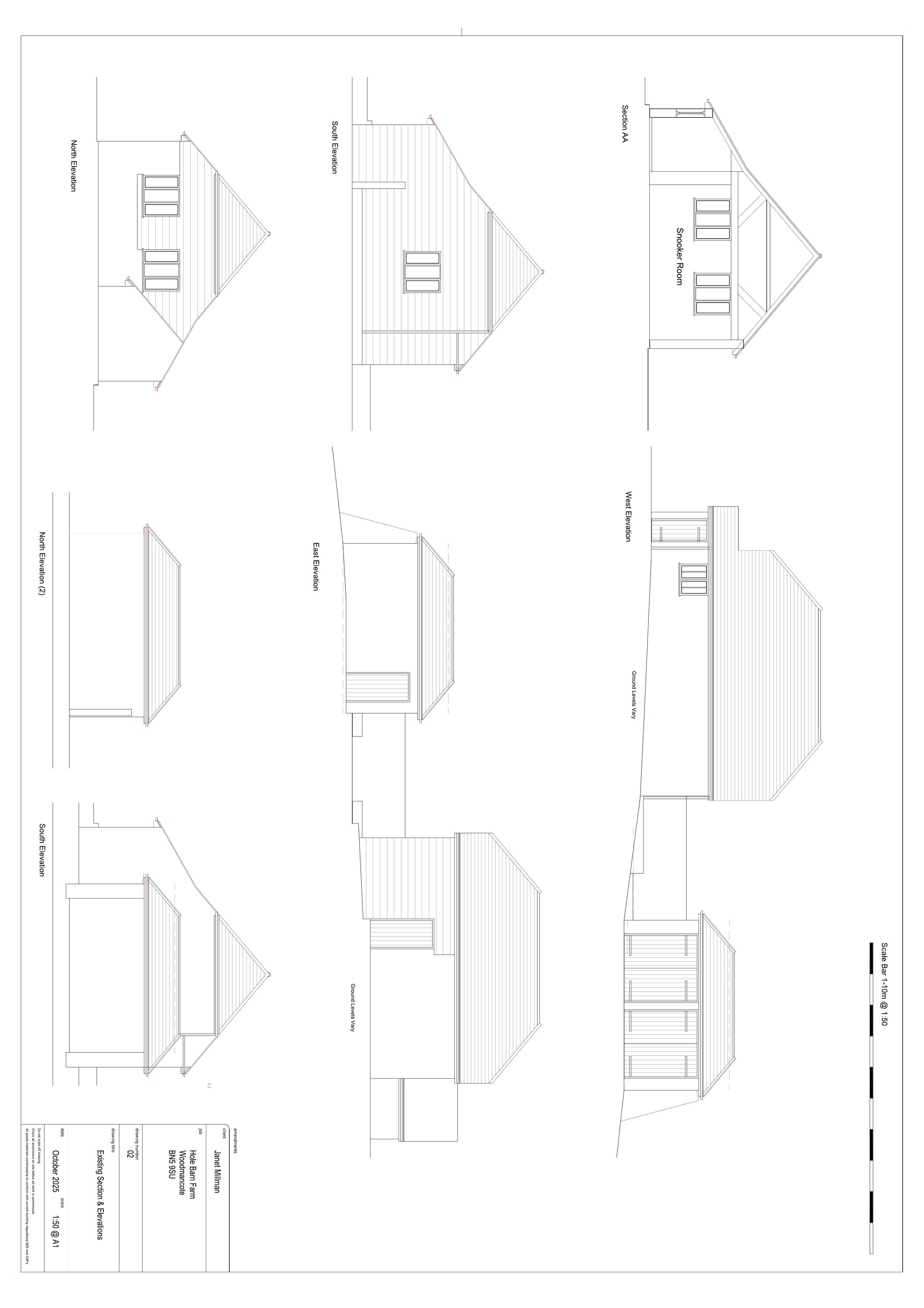
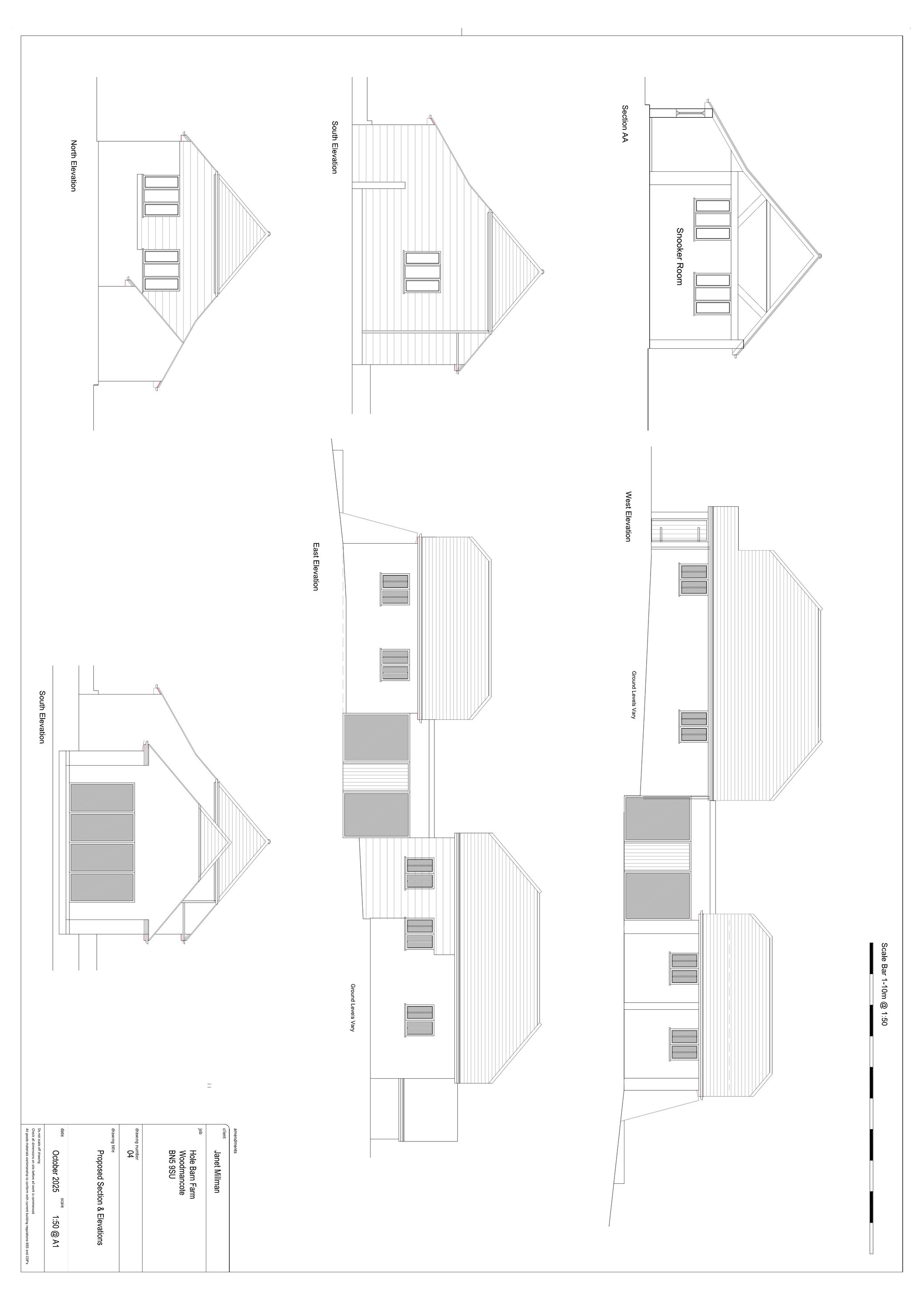
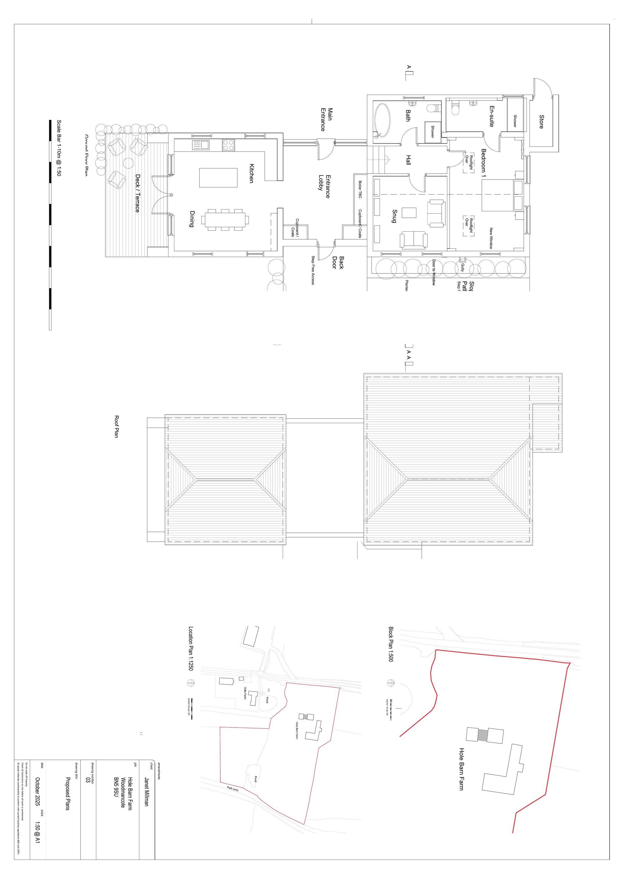
Registered House extension
Received
Last month
New homes
0

Full proposal

Single storey infill extension and conversion of garage into annexe accommodation including 1 no. bedroom, lounge, kitchen and bathroom.

Documents

Application form
Archived · Original link
Supporting statement
Archived · Original link
CIL
CIL Additional Info Form
Archived · Original link
Consultation Response
Archived · Original link
Consultation Response
Archived · Original link
Site Notice
Archived · Original link
Consultation Response
Archived · Original link

Have your say

Your comment matters. Councils must consider every representation that raises material planning considerations.

Write a comment