← Horsham District Council

Status

Registered New housing
Received
Last month
New homes
1

Full proposal

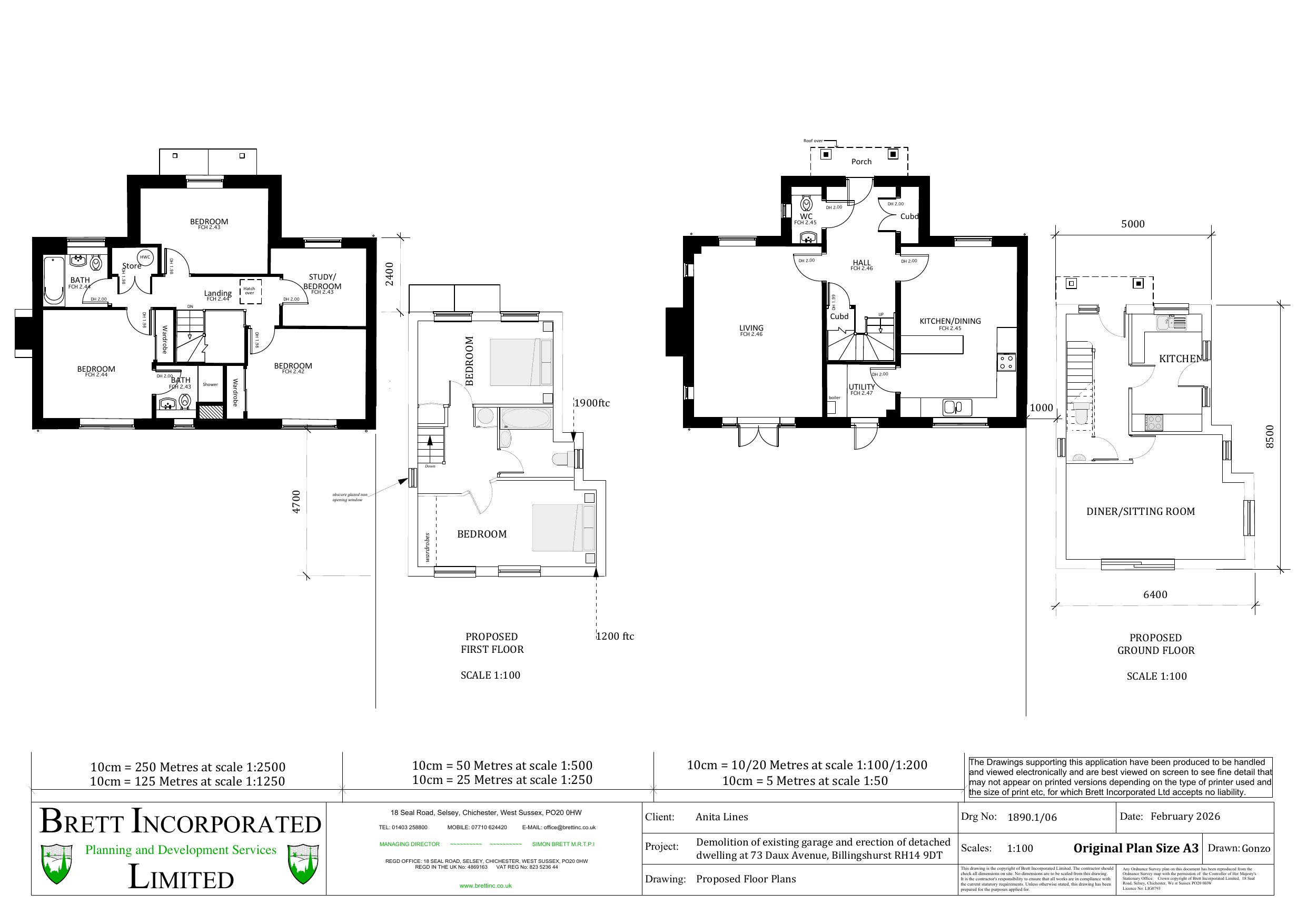
Demolition of existing garage and erection of a detached dwelling.

Documents

APPLICATION FORM
Application form
Not yet archived · Original link
CIL ADDITIONAL INFORMATION FORM
CIL Additional Info Form
Not yet archived · Original link
DESIGN AND ACCESS STATEMENT
Design and Access Statement
Not yet archived · Original link
EXISTING AND PROPOSED BLOCK PLANS - 189.1/02
Latest plan
Not yet archived · Original link
EXISTING ELEVATIONS - 189.1/05
Latest plan
Not yet archived · Original link
EXISTING FLOOR PLANS - 189.1/04
Latest plan
Not yet archived · Original link
PARISH COUNCIL RESPONSE
Consultation Response
Not yet archived · Original link
PROPOSED BLOCK PLAN - 189.1/03
Latest plan
Not yet archived · Original link
PROPOSED ELEVATIONS - 189.1/07
Latest plan
Not yet archived · Original link
SOUTHERN WATER
Consultation Response
Not yet archived · Original link
SPECIFICATION TREES 1741 TO 1765
Supporting statement
Not yet archived · Original link
SPECIFICATION FOR TREE 1765
Supporting statement
Not yet archived · Original link
SPECIFICATIONS TREES 1740 TO 1773
Supporting statement
Not yet archived · Original link
SPECIFICATIONS TREES 1769 TO 1773
Supporting statement
Not yet archived · Original link
SURVEY TREES 1740 TO 1773
Supporting statement
Not yet archived · Original link
TPO 1423
Supporting statement
Not yet archived · Original link

Have your say

Your comment matters. Councils must consider every representation that raises material planning considerations.

Write a comment