← Horsham District Council

Status

Registered House extension
Received
Last month
New homes
0

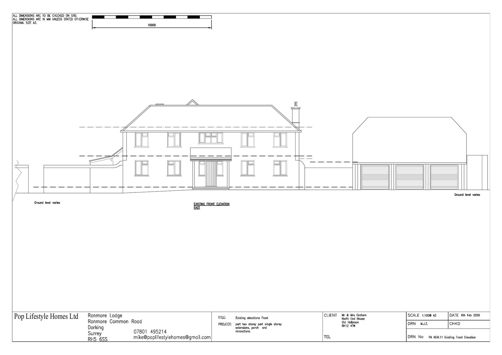
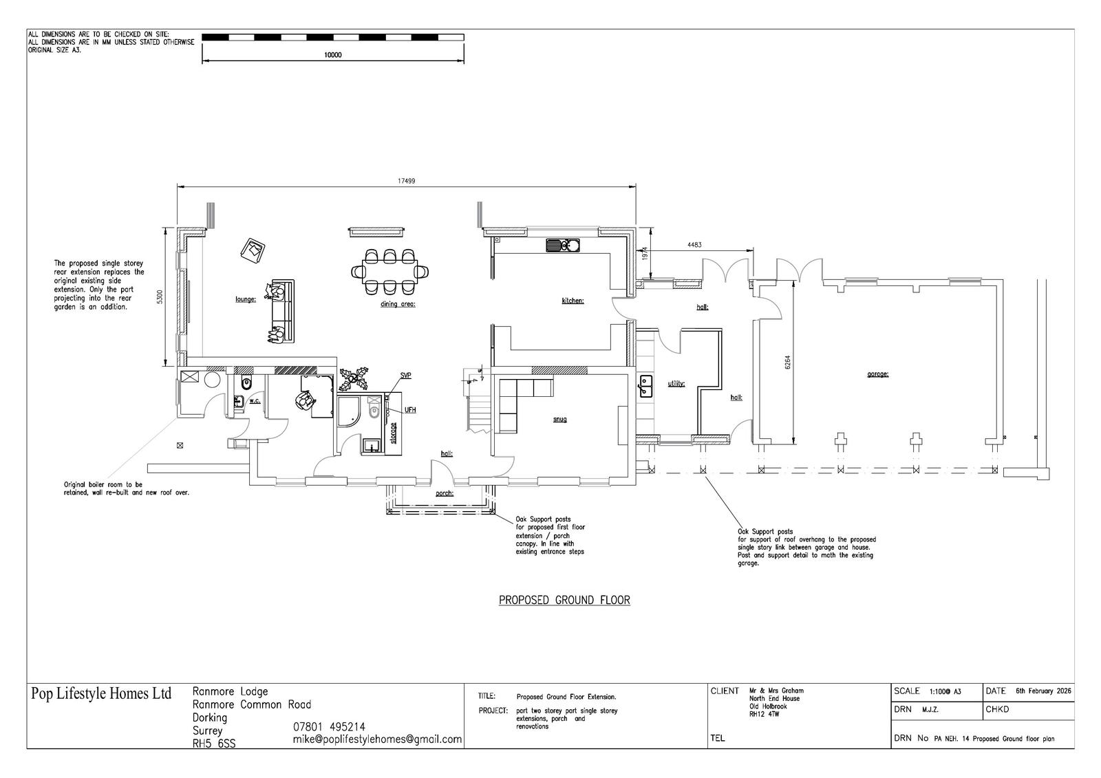
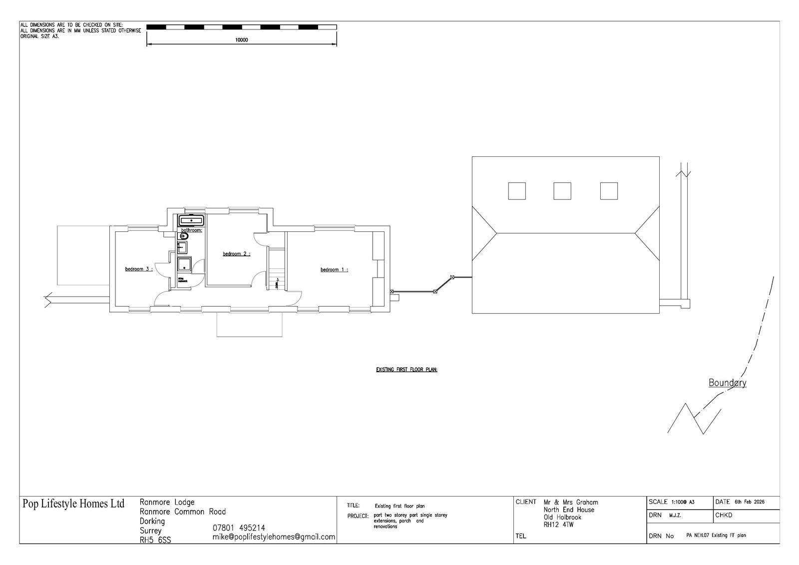
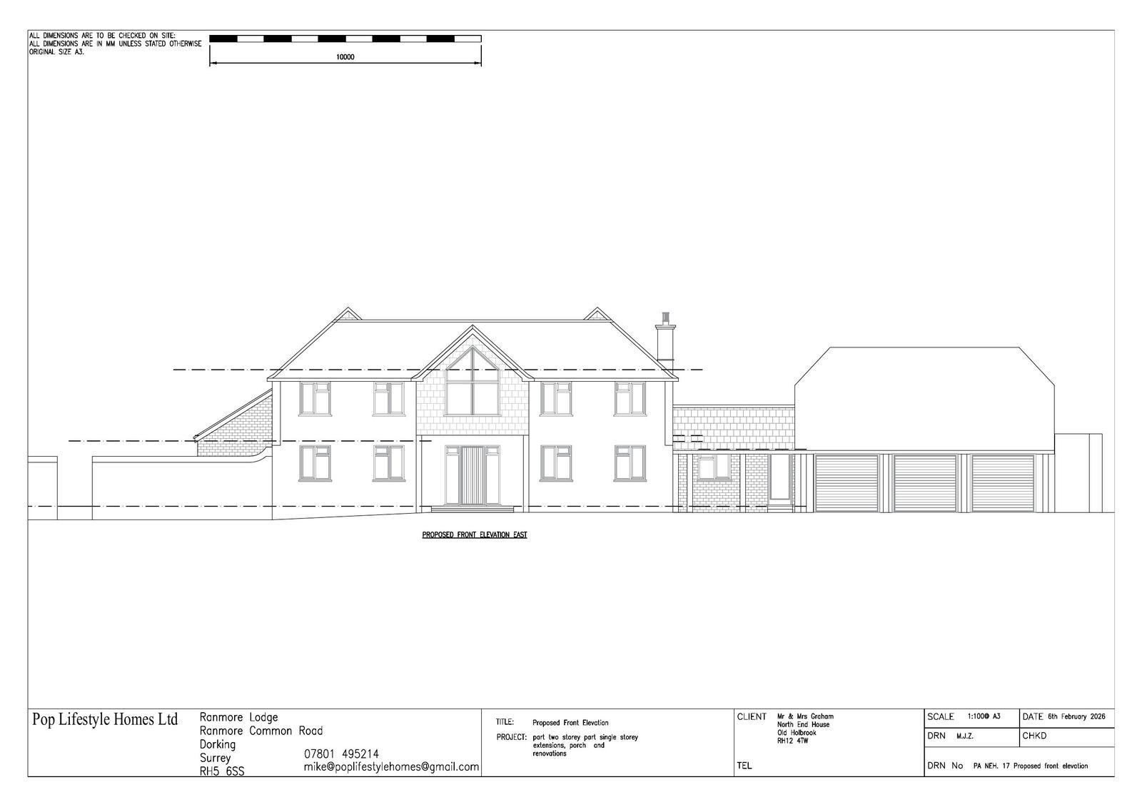
Full proposal

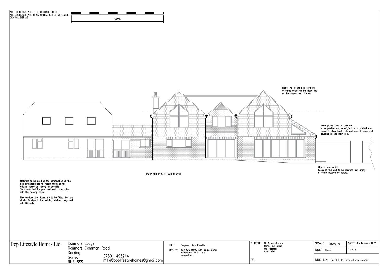
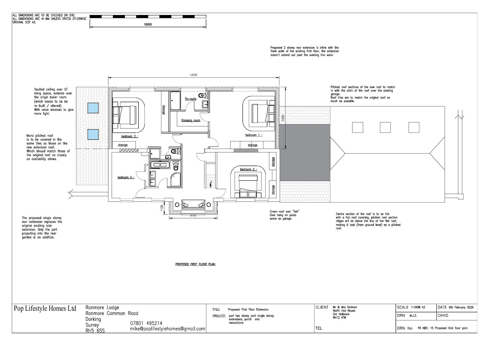
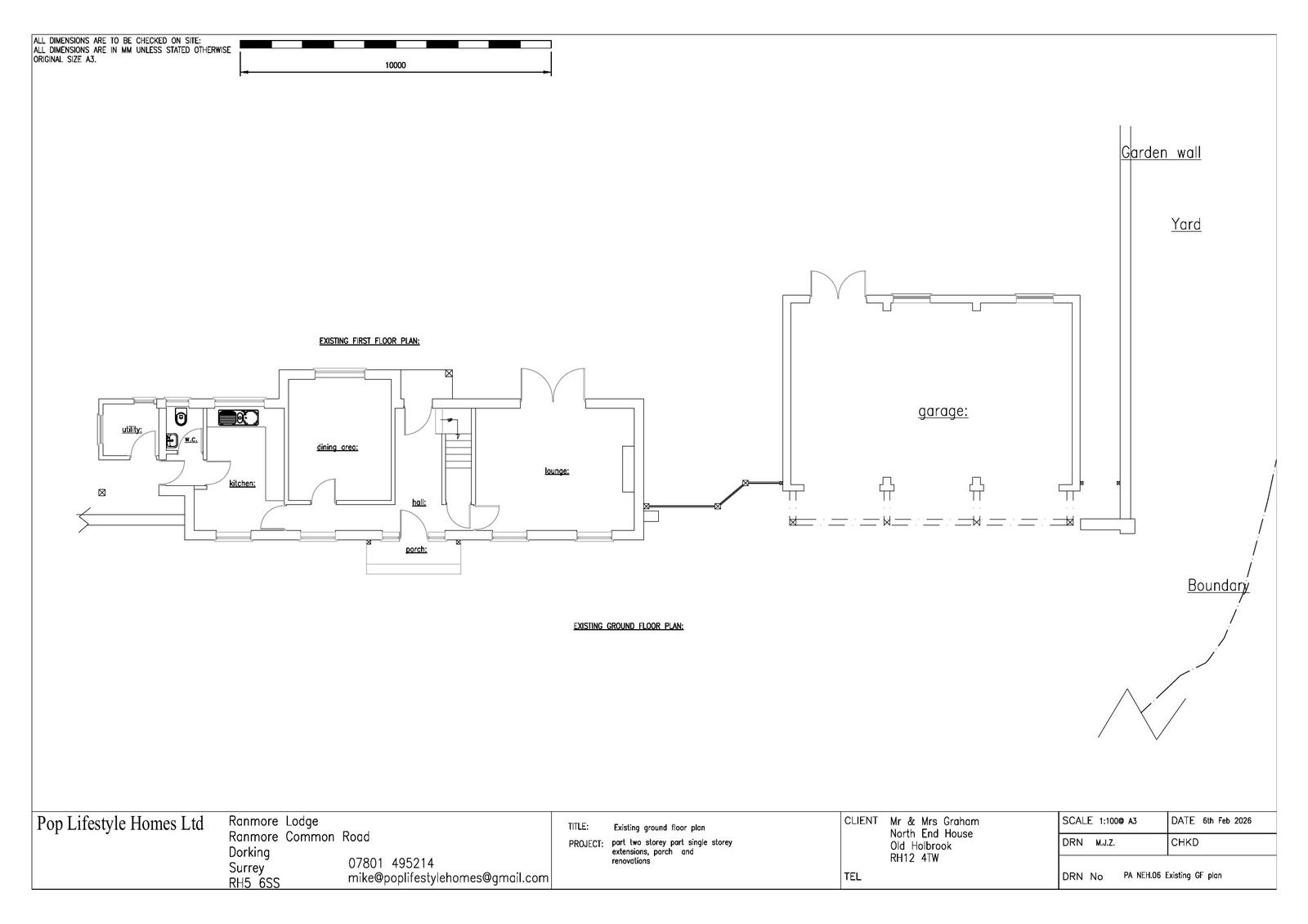
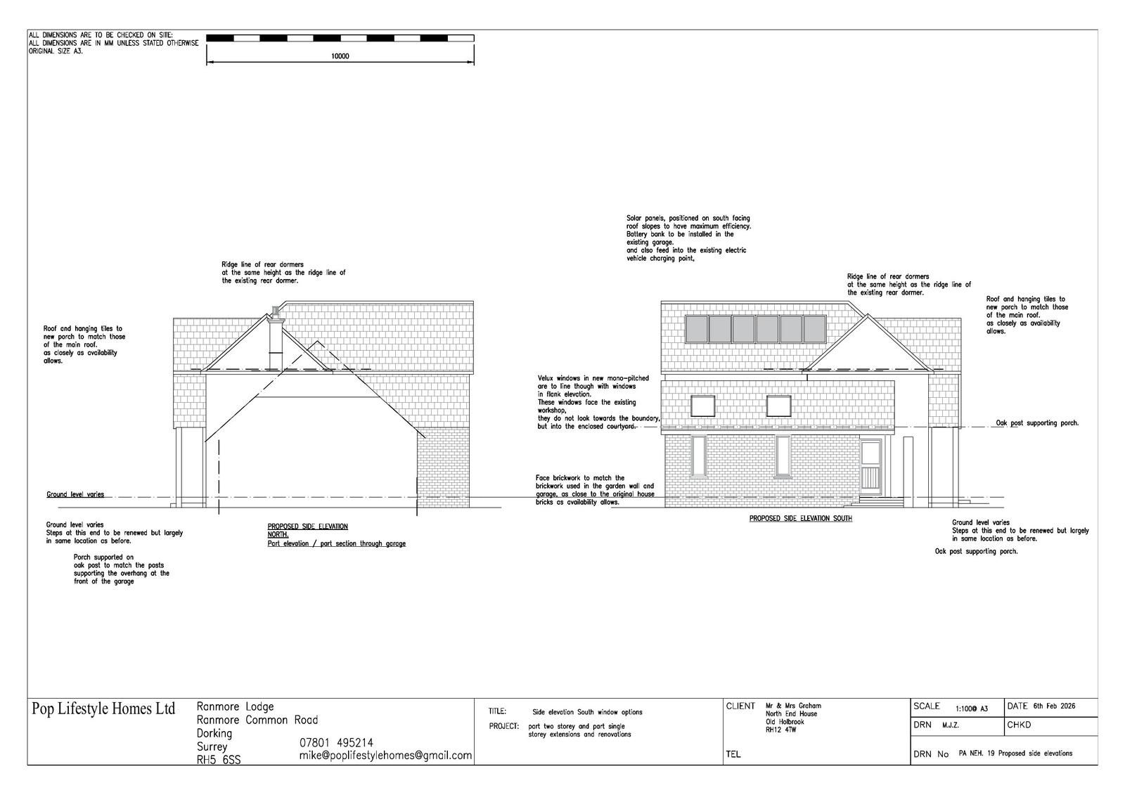
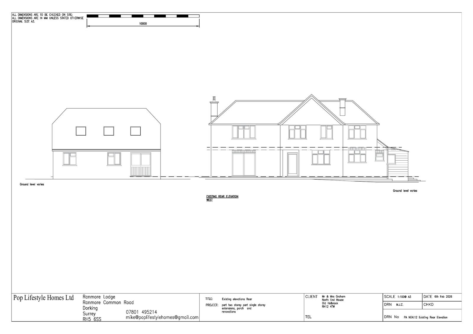
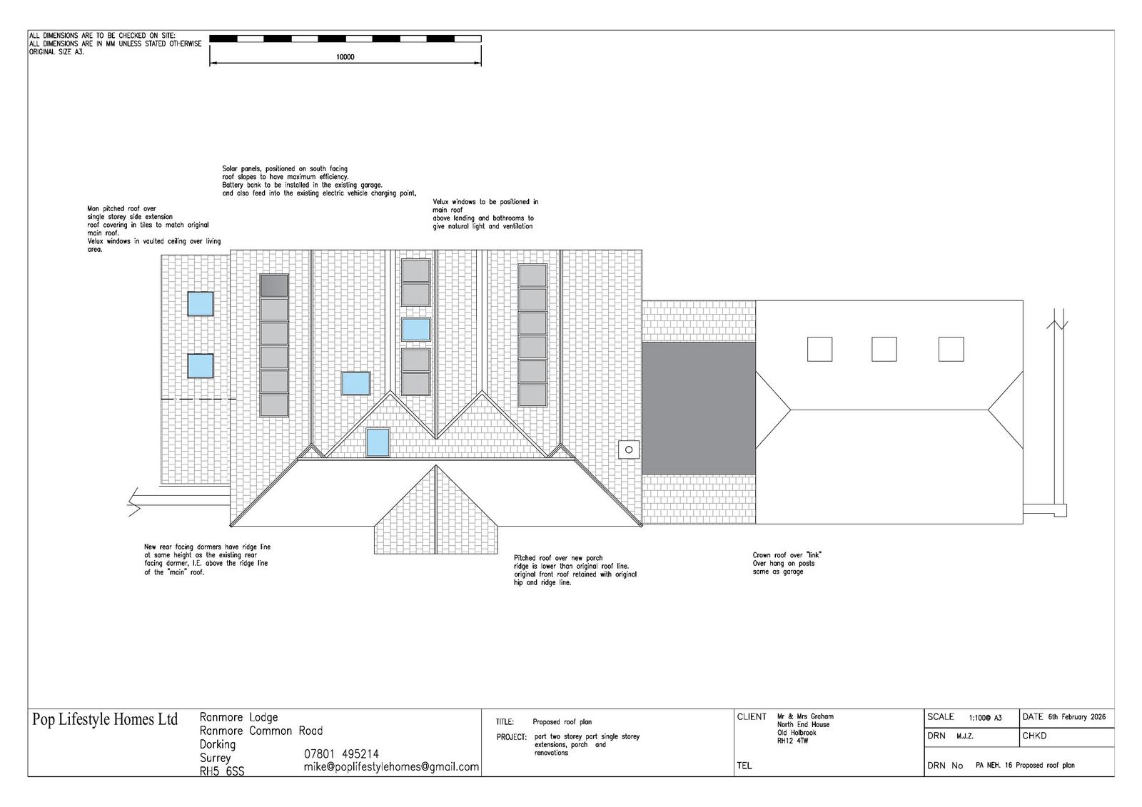
Erection of a front porch, part single storey and part two storey rear extension and single storey side extensions.

Documents

Application form
Archived · Original link
Supporting statement
Archived · Original link
Supporting statement
Archived · Original link
CIL Additional Info Form
Archived · Original link
Design and Access Statement
Archived · Original link
Supporting statement
Archived · Original link
Supporting statement
Archived · Original link
Supporting statement
Archived · Original link
Latest plan
Archived · Original link
Photograph - Applicant Provided
Archived · Original link
PROPOSED GROUND FLOOR - PA NEH.14
Sensitive Document
Not yet archived · Original link
Supporting statement
Archived · Original link

Have your say

Your comment matters. Councils must consider every representation that raises material planning considerations.

Write a comment