← Horsham District Council

Status

Registered House extension
Received
Last month
New homes
0

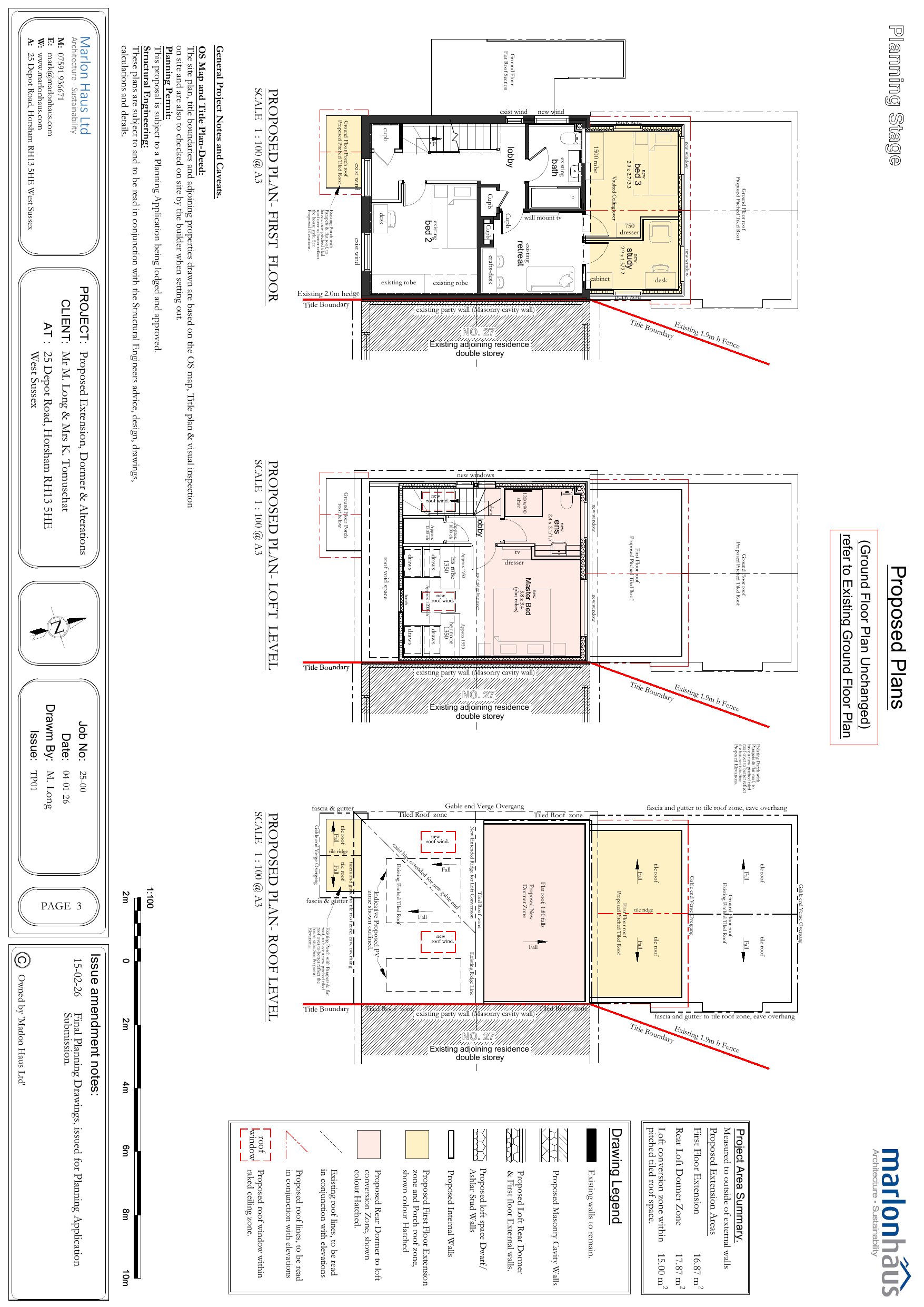
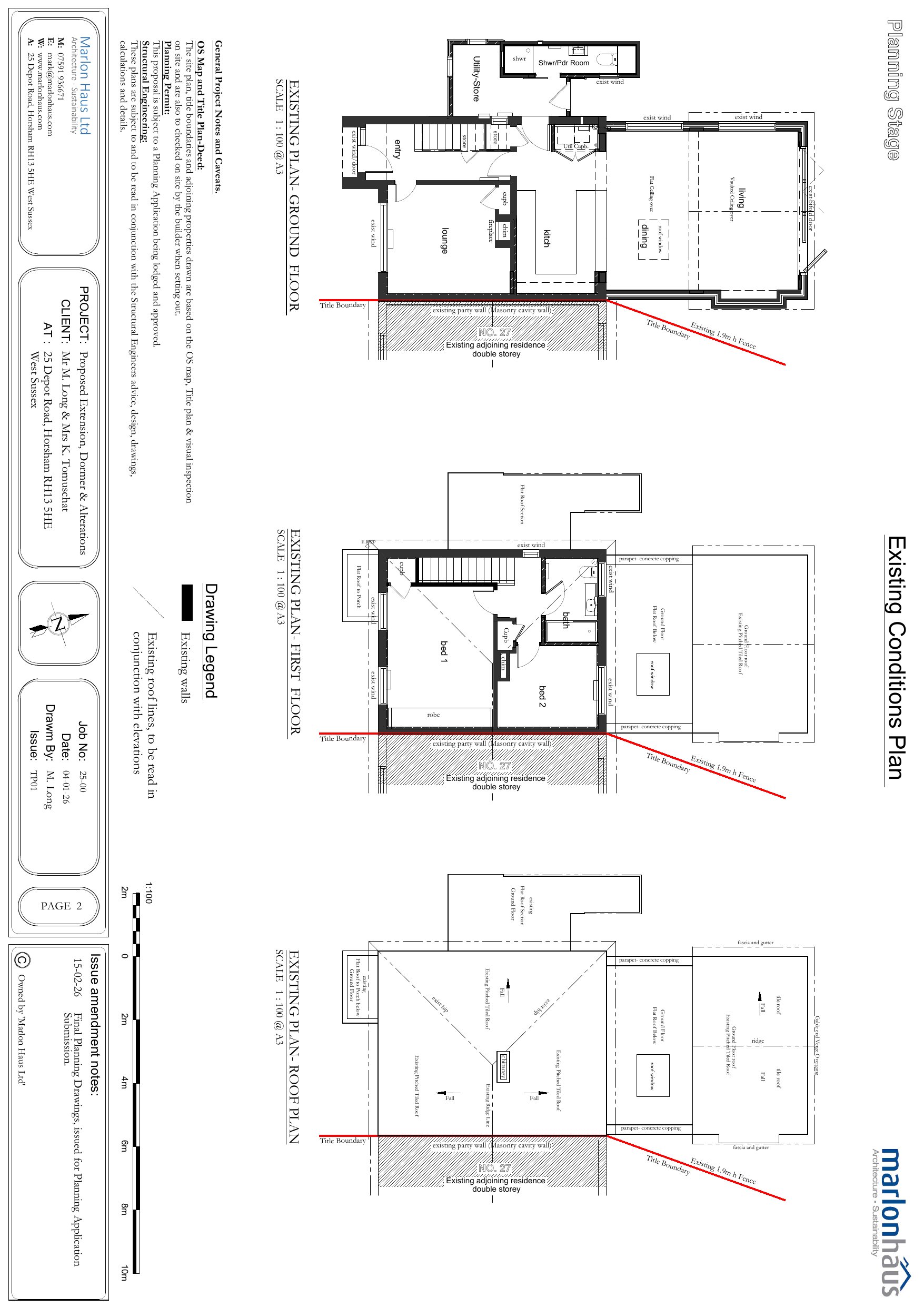
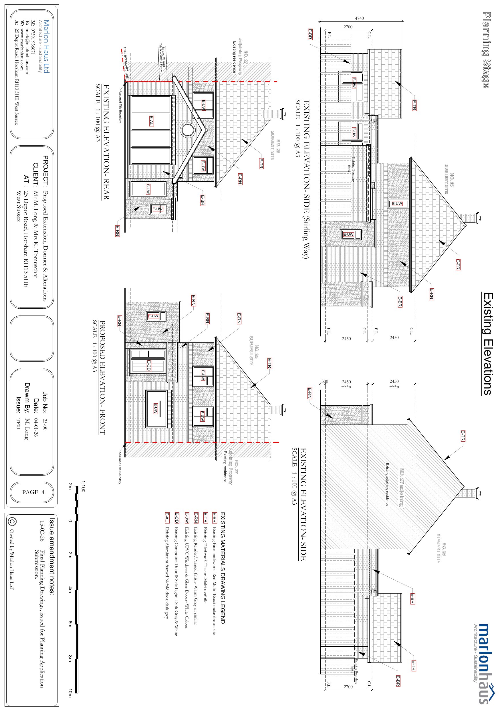
Full proposal

Erection of a first floor rear extension over existing ground floor, conversion of loft into habitable living space with the installation of a rear dormer and 2no. rooflights to the front elevation, and installation of new roof to existing porch.

Documents

Application form
Archived · Original link
CIL Additional Info Form
Archived · Original link
Superseded plan
Archived · Original link
Latest plan
Archived · Original link
Superseded plan
Archived · Original link
Superseded plan
Archived · Original link
Superseded plan
Archived · Original link
Latest plan
Archived · Original link
Photograph - Applicant Provided
Archived · Original link
Superseded plan
Archived · Original link
Latest plan
Archived · Original link
Superseded plan
Archived · Original link
Latest plan
Archived · Original link

Have your say

Your comment matters. Councils must consider every representation that raises material planning considerations.

Write a comment