← Horsham District Council

Status

Registered House extension
Received
Last month
New homes
0

Full proposal

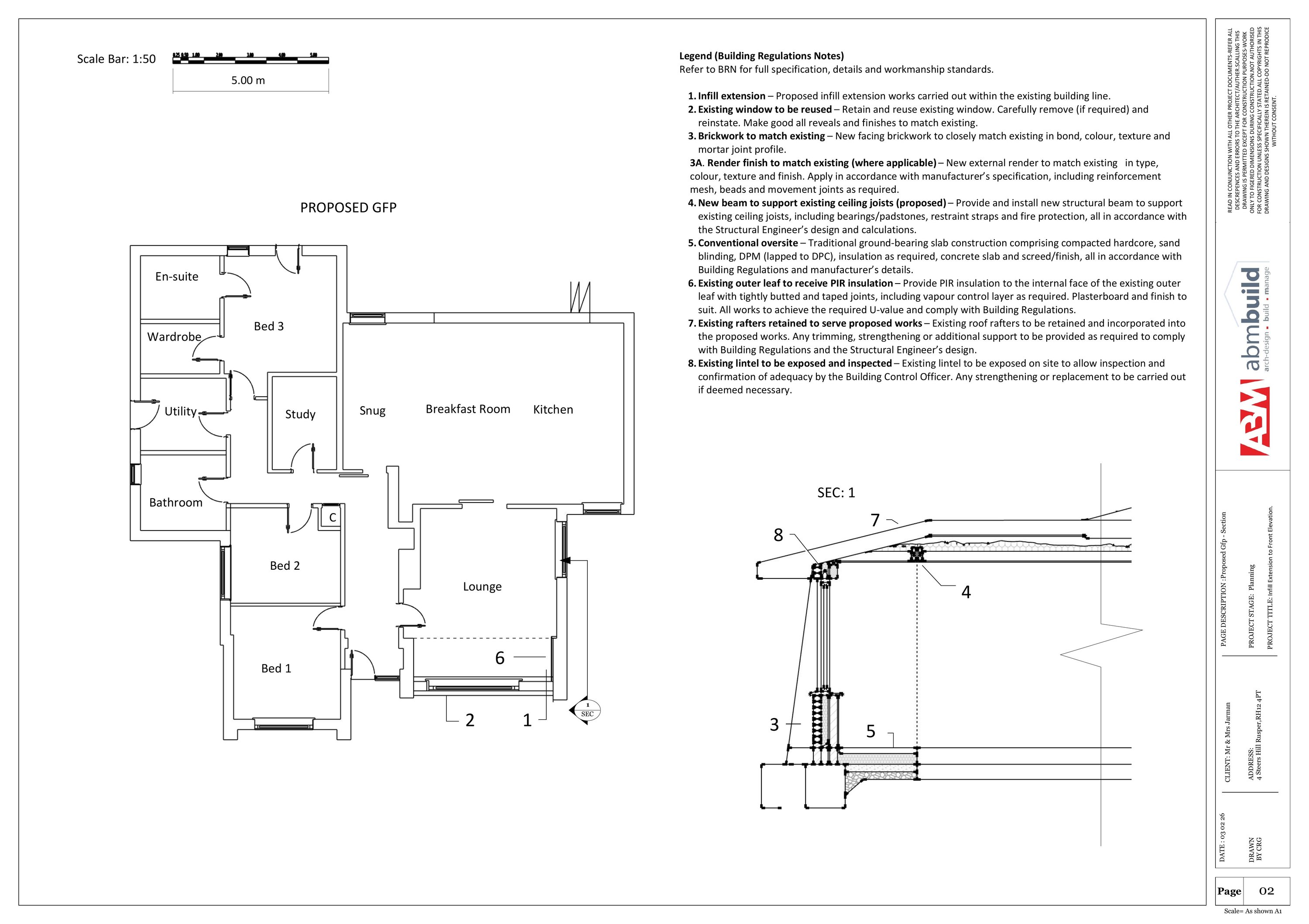
Erection of a single storey front infill extension under the existing roof canopy.

Have your say

Your comment matters. Councils must consider every representation that raises material planning considerations.

Write a comment