← Horsham District Council

Status

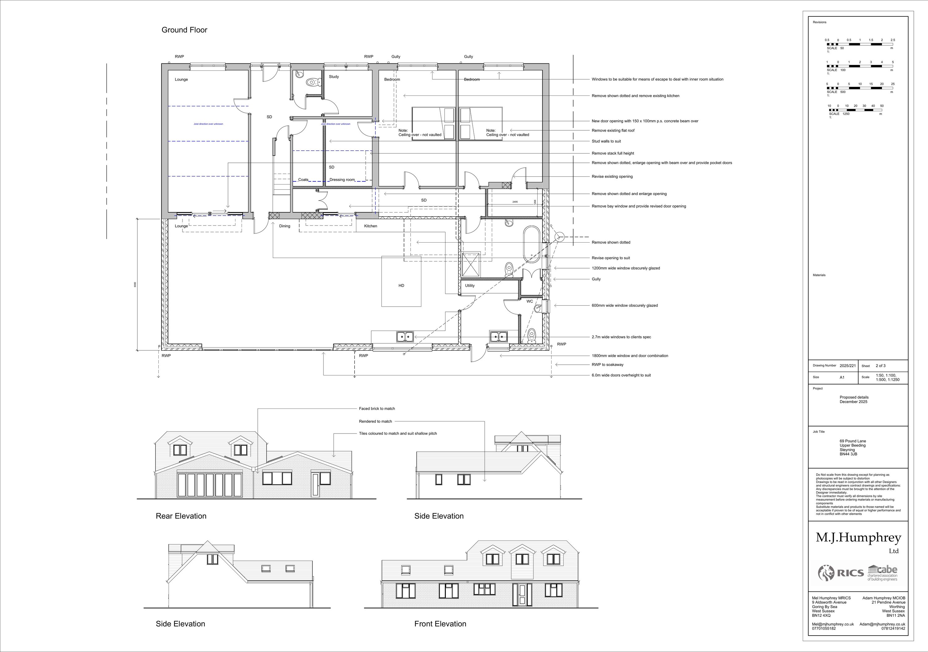
Registered House extension
Received
Last month
New homes
0

Full proposal

Erection of a single storey rear extension, and installation of front dormers and rooflights in connection with remodelling of existing dwelling.

Have your say

Your comment matters. Councils must consider every representation that raises material planning considerations.

Write a comment