← Horsham District Council

Status

Registered Change of use
Received
Last month
New homes
1

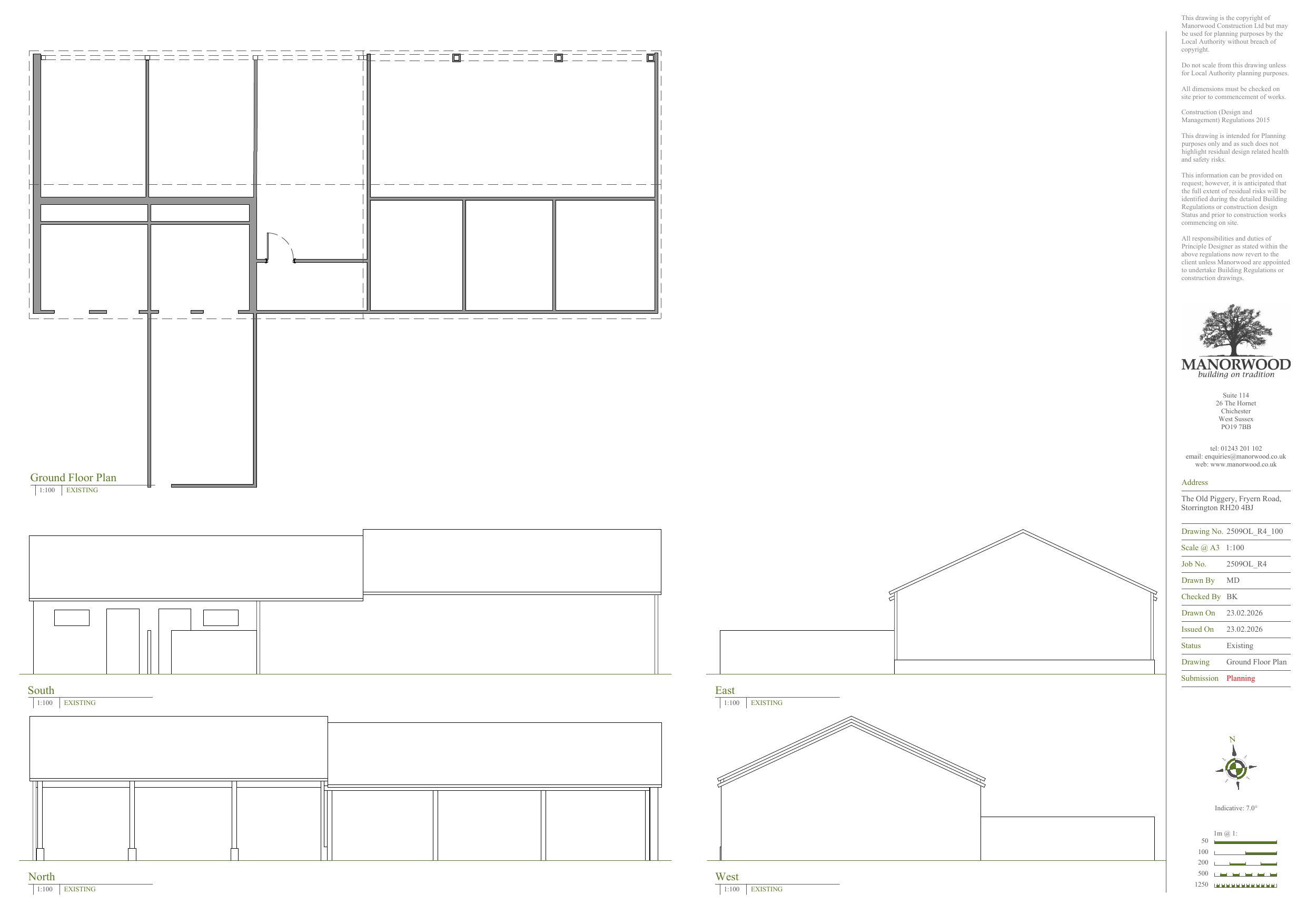
Full proposal

Conversion, change of use and alterations and extensions to existing building to form 1no. detached self-build dwelling and associated works.

Have your say

Your comment matters. Councils must consider every representation that raises material planning considerations.

Write a comment