← Horsham District Council

Status

Registered House extension
Received
Last month
New homes
0

Full proposal

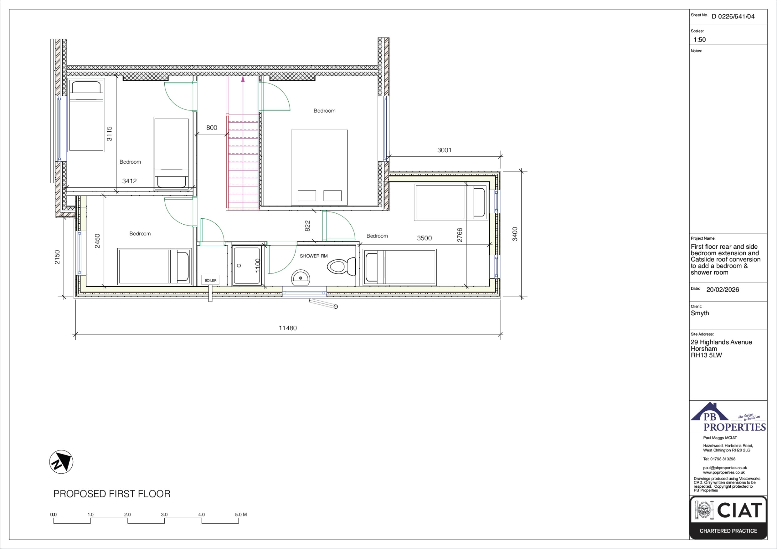
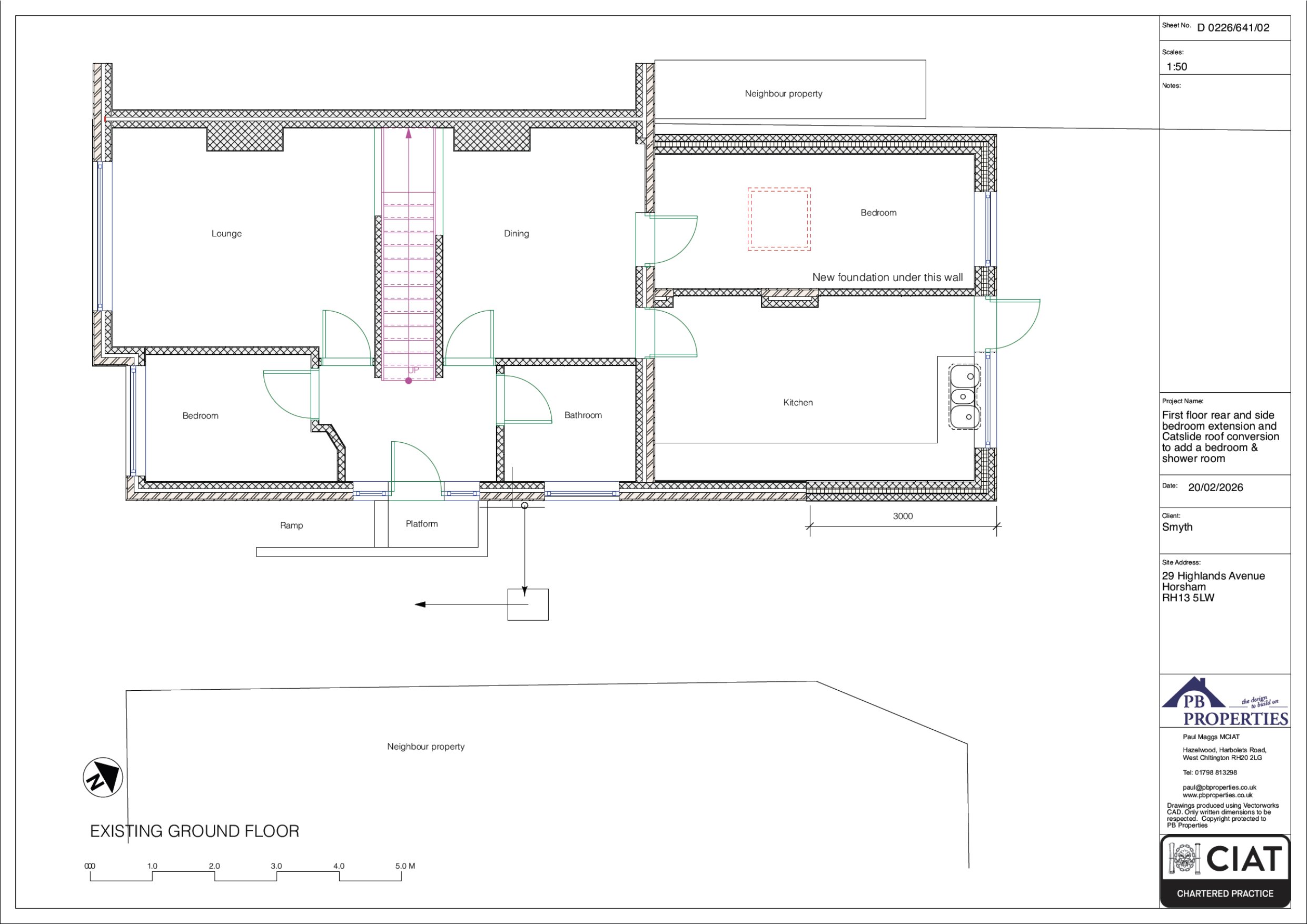
Erection of a first floor rear and side extension, and conversion of catslide roof into habitable living space.

Have your say

Your comment matters. Councils must consider every representation that raises material planning considerations.

Write a comment