← London Borough of Hounslow

Status

Pending New housing
Received
Not recorded
New homes
0

Full proposal

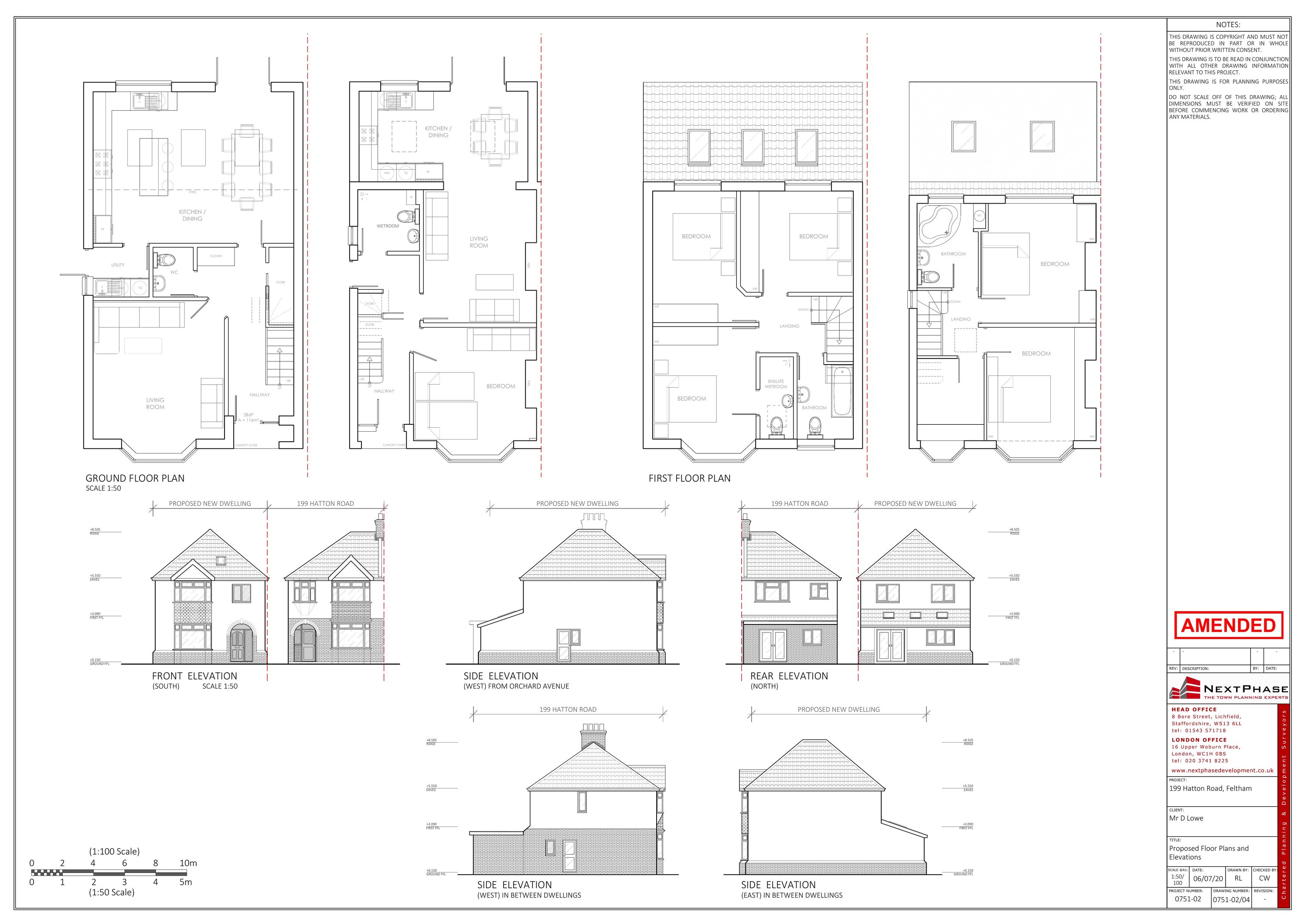
199 Hatton Road, Feltham, TW14 9QY | PF-Full Applications | Subdivision of the plot and erection of a detached two storey dwelling with associated private amenity, refuse and cycle storage. Single storey rear extension to the existing house., | Application No: P/2024/3044 | Decided: 12 February 2025

Documents

P-Proposed Site
Archived · Original link
ApplicationFormRedacted.pdf
P-Planning Application Form
Not yet archived · Original link
DECTP2
P-Decision Notice
Not yet archived · Original link
Duplicate energy statement
P-Published Energy Statement
Not yet archived · Original link
Elevation (Rear) - Existing_included_in_Elevation (Front) - Existing.pdf
Supporting Information.
Not yet archived · Original link
Elevation (Rear) - Proposed_included_in_Elevation (Front) - Proposed.pdf
Supporting Information.
Not yet archived · Original link
Elevation (Side) - Existing_included_in_Elevation (Front) - Existing.pdf
Supporting Information.
Not yet archived · Original link
Elevation (Side) - Proposed_included_in_Elevation (Front) - Proposed.pdf
Supporting Information.
Not yet archived · Original link
Energy statement
P-Published Energy Statement
Not yet archived · Original link
existing plans and elevations of donor property
P-Existing Plans
Not yet archived · Original link
Fire Safety Statement
P-Published Fire Safety
Not yet archived · Original link
Floor Plan - Existing_included_in_Elevation (Front) - Existing.pdf
Supporting Information.
Not yet archived · Original link
Floor plan_included_in_Elevation (Front) - Proposed.pdf
Supporting Information.
Not yet archived · Original link
Layout Plan - Proposed_included_in_Block plan of the site.pdf
Supporting Information.
Not yet archived · Original link
MixedCombined Plans_included_in_Elevation (Front) - Proposed.pdf
Supporting Information.
Not yet archived · Original link
P-Delegated Report
P-Delegated Report
Not yet archived · Original link
Planning obligations_included_in_Other relevant information.pdf
Supporting Information.
Not yet archived · Original link
Previously approved decision notice
History File
Not yet archived · Original link
Previously approved delegated report
History File
Not yet archived · Original link
Previously approved design and access statement
History File
Not yet archived · Original link
Previously approved design and access statement
History File
Not yet archived · Original link
Previously approved existing plans and elevations
History File
Not yet archived · Original link
Proposed bin storage
P-Proposed Other
Not yet archived · Original link
Proposed cycle storage
P-Proposed Other
Not yet archived · Original link
P-Location Plan
Archived · Original link
P-Rejected Plans
Archived · Original link

Have your say

Your comment matters. Councils must consider every representation that raises material planning considerations.

Write a comment