← London Borough of Hounslow

Status

Pending Change of use
Received
Not recorded
New homes
0

Full proposal

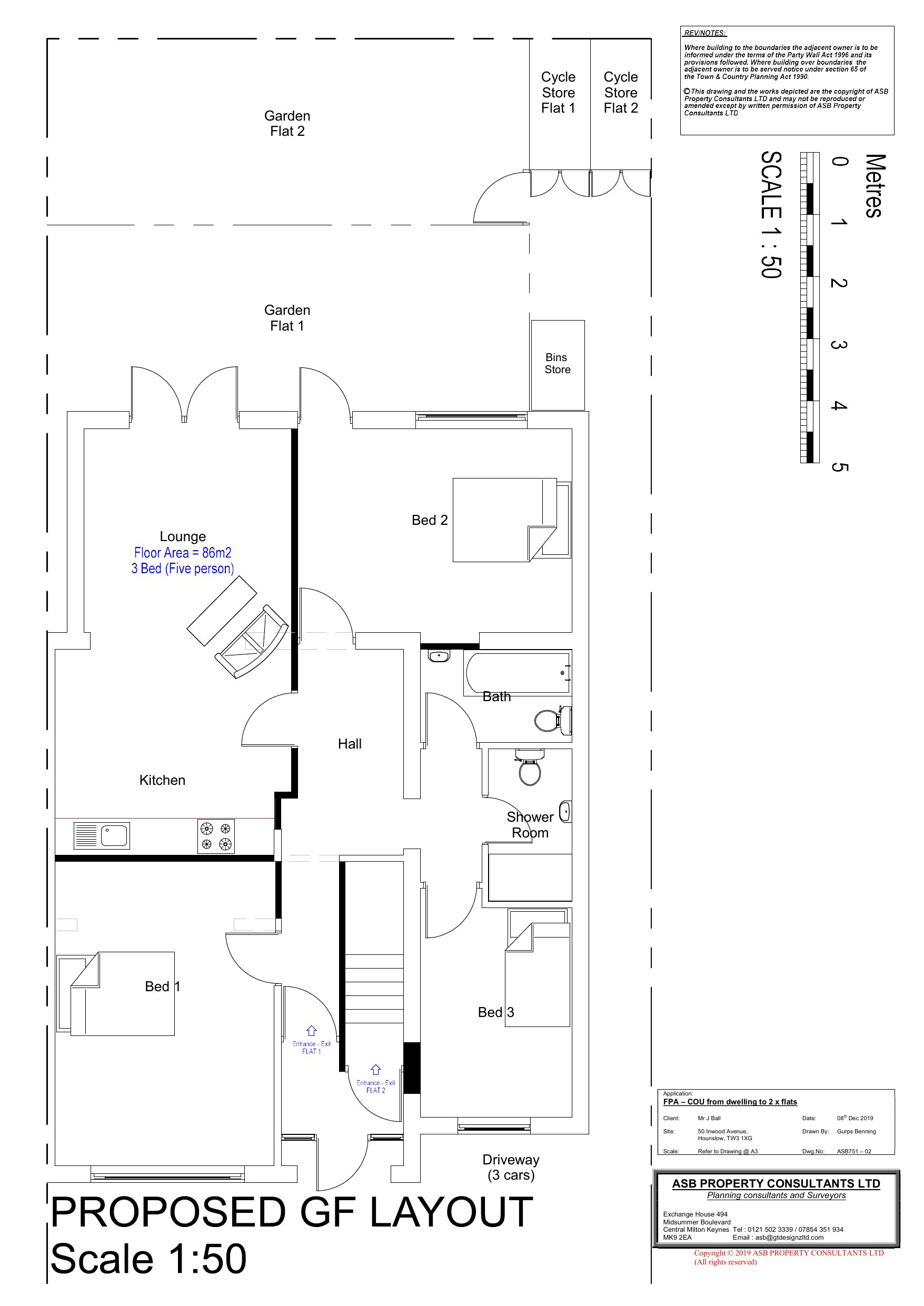
50 Inwood Avenue,Hounslow,TW3 1XG | PF-Full Applications | Conversion of the existing residential unit into two self contained flats with associated car parking, refuse and cycle storage. | Application No: P/2024/3603 | Decided: 15 January 2025

Documents

ApplicationFormRedacted.pdf
P-Planning Application Form
Not yet archived · Original link
DECTP3
P-Decision Notice
Not yet archived · Original link
Existing Floor Plans A3.pdf
P-Proposed Other
Not yet archived · Original link
Fire strategy.pdf
P-Published Fire Safety
Not yet archived · Original link
Location Plan A3.pdf
P-Location Plan
Not yet archived · Original link
P-Appeal Decision
P-Appeal Decision
Not yet archived · Original link
P-Appeal Start Date Letter
P-Appeal Start Date Letter
Not yet archived · Original link
P-Delegated Report
P-Delegated Report
Not yet archived · Original link
P-Proposed Plans
Archived · Original link
P-Published Energy Statement
P-Published Energy Statement
Not yet archived · Original link
P-Proposed Other
Archived · Original link
Proposed GF Plan A3.pdf
P-Proposed Other
Not yet archived · Original link
P-Proposed Other
Archived · Original link
Rejected Drawings.
Rejected Drawings.
Not yet archived · Original link
S and E Statement.pdf
P-Proposed Other
Not yet archived · Original link

Have your say

Your comment matters. Councils must consider every representation that raises material planning considerations.

Write a comment