← London Borough of Hounslow

Status

Pending Change of use
Received
Not recorded
New homes
0

Full proposal

2 B Aylett Road,Isleworth,TW7 6NP | PF-Full Applications | Alterations to the existing front extension and installation of a new internal court yard to allow the change of use from the existing residential unit into a commercial unit following demolition of t... | Application No: P/2024/3837 | :

Documents

2013-01 DWG 01 LOCATION PLAN.pdf
P-Location Plan
Not yet archived · Original link
2013-01 DWG 01 LOCATION PLAN.pdf
P-Location Plan
Not yet archived · Original link
2013-01 DWG 02 BLOCK PLAN.pdf
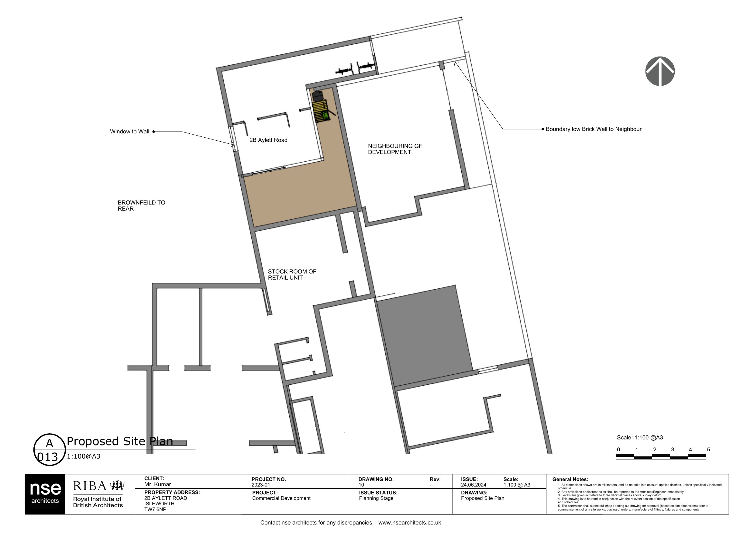
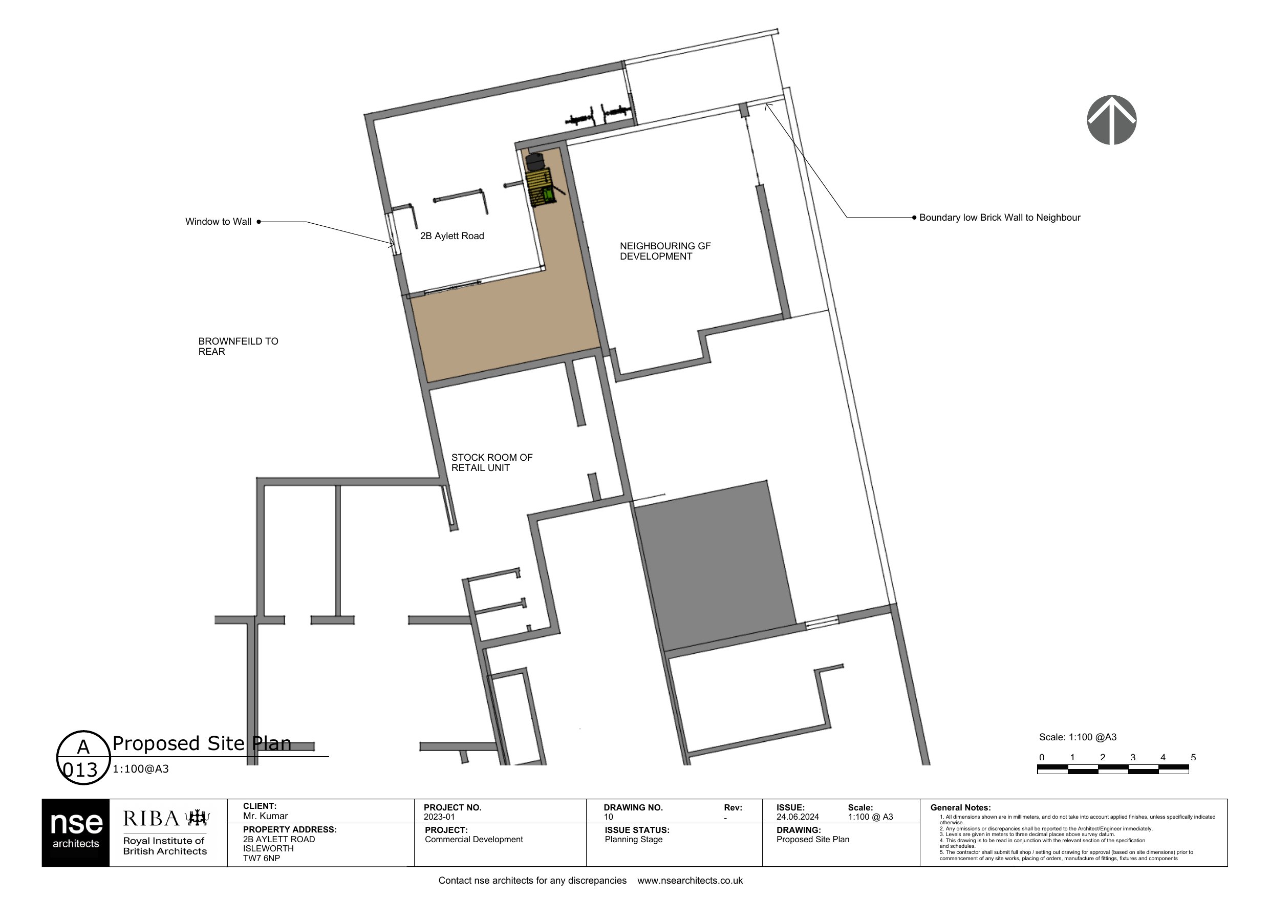
P-Proposed Site
Not yet archived · Original link
2013-01 DWG 02 BLOCK PLAN.pdf
P-Proposed Site
Not yet archived · Original link
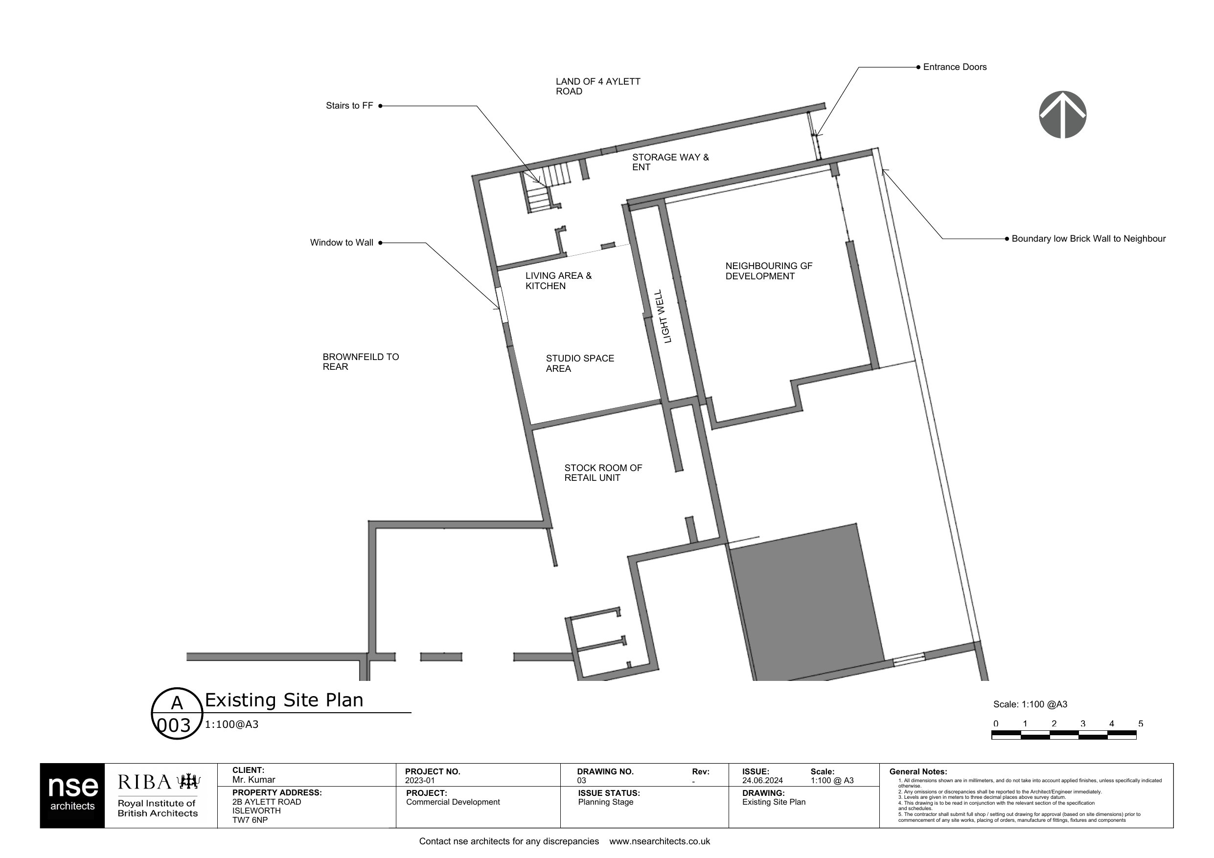
P-Existing Site
Archived · Original link
P-Existing Site
Archived · Original link
2013-01 DWG 04 EX GF PLAN.pdf
P-Existing Plans
Not yet archived · Original link
2013-01 DWG 04 EX GF PLAN.pdf
P-Existing Plans
Not yet archived · Original link
2013-01 DWG 05 EX ROOF PLAN.pdf
P-Existing Plans
Not yet archived · Original link
2013-01 DWG 05 EX ROOF PLAN.pdf
P-Existing Plans
Not yet archived · Original link
2013-01 DWG 06 EX NORTH ELEVATION.pdf
P-Existing Elevation
Not yet archived · Original link
2013-01 DWG 06 EX NORTH ELEVATION.pdf
P-Existing Elevation
Not yet archived · Original link
2013-01 DWG 07 EX EAST ELEVATION.pdf
P-Existing Elevation
Not yet archived · Original link
2013-01 DWG 07 EX EAST ELEVATION.pdf
P-Existing Elevation
Not yet archived · Original link
2013-01 DWG 08 EX SOUTH ELEVATION.pdf
P-Existing Elevation
Not yet archived · Original link
2013-01 DWG 08 EX SOUTH ELEVATION.pdf
P-Existing Elevation
Not yet archived · Original link
2013-01 DWG 09 EX WEST ELEVATION.pdf
P-Existing Elevation
Not yet archived · Original link
2013-01 DWG 09 EX WEST ELEVATION.pdf
P-Existing Elevation
Not yet archived · Original link
2013-01 DWG 11 PROPOSED GF PLAN.pdf
P-Proposed Plans
Not yet archived · Original link
2013-01 DWG 11 PROPOSED GF PLAN.pdf
P-Proposed Plans
Not yet archived · Original link
2013-01 DWG 12 PROPOSED ROOF PLAN.pdf
P-Proposed Plans
Not yet archived · Original link
2013-01 DWG 12 PROPOSED ROOF PLAN.pdf
P-Proposed Plans
Not yet archived · Original link
2013-01 DWG 13 PROPOSED NORTH ELEVATION.pdf
P-Proposed Elevation
Not yet archived · Original link
2013-01 DWG 13 PROPOSED NORTH ELEVATION.pdf
P-Proposed Elevation
Not yet archived · Original link
2013-01 DWG 14 PROPOSED EAST ELEVATION.pdf
P-Proposed Elevation
Not yet archived · Original link
2013-01 DWG 14 PROPOSED EAST ELEVATION.pdf
P-Proposed Elevation
Not yet archived · Original link
2013-01 DWG 15 PROPOSED SOUTH ELEVATION.pdf
P-Proposed Elevation
Not yet archived · Original link
2013-01 DWG 15 PROPOSED SOUTH ELEVATION.pdf
P-Proposed Elevation
Not yet archived · Original link
2013-01 DWG 16 PROPOSED WEST ELEVATION.pdf
P-Proposed Elevation
Not yet archived · Original link
2013-01 DWG 16 PROPOSED WEST ELEVATION.pdf
P-Proposed Elevation
Not yet archived · Original link
2013-01 DWG 17 PROPOSED SECTION.pdf
P-Proposed Sections
Not yet archived · Original link
2013-01 DWG 17 PROPOSED SECTION.pdf
P-Proposed Sections
Not yet archived · Original link
2013-01 DWG 18 PROPOSED EXTERNAL 3D VIEW B.pdf
P-Perspective Drawings
Not yet archived · Original link
2013-01 DWG 18 PROPOSED EXTERNAL 3D VIEW B.pdf
P-Perspective Drawings
Not yet archived · Original link
2013-01 DWG 19 PROPOSED AREA STUDY.pdf
P-Proposed Other
Not yet archived · Original link
603-01-2B AYLETT ROAD ISLEWORTH TW7 6NP OS Plan.pdf
P-Location Plan
Not yet archived · Original link
603-01-2B AYLETT ROAD ISLEWORTH TW7 6NP OS Plan.pdf
P-Location Plan
Not yet archived · Original link
ApplicationFormRedacted.pdf
P-Planning Application Form
Not yet archived · Original link
ApplicationFormRedacted.pdf
P-Planning Application Form
Not yet archived · Original link
Fire Statement for 2B AYLETT ROAD ISLEWORTH TW7 6NP.pdf
P-Published Fire Safety
Not yet archived · Original link
Fire Statement for 2B AYLETT ROAD ISLEWORTH TW7 6NP.pdf
P-Published Fire Safety
Not yet archived · Original link

Have your say

Your comment matters. Councils must consider every representation that raises material planning considerations.

Write a comment