← London Borough of Hounslow

Status

Pending Change of use
Received
Not recorded
New homes
0

Full proposal

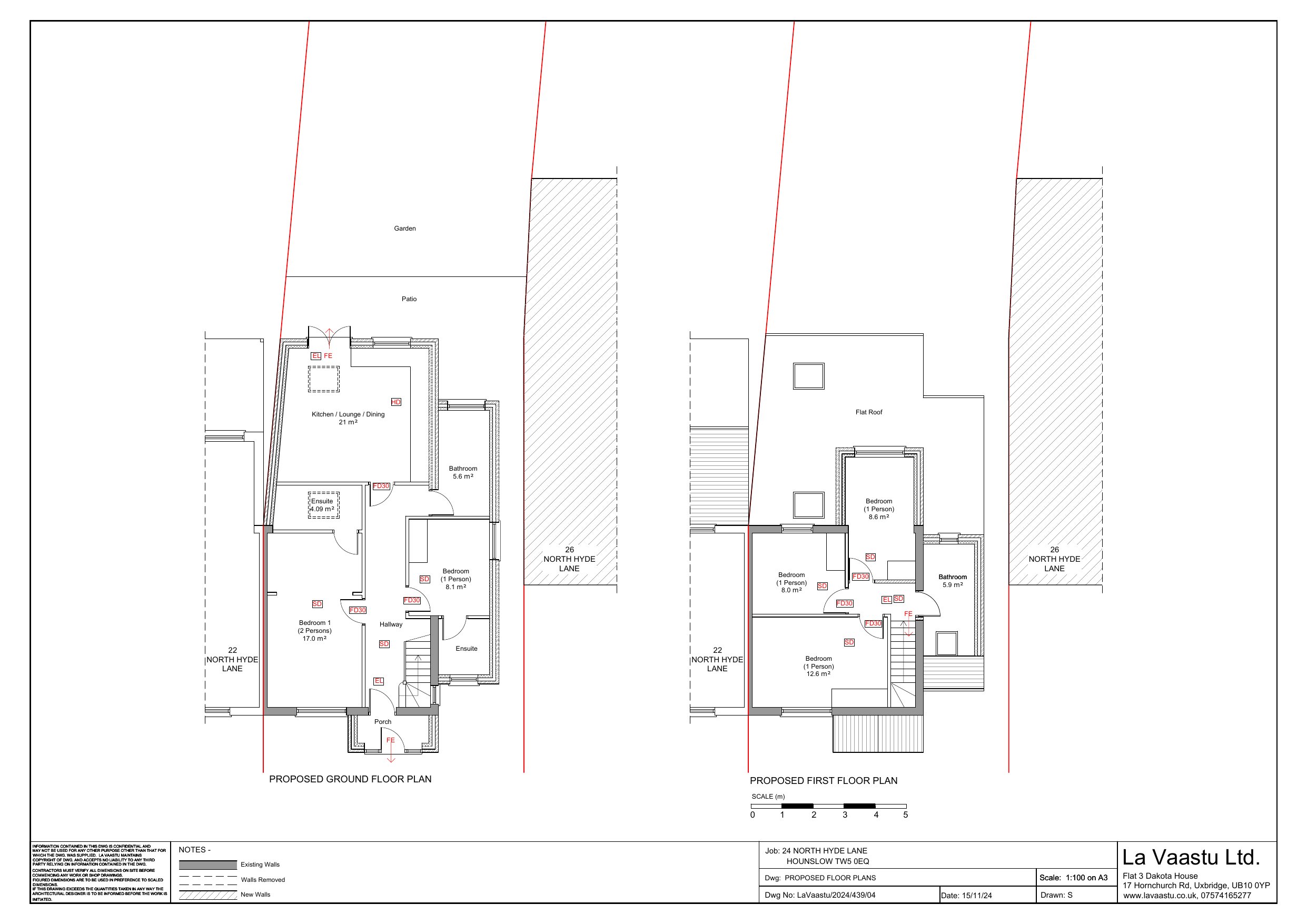
24 North Hyde Lane,Heston,TW5 0EQ | PF-Full Applications | Change of use of existing single family house to a House in Multiple Occupation for six people. | Application No: P/2024/3918 | Decided: 16 January 2025

Documents

03- Existing Floor Plans.pdf
P-Existing Plans
Not yet archived · Original link
P-Proposed Plans
Archived · Original link
05- Existing and Proposed Elevations.pdf
P-Existing Elevation
Not yet archived · Original link
06- Fire Safety Plan.pdf
P-Published Fire Safety
Not yet archived · Original link
ApplicationFormRedacted.pdf
P-Planning Application Form
Not yet archived · Original link
DECTP3
P-Decision Notice
Not yet archived · Original link
DESIGN AND ACCESS STATEMENT.pdf
P-Design and Access Statement
Not yet archived · Original link
LocationPlan.pdf
P-Location Plan
Not yet archived · Original link
P-Delegated Report
P-Delegated Report
Not yet archived · Original link

Have your say

Your comment matters. Councils must consider every representation that raises material planning considerations.

Write a comment