← London Borough of Hounslow

Status

Pending New housing
Received
Not recorded
New homes
1

Full proposal

152 Oxford Way, Feltham, TW13 6RX | PF-Full Applications | Subdivision of the plot and erection of a two storey attached dwelling. | Application No: P/2025/0735 | Decided: 03 October 2025

Documents

00 - Amended Energy Statement received 9th July 2025
P-Published Energy Statement
Not yet archived · Original link
00 - Fire Statement.pdf
P-Published Fire Safety
Not yet archived · Original link
00 Amended SAP reports received 9th July 2025
P-Published Energy Statement
Not yet archived · Original link
00 Design and Access Statement
P-Design and Access Statement
Not yet archived · Original link
00 Insulation cross sections and detail
P-Published Energy Statement
Not yet archived · Original link
01 - Location and block plans.pdf
P-Location Plan
Not yet archived · Original link
02 - Existing ground floor plan.pdf
P-Existing Plans
Not yet archived · Original link
03 - Existing plans.pdf
P-Existing Plans
Not yet archived · Original link
04 Rev. 3 - Proposed ground floor plan received 15th September 2025
P-Proposed Plans
Not yet archived · Original link
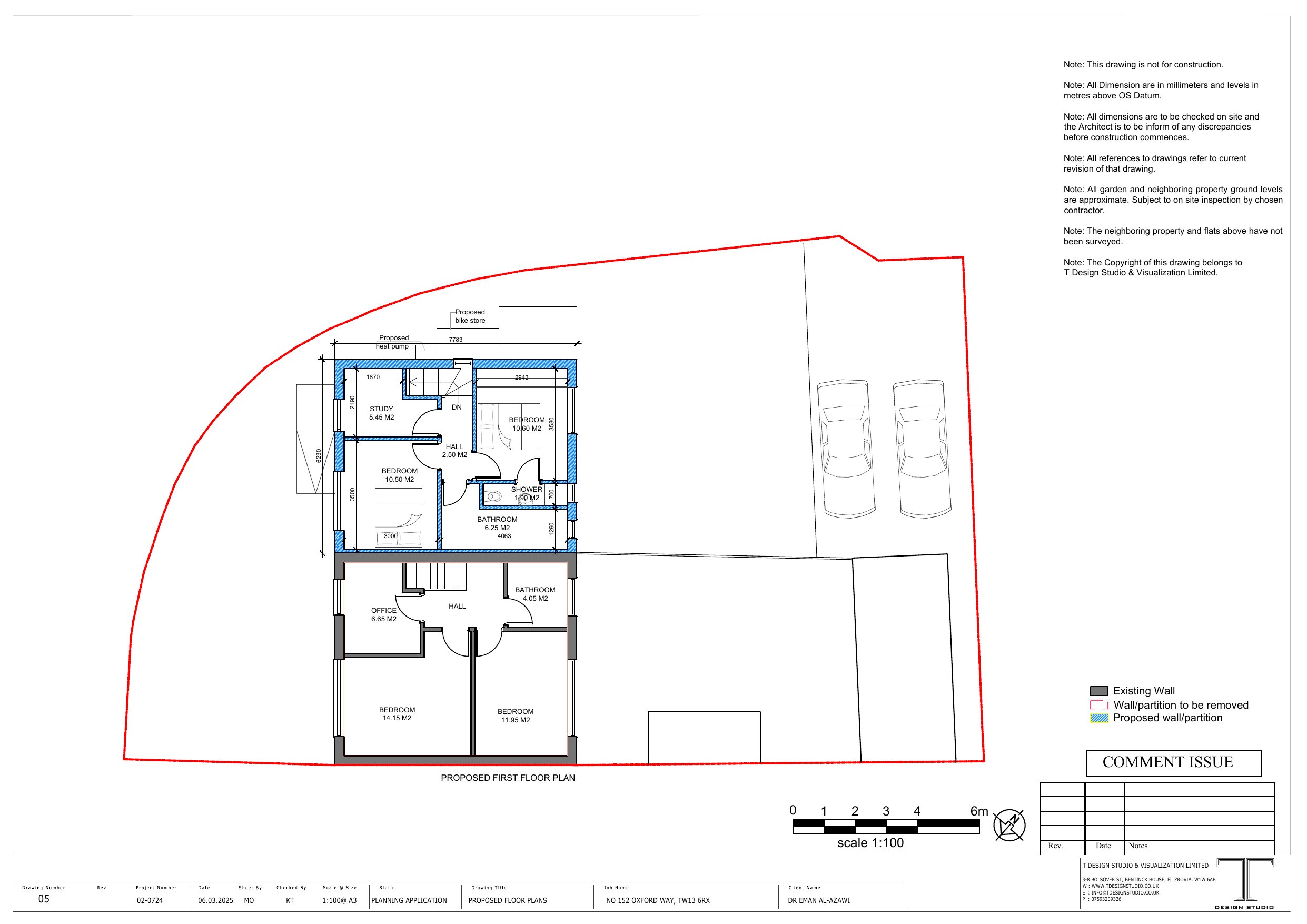
05 Rev 2 1st floor plans received 1st September 2025
P-Proposed Plans
Not yet archived · Original link
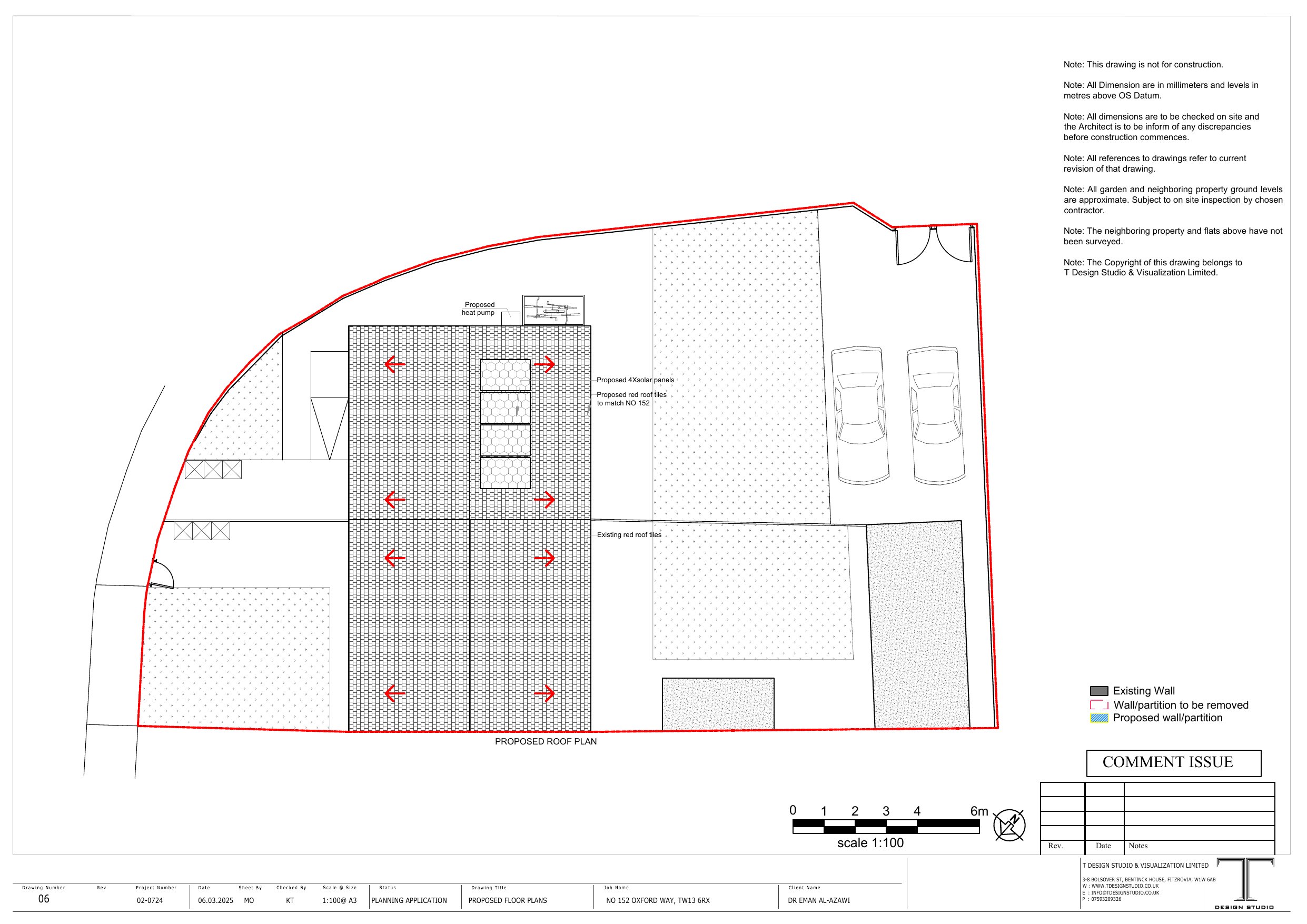
06 Rev. 1 - Proposed roof plans - received 5th June 2025
P-Proposed Plans
Not yet archived · Original link
07 - Existing elevations.pdf
P-Existing Elevation
Not yet archived · Original link
08 Rev 1 Proposed Elevations received 1st September 2025
P-Proposed Elevation
Not yet archived · Original link
09 Rev. 1 - Existing and proposed streetscene elevations received 1st September 2025
P-Proposed Elevation
Not yet archived · Original link
ApplicationFormRedacted.pdf
P-Planning Application Form
Not yet archived · Original link
DECTP2
P-Decision Notice
Not yet archived · Original link
P-Delegated Report
P-Delegated Report
Not yet archived · Original link
P-Rejected Plans
Archived · Original link
Superseded 04 Rev. 1 - Proposed Ground Floor Plan
P-Rejected Plans
Not yet archived · Original link
P-Rejected Plans
Archived · Original link
Superseded 05 Rev. 1 - Proposed first floor plans
P-Rejected Plans
Not yet archived · Original link
P-Rejected Plans
Archived · Original link
Superseded 08 - Proposed elevations.pdf
P-Rejected Plans
Not yet archived · Original link
Superseded 09 - Existing and proposed street elevations.pdf
P-Rejected Plans
Not yet archived · Original link
Superseded Energy Statement
P-Rejected Plans
Not yet archived · Original link
Superseded Energy Statement duplicate
P-Rejected Plans
Not yet archived · Original link
Superseded SAP reports
P-Rejected Plans
Not yet archived · Original link

Have your say

Your comment matters. Councils must consider every representation that raises material planning considerations.

Write a comment