← London Borough of Hounslow

Status

Pending New housing
Received
Not recorded
New homes
7

Full proposal

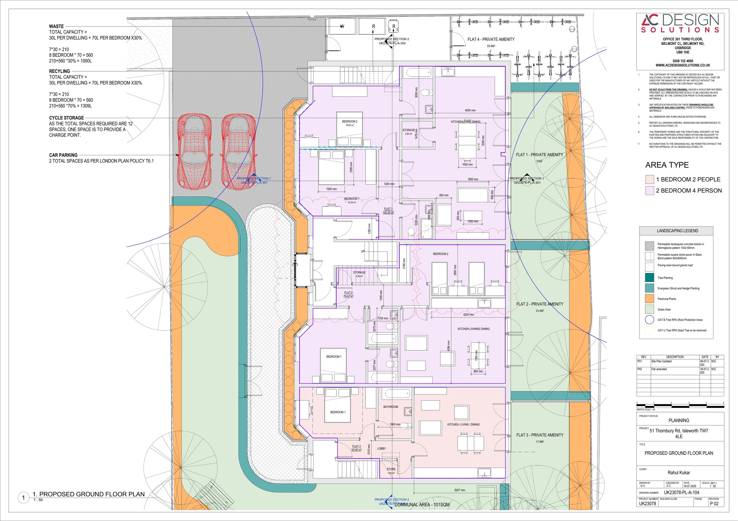
51 Thornbury Road, Isleworth, TW7 4LE | PF-Full Applications | Erection of one building to provide seven flats with landscaping, cycle parking, waste and recycling facilities following demolition of the existing house and garage. | Application No: P/2025/0901 | Decided: 13 February 2026

Documents

51 Thornbury Rd Isleworth TW7 4LE - BLOCK PLAN.pdf
P-Proposed Site
Not yet archived · Original link
51 Thornbury Rd Isleworth TW7 4LE - DRAWINGS-compressed.pdf
P-Proposed Other
Not yet archived · Original link
51 Thornbury Rd Isleworth TW7 4LE - LOCATION PLAN.pdf
P-Location Plan
Not yet archived · Original link
51 Thornbury Rd V1 .pdf
P-Transport Assessment
Not yet archived · Original link
51 Thornbury Road - BNG Calculations V2.xlsx
P-Statement Other
Not yet archived · Original link
51 Thornbury Road Technical Report.pdf
P-Published Fire Safety
Not yet archived · Original link
AEL-19092-A-AR-Arboricultural Report.pdf
P-Statement Other
Not yet archived · Original link
AEL-19092-A-TCNLP-Tree Constraints New Layout Plan.pdf
P-Statement Other
Not yet archived · Original link
AEL-19092-A-TCP-Tree Constraints Plan.pdf
P-Statement Other
Not yet archived · Original link
AEL-19092-A-TIP-Tree Impact Plan.pdf
P-Statement Other
Not yet archived · Original link
AEL-19092-A-TPP-Tree Protection Plan.pdf
P-Statement Other
Not yet archived · Original link
AEL-19092-A-TSP-Tree Shadow Plan.pdf
P-Statement Other
Not yet archived · Original link
AEL-19092-A-TWP-Tree Work Plan.pdf
P-Statement Other
Not yet archived · Original link
Appendix A.pdf
P-Statement Other
Not yet archived · Original link
Appendix B.pdf
P-Statement Other
Not yet archived · Original link
Appendix C.pdf
P-Statement Other
Not yet archived · Original link
Appendix D.xlsx
P-Statement Other
Not yet archived · Original link
ApplicationFormRedacted.pdf
P-Planning Application Form
Not yet archived · Original link
CMP - 51 THORNBURY ROAD REV-0.pdf
P-Statement Other
Not yet archived · Original link
DECTP2
P-Decision Notice
Not yet archived · Original link
Drainage Catchment Areas
P-Supporting Information
Not yet archived · Original link
Drainage Construction Details 01
P-Supporting Information
Not yet archived · Original link
Drainage construction details 02
P-Supporting Information
Not yet archived · Original link
Drainage construction details 03
P-Supporting Information
Not yet archived · Original link
Energy & Sustainability 25135_ThornburyRoad_ESS_140125.pdf
P-Statement Other
Not yet archived · Original link
EXISTING DRAINAGE.pdf
P-Drainage documentation
Not yet archived · Original link
Floodflow Analysis
P-Supporting Information
Not yet archived · Original link
FRA REPORT.pdf
P-Drainage documentation
Not yet archived · Original link
LOCATION PLANS.pdf
P-Drainage documentation
Not yet archived · Original link
P-Committee Report
P-Committee Report
Not yet archived · Original link
P-Design and Access Statement
P-Design and Access Statement
Not yet archived · Original link
P-Drainage documentation
P-Drainage documentation
Not yet archived · Original link
P-Existing Plans
P-Existing Plans
Not yet archived · Original link
P-Proposed Elevation
P-Proposed Elevation
Not yet archived · Original link
P-Proposed Elevation
P-Proposed Elevation
Not yet archived · Original link
P-Proposed Plans
Archived · Original link
P-Proposed Plans
Archived · Original link
P-Proposed Plans
Archived · Original link
P-Proposed Plans
Archived · Original link
P-Rejected Plans
P-Rejected Plans
Not yet archived · Original link
P-Rejected Plans
P-Rejected Plans
Not yet archived · Original link
P-Statement Other
P-Statement Other
Not yet archived · Original link
P-Statement Other
P-Statement Other
Not yet archived · Original link
PLANNING STATEMENT.pdf
P-Planning Statement
Not yet archived · Original link
Proposed Drainage Layout
P-Supporting Information
Not yet archived · Original link
PROPOSED DRAINAGE.pdf
P-Drainage documentation
Not yet archived · Original link
P-Supporting Information
Archived · Original link
STM Environmental - Phase 1 Report - 51 Thornbury Road - Final Prt.1.pdf
P-Land contamination assessment
Not yet archived · Original link
STM Environmental - Phase 1 Report - 51 Thornbury Road - Final Prt.2.pdf
P-Land contamination assessment
Not yet archived · Original link
Sunlight assessment.pdf
P-Daylight or sunlight assessment
Not yet archived · Original link
Zaeem Chaudhary - 25_BNG_01_15.pdf
P-Statement Other
Not yet archived · Original link

Have your say

Your comment matters. Councils must consider every representation that raises material planning considerations.

Write a comment