← London Borough of Hounslow

Status

Pending New housing
Received
Not recorded
New homes
1

Summary

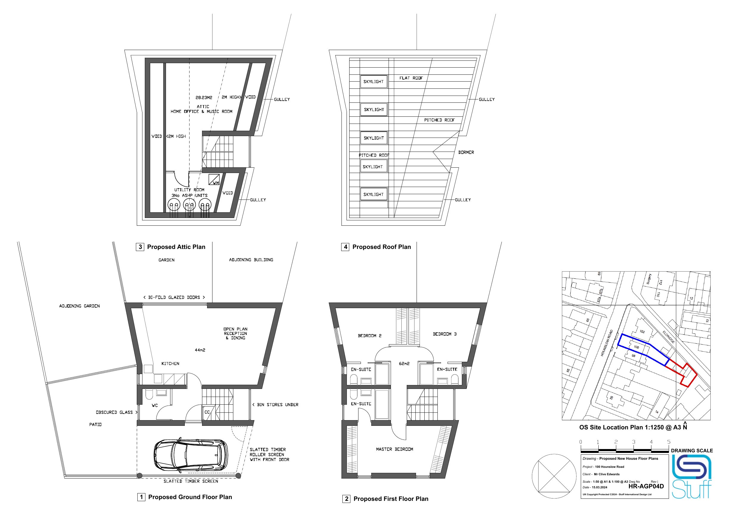
Subdivide plot and erect detached three-storey dwelling with one off-street parking space.

Full proposal

100 Hounslow Road, Feltham, TW14 0AX | PF-Full Applications | Subdivision of the plot and erection of a detached three-storey dwelling with one off-street parking space. | Application No: P/2025/1302 | Decided: 08 September 2025

Documents

100 Hounslow Road Feltham - Biodiversity Gain Plan_Final_Rev A_April 2025.pdf
P-Biodiversity credits details
Not yet archived · Original link
ApplicationFormRedacted.pdf
P-Planning Application Form
Not yet archived · Original link
DECTP3
P-Decision Notice
Not yet archived · Original link
Design and Access Statement
P-Design and Access Statement
Not yet archived · Original link
Existing and Proposed Block Plans received 14th July 2025
P-Existing Block
Not yet archived · Original link
Fire Safety Plan received 12th July 2025
P-Published Fire Safety
Not yet archived · Original link
Hounslow Road Energy Statement Rev01incl SAP calcs.pdf
P-Published Energy Statement
Not yet archived · Original link
Hounslow Road Energy Statement.pdf
P-Published Energy Statement
Not yet archived · Original link
Hounslow UGF Calculator.pdf
P-Statement Other
Not yet archived · Original link
HR-AGE05A Proposed New House Section.pdf
P-Proposed Sections
Not yet archived · Original link
incorrect drawings - roof level fenestration inconsistent
P-Rejected Plans
Not yet archived · Original link
P-Location Plan
Archived · Original link
P-Delegated Report
P-Delegated Report
Not yet archived · Original link
P-Drainage documentation
P-Drainage documentation
Not yet archived · Original link
Proposed Elevations received 10th July 2025
P-Proposed Elevation
Not yet archived · Original link
superseded elevations
P-Rejected Plans
Not yet archived · Original link
Superseded fire plan
P-Rejected Plans
Not yet archived · Original link
Written Reps - 100 Hounslow Rd.pdf
P-Transport Assessment
Not yet archived · Original link

Have your say

Your comment matters. Councils must consider every representation that raises material planning considerations.

Write a comment