← London Borough of Hounslow

Status

Pending House extension
Received
Not recorded
New homes
0

Full proposal

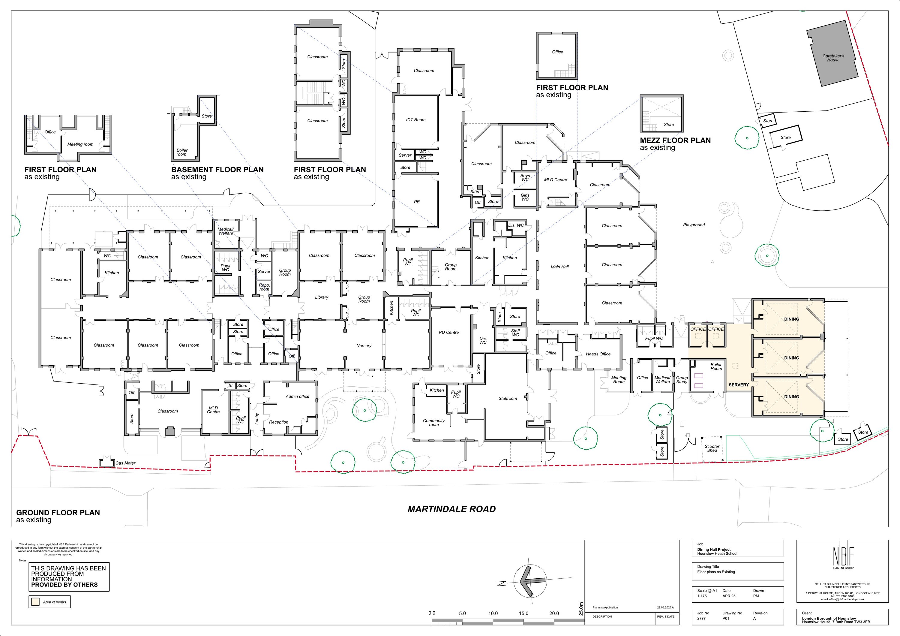
Hounslow Heath School, Martindale Road, Hounslow, TW4 7HE | PF-Full Applications | Erection of a single storey infill extension and new roof with increased height following the demolition of the existing three roof dormers on the south wing of the school., | Application No: P/2025/1702 | Decided: 25 July 2025

Documents

P-Design and Access Statement
Archived · Original link
P-Location Plan
Archived · Original link
P-Existing Elevation
Archived · Original link
P-Existing Elevation
Archived · Original link
P-Proposed Elevation
Archived · Original link
P-Proposed Elevation
Archived · Original link
P-Planning Application Form
Archived · Original link
P-Decision Notice
Archived · Original link
P-Delegated Report
Archived · Original link

Have your say

Your comment matters. Councils must consider every representation that raises material planning considerations.

Write a comment