← London Borough of Hounslow

Status

Pending House extension
Received
Not recorded
New homes
0

Summary

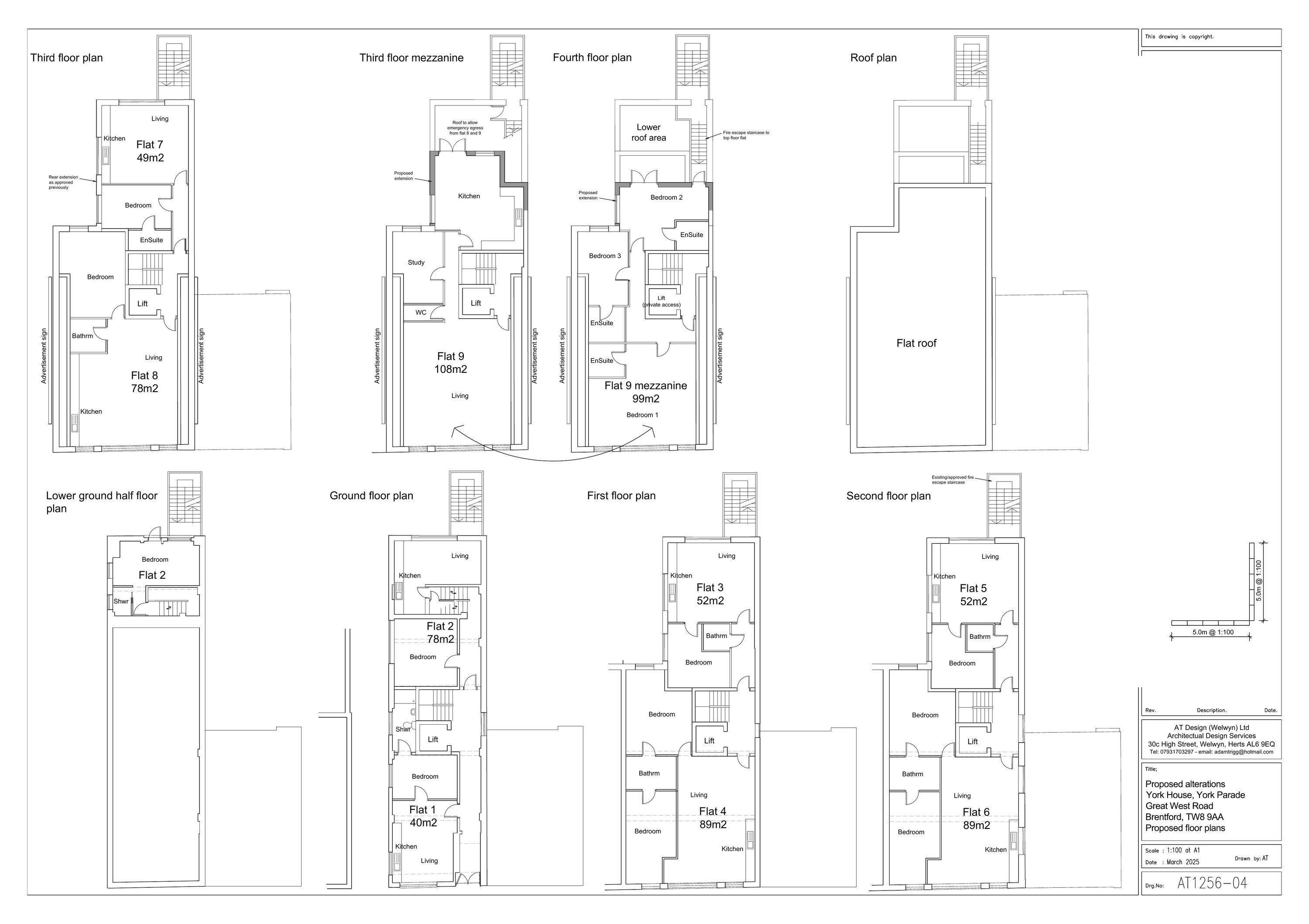
Part two, part single-storey fourth and fifth floor rear extension with internal mezzanine and new windows.

Full proposal

Flat 9 York House, York Parade, Great West Road, Brentford, TW8 9AA | PF-Full Applications | Erection of a part two, part single storey fourth and fifth floor rear extension, provision of an internal fourth floor mezzanine and installation of replacement third, fourth and fifth floor front wi... | Application No: P/2025/2170 | :

Documents

Amended Existing Pans Received: 18 September 2025
P-Existing Plans
Not yet archived · Original link
Design and Access Statement
P-Design and Access Statement
Not yet archived · Original link
Existing Elevations
P-Existing Elevation
Not yet archived · Original link
Existing Floor Plans
P-Existing Plans
Not yet archived · Original link
Fire Statement
P-Published Fire Safety
Not yet archived · Original link
Proposed Elevations
P-Proposed Elevation
Not yet archived · Original link
P-Proposed Plans
Archived · Original link
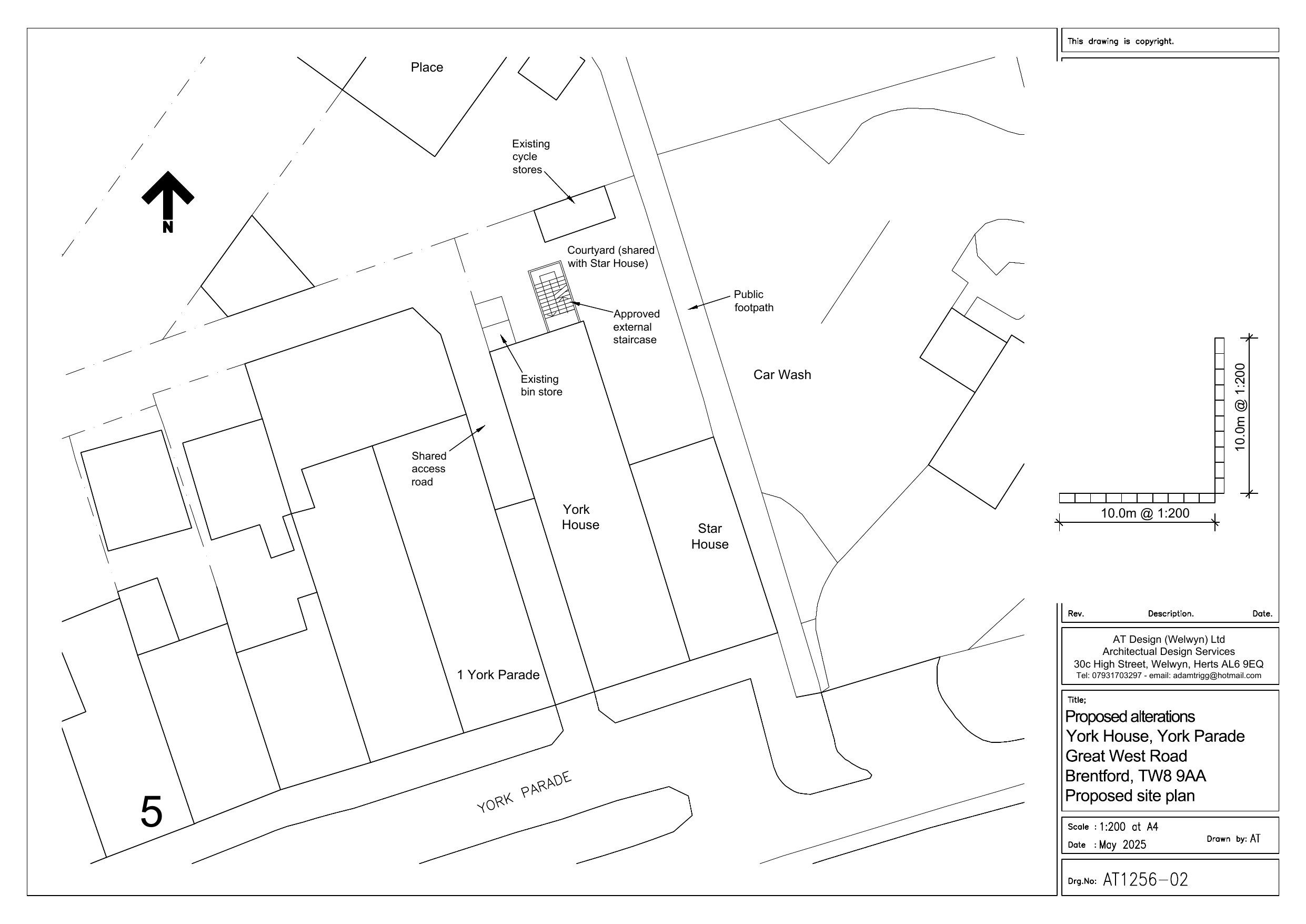
P-Proposed Site
Archived · Original link
Redacted Application Form
P-Planning Application Form
Not yet archived · Original link
P-Location Plan
Archived · Original link

Have your say

Your comment matters. Councils must consider every representation that raises material planning considerations.

Write a comment