← London Borough of Hounslow

Status

Pending House extension
Received
Not recorded
New homes
0

Summary

External alterations and rear extensions to flats, including new windows and rear kitchen/bedroom extensions.

Full proposal

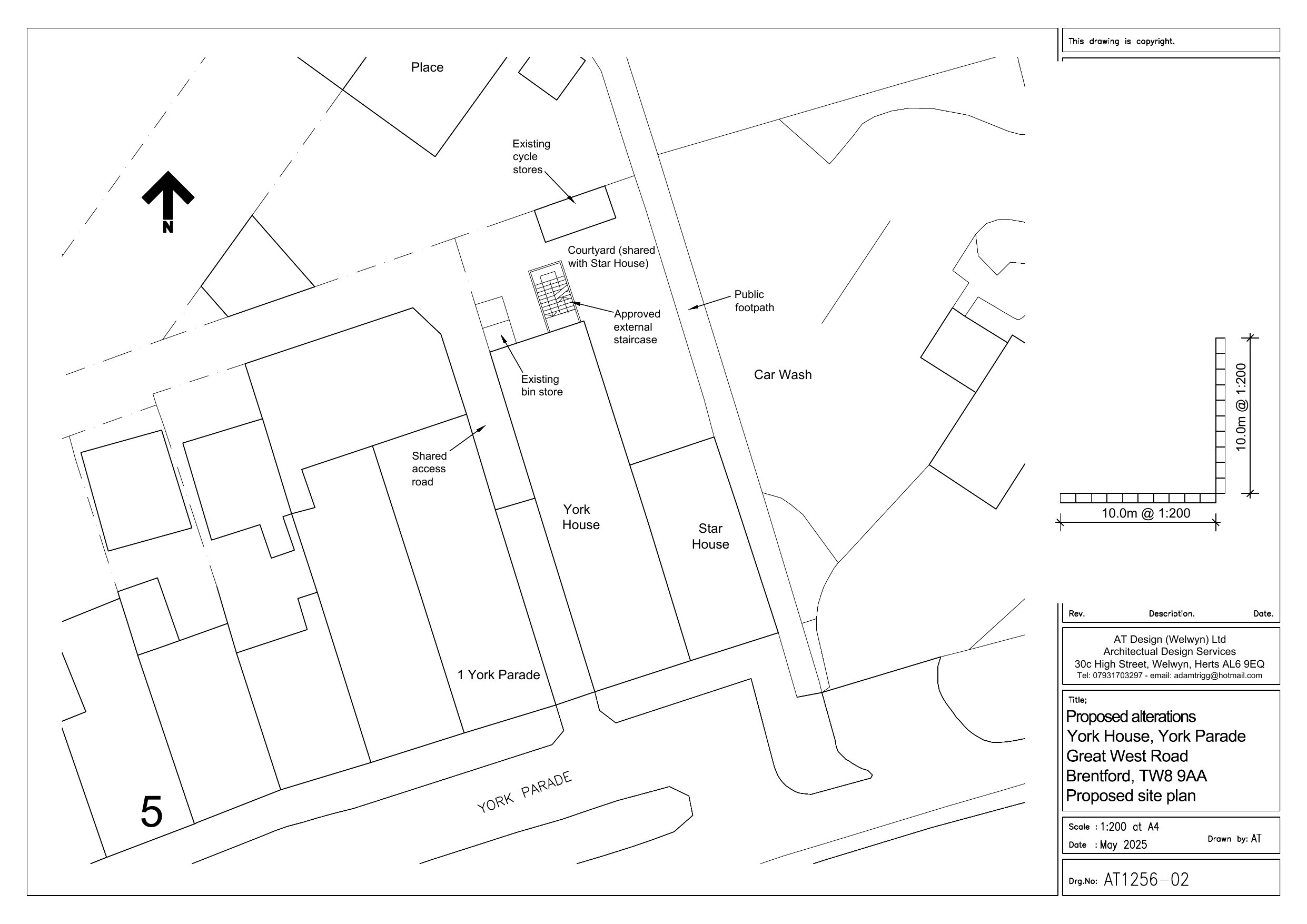
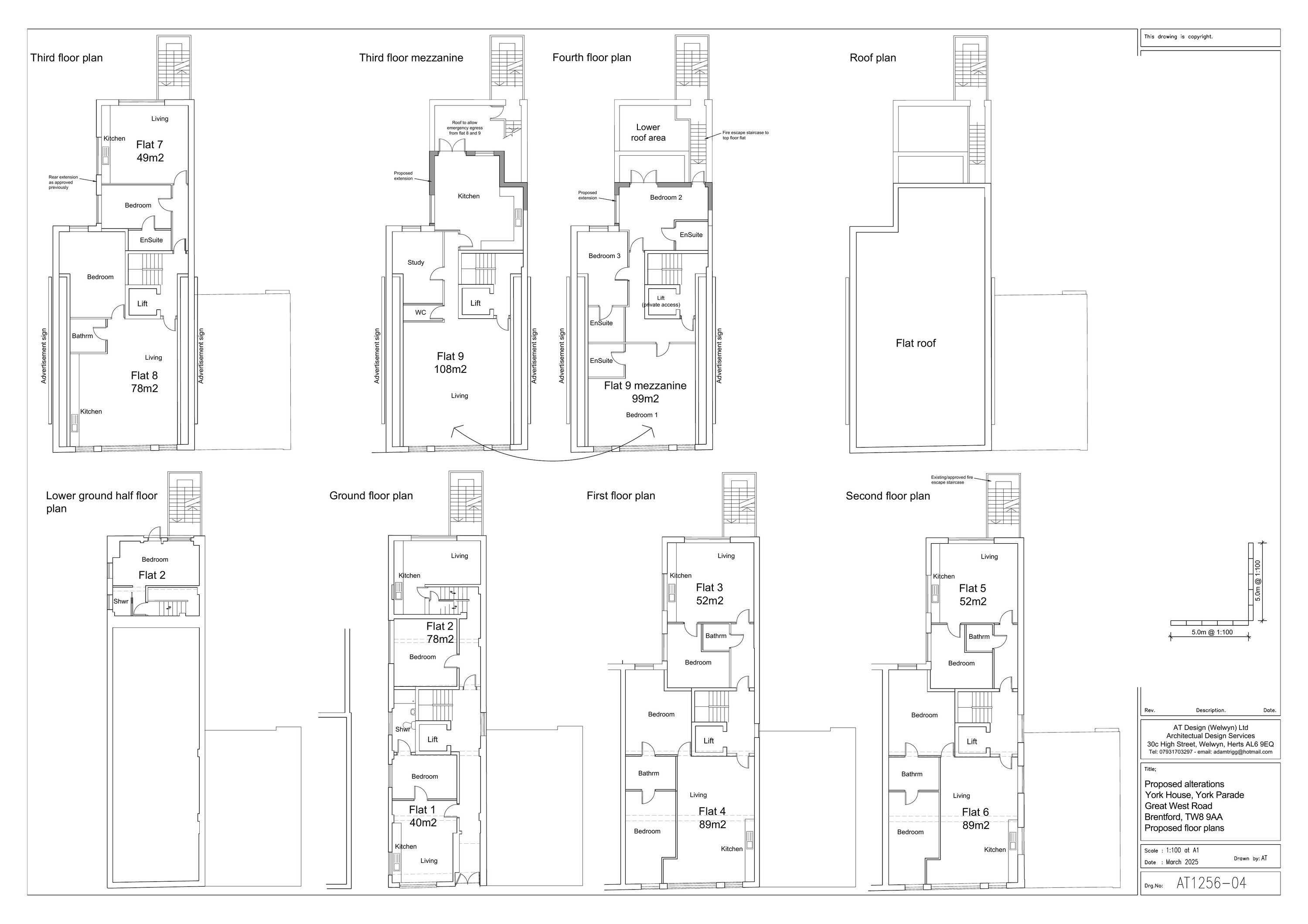
York House, York Parade Great West Road, Brentford, TW8 9AA | PF-Full Applications | EXTERNAL ALTERATIONS AND EXTENSIONS TO FLAT BLOCK COMPRISING NEW WINDOWS TO THE FRONT AND REAR ELEVATIONS AT 4TH AND 5TH FLOOR LEVELS AND REAR EXTENSIONS FOR KITCHEN AND BEDROOM ACCOMMODATION TO FLAT ... | Application No: P/2025/2282 | :

Documents

ApplicationFormRedacted.pdf
P-Planning Application Form
Not yet archived · Original link
DESIGN AND ACCESS STATEMENT YORK HOUSE YORK PARADE (JULY 2025).pdf
P-Design and Access Statement
Not yet archived · Original link
Elevation (Rear) - Existing_included_in_Elevation (Front) - Existing.pdf
P-Existing Elevation
Not yet archived · Original link
Elevation (Rear) - Proposed_included_in_Elevation (Front) - Proposed.pdf
P-Proposed Elevation
Not yet archived · Original link
Elevation (Side) - Existing_included_in_Elevation (Front) - Existing.pdf
P-Existing Elevation
Not yet archived · Original link
Elevation (Side) - Proposed_included_in_Elevation (Front) - Proposed.pdf
P-Proposed Elevation
Not yet archived · Original link
FIRE STATEMENT.rtf
P-Published Fire Safety
Not yet archived · Original link
YORK HOUSE AT1256-05 Existing elevations (1).pdf
P-Existing Elevation
Not yet archived · Original link
YORK HOUSE YORK PARADE AT1256-03 Existing floor plans (2).pdf
P-Existing Plans
Not yet archived · Original link
YORK HOUSE YORK PARADE BRENTFORD AT1256-06 Proposed elevations (2).pdf
P-Proposed Elevation
Not yet archived · Original link

Have your say

Your comment matters. Councils must consider every representation that raises material planning considerations.

Write a comment