← London Borough of Hounslow

Status

Pending New housing
Received
Not recorded
New homes
5

Full proposal

468 London Road, Isleworth, TW7 4BF | PF-Full Applications | Part change of use from commercial (Use Class E) to residential (Use Class C3) and erection of mansard roof extensions compromising of five self-contained flats with associated landscaping, car parkin... | Application No: P/2025/2717 | Decided: 18 December 2025

Documents

1901 3 A 0 300-Rev00.pdf
P-Existing Sections
Not yet archived · Original link
1901_Design And Access Statement-Rev01-1-3.pdf
P-Design and Access Statement
Not yet archived · Original link
1901_Design And Access Statement-Rev01-14-19.pdf
P-Design and Access Statement
Not yet archived · Original link
1901_Design And Access Statement-Rev01-20-26.pdf
P-Design and Access Statement
Not yet archived · Original link
1901_Design And Access Statement-Rev01-27-30.pdf
P-Design and Access Statement
Not yet archived · Original link
1901_Design And Access Statement-Rev01-31-42.pdf
P-Design and Access Statement
Not yet archived · Original link
1901_Design And Access Statement-Rev01-4-7.pdf
P-Design and Access Statement
Not yet archived · Original link
1901_Design And Access Statement-Rev01-8-13.pdf
P-Design and Access Statement
Not yet archived · Original link
Amended
P-Published Energy Statement
Not yet archived · Original link
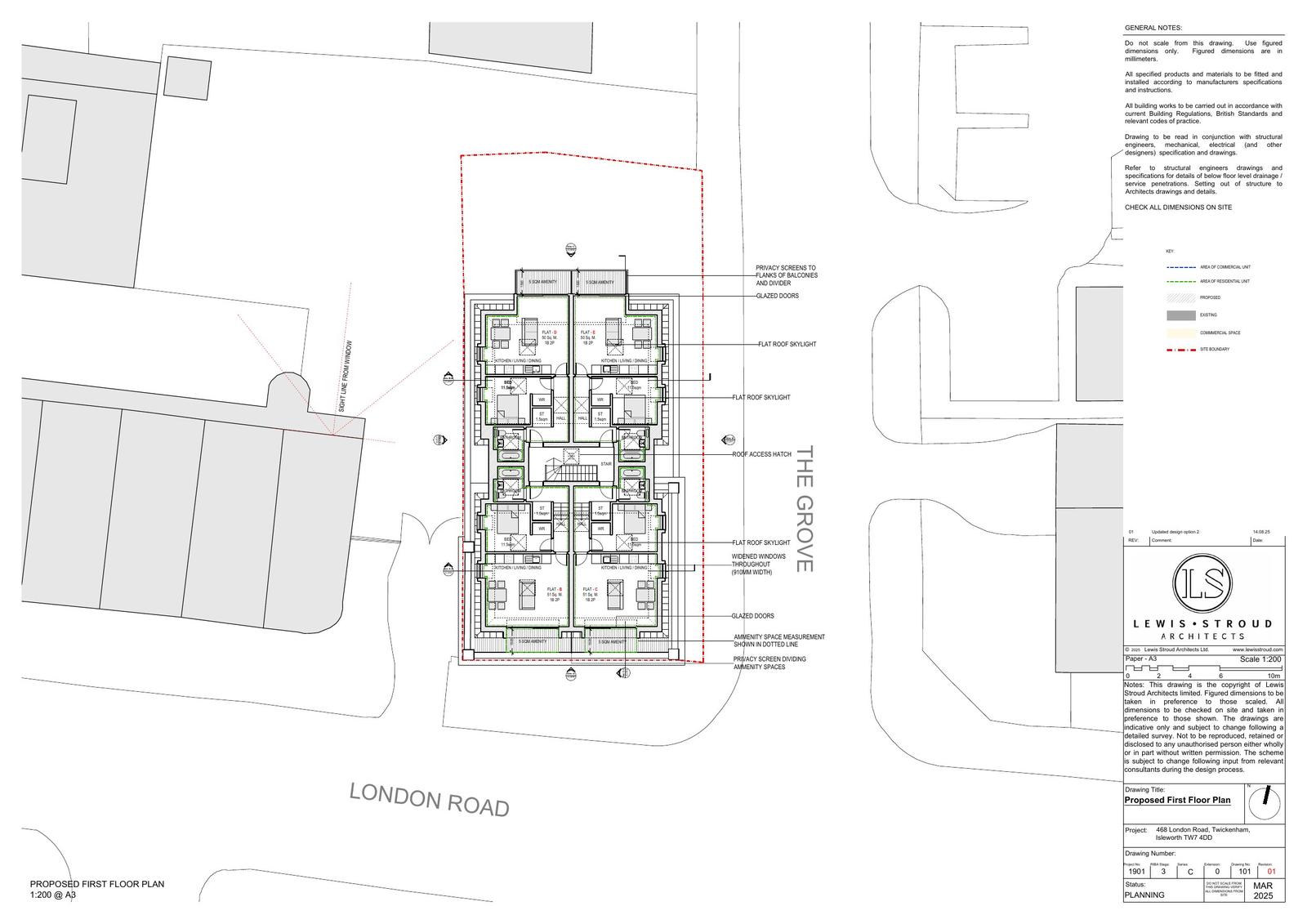
Amended first floor, elevations, sections
P-Proposed Plans
Not yet archived · Original link
Amended roof plan
P-Proposed Plans
Not yet archived · Original link
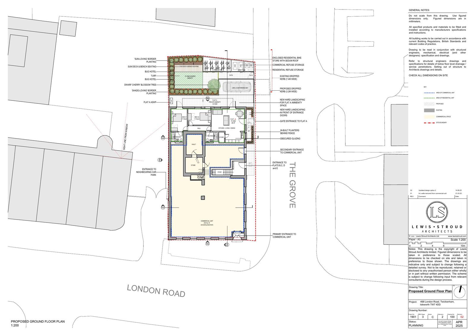
Amended site, ground floor, elevations
P-Proposed Plans
Not yet archived · Original link
Amended Sustainability Statement
P-Statement Other
Not yet archived · Original link
ApplicationFormRedacted.pdf
P-Planning Application Form
Not yet archived · Original link
Basement
P-Proposed Plans
Not yet archived · Original link
BRE Daylight and Sunlight Assessment.pdf
P-Daylight or sunlight assessment
Not yet archived · Original link
Combined
P-Design and Access Statement
Not yet archived · Original link
DECTP2
P-Decision Notice
Not yet archived · Original link
Duplicate Fire Safety Statement.pdf
P-Rejected Plans
Not yet archived · Original link
East
P-Existing Elevation
Not yet archived · Original link
East
P-Existing Elevation
Not yet archived · Original link
GLA Carbon Emissions Reporting spreadsheet
P-Statement Other
Not yet archived · Original link
Ground floor
P-Existing Plans
Not yet archived · Original link
Heritage Impact Assessment.pdf
P-Heritage impact statement
Not yet archived · Original link
Location plan
P-Existing Plans
Not yet archived · Original link
LocationPlan.pdf
P-Location Plan
Not yet archived · Original link
Noise Assessment Report.pdf
P-Published Noise Assessment
Not yet archived · Original link
P-Delegated Report
P-Delegated Report
Not yet archived · Original link
P-Planning Application Form
P-Planning Application Form
Not yet archived · Original link
P-Published Fire Safety
P-Published Fire Safety
Not yet archived · Original link
Planning statement
P-Planning Statement
Not yet archived · Original link
Rear car park
P-Existing Plans
Not yet archived · Original link
Roof
P-Existing Plans
Not yet archived · Original link
SAP Reports
P-Statement Other
Not yet archived · Original link
Site block plan
P-Existing Site
Not yet archived · Original link
P-Existing Site
Archived · Original link
P-Existing Site
Archived · Original link
South
P-Existing Elevation
Not yet archived · Original link
Superseded 1901 3 C 0 001-Rev01.pdf
P-Rejected Plans
Not yet archived · Original link
Superseded 1901 3 C 0 300-Rev01.pdf
P-Rejected Plans
Not yet archived · Original link
Superseded 1901 3 C 0 301-Rev01.pdf
P-Rejected Plans
Not yet archived · Original link
Superseded 1901 3 C 0 302-Rev01.pdf
P-Rejected Plans
Not yet archived · Original link
Superseded 1:50 View of rear (north) elevation
P-Rejected Plans
Not yet archived · Original link
Superseded Bin and cycle stores
P-Rejected Plans
Not yet archived · Original link
Superseded Block plan
P-Rejected Plans
Not yet archived · Original link
Superseded DEMOLITION PLANS.pdf
P-Rejected Plans
Not yet archived · Original link
Superseded Energy Assessment.pdf
P-Rejected Plans
Not yet archived · Original link
Superseded First floor, elevations, and sections
P-Rejected Plans
Not yet archived · Original link
Superseded GLA Carbon Emission Reporting Spreadsheet.xlsx
P-Rejected Plans
Not yet archived · Original link
Superseded Landscape Plan
P-Rejected Plans
Not yet archived · Original link
Superseded proposed BOUNDARY TREATMENT
P-Rejected Plans
Not yet archived · Original link
Superseded proposed east elevation
P-Rejected Plans
Not yet archived · Original link
Superseded proposed first floor
P-Rejected Plans
Not yet archived · Original link
Superseded PROPOSED GLAZING.pdf
P-Rejected Plans
Not yet archived · Original link
Superseded Proposed Ground
P-Rejected Plans
Not yet archived · Original link
Superseded proposed ground floor, side elevation
P-Rejected Plans
Not yet archived · Original link
Superseded proposed landscaping with existing
P-Rejected Plans
Not yet archived · Original link
Superseded Proposed North
P-Rejected Plans
Not yet archived · Original link
P-Rejected Plans
Archived · Original link
Superseded Proposed Roof
P-Rejected Plans
Not yet archived · Original link
P-Rejected Plans
Archived · Original link
Superseded proposed site
P-Rejected Plans
Not yet archived · Original link
Superseded proposed south elevation
P-Rejected Plans
Not yet archived · Original link
Superseded Proposed West
P-Rejected Plans
Not yet archived · Original link
Superseded Site block plan
P-Rejected Plans
Not yet archived · Original link
Superseded Sustainability Statement.pdf
P-Rejected Plans
Not yet archived · Original link
Update cover letter
P-Statement Other
Not yet archived · Original link
West
P-Existing Sections
Not yet archived · Original link
West
P-Existing Elevation
Not yet archived · Original link

Have your say

Your comment matters. Councils must consider every representation that raises material planning considerations.

Write a comment