← London Borough of Hounslow

Status

Pending New housing
Received
Not recorded
New homes
7

Full proposal

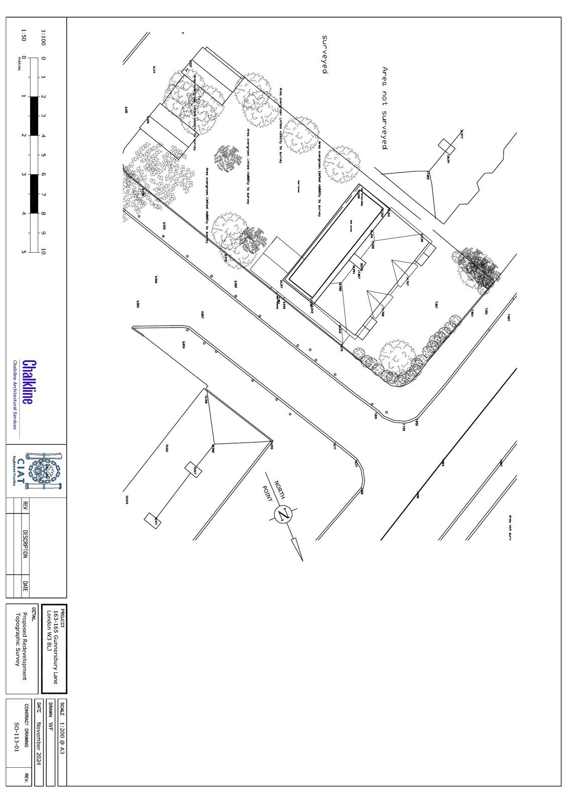
163 -165 Gunnersbury Lane, Acton, London, W3 8LJ | PF-Full Applications | Erection of a three storey house and a basement comprising of seven self contained flats with associated car parking, landscaping, cycle and refuse storage following the demolition of the existing pai... | Application No: P/2026/0008 | Decided: 06 March 2026

Documents

P-Daylight or sunlight assessment
Archived · Original link
P-Published Noise Assessment
Archived · Original link
P-Published Noise Assessment
Archived · Original link
P-Planning Application Form
Archived · Original link
P-Biodiversity credits details
Archived · Original link
P-Biodiversity credits details
Archived · Original link
P-All in one Plans Proposed
Archived · Original link
P-Proposed Other
Archived · Original link
P-Decision Notice
Archived · Original link
P-Design and Access Statement
Archived · Original link
P-Proposed Other
Archived · Original link
P-Statement Other
Archived · Original link
P-Published Fire Safety
Archived · Original link
P-Planning Statement
Archived · Original link
P-Heritage impact statement
Archived · Original link
P-Location Plan
Archived · Original link
P-Delegated Report
Archived · Original link
P-Biodiversity credits details
Archived · Original link
P-Existing Site
Archived · Original link

Have your say

Your comment matters. Councils must consider every representation that raises material planning considerations.

Write a comment