← London Borough of Hounslow

Status

Pending Change of use
Received
Not recorded
New homes
0

Full proposal

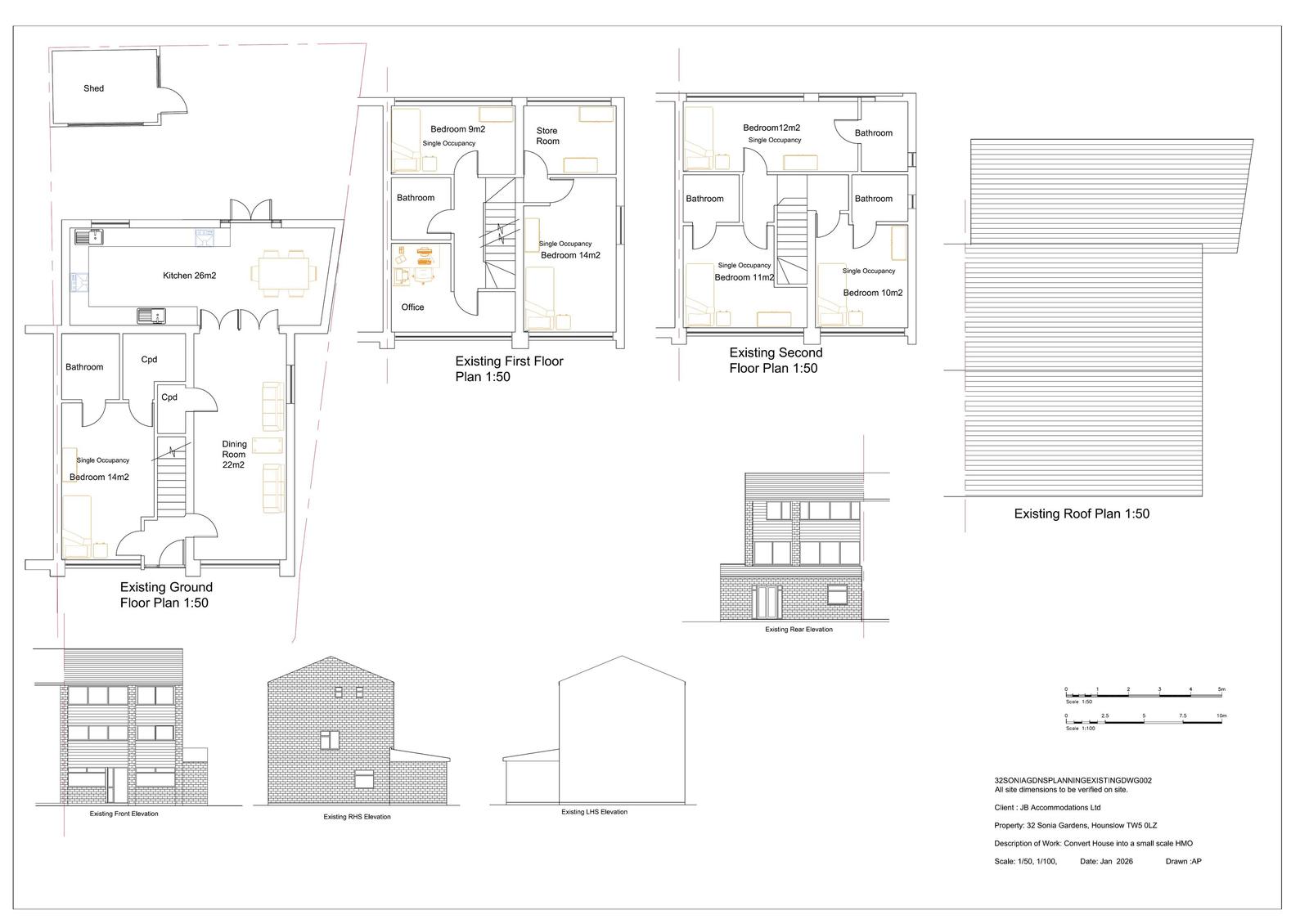
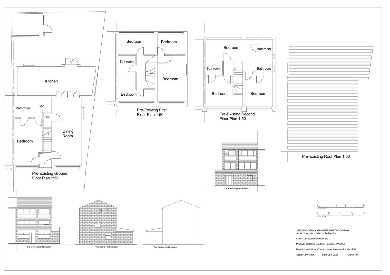
32 Sonia Gardens, Hounslow, TW5 0LZ | PF-Full Applications | Retrospective permission for the conversion of the existing residential house to a House in Multiple Occupation (HMO). | Application No: P/2026/0033 | Registered : 22 January 2026

Documents

P-Design and Access Statement
Archived · Original link
P-Planning Application Form
Archived · Original link
P-All in one Plans Proposed
Archived · Original link
P-Published Fire Safety
Archived · Original link
P-Location Plan
Archived · Original link
P-All in one Plans Proposed
Archived · Original link

Have your say

Your comment matters. Councils must consider every representation that raises material planning considerations.

Write a comment