← London Borough of Hounslow

Status

Pending House extension
Received
Not recorded
New homes
0

Full proposal

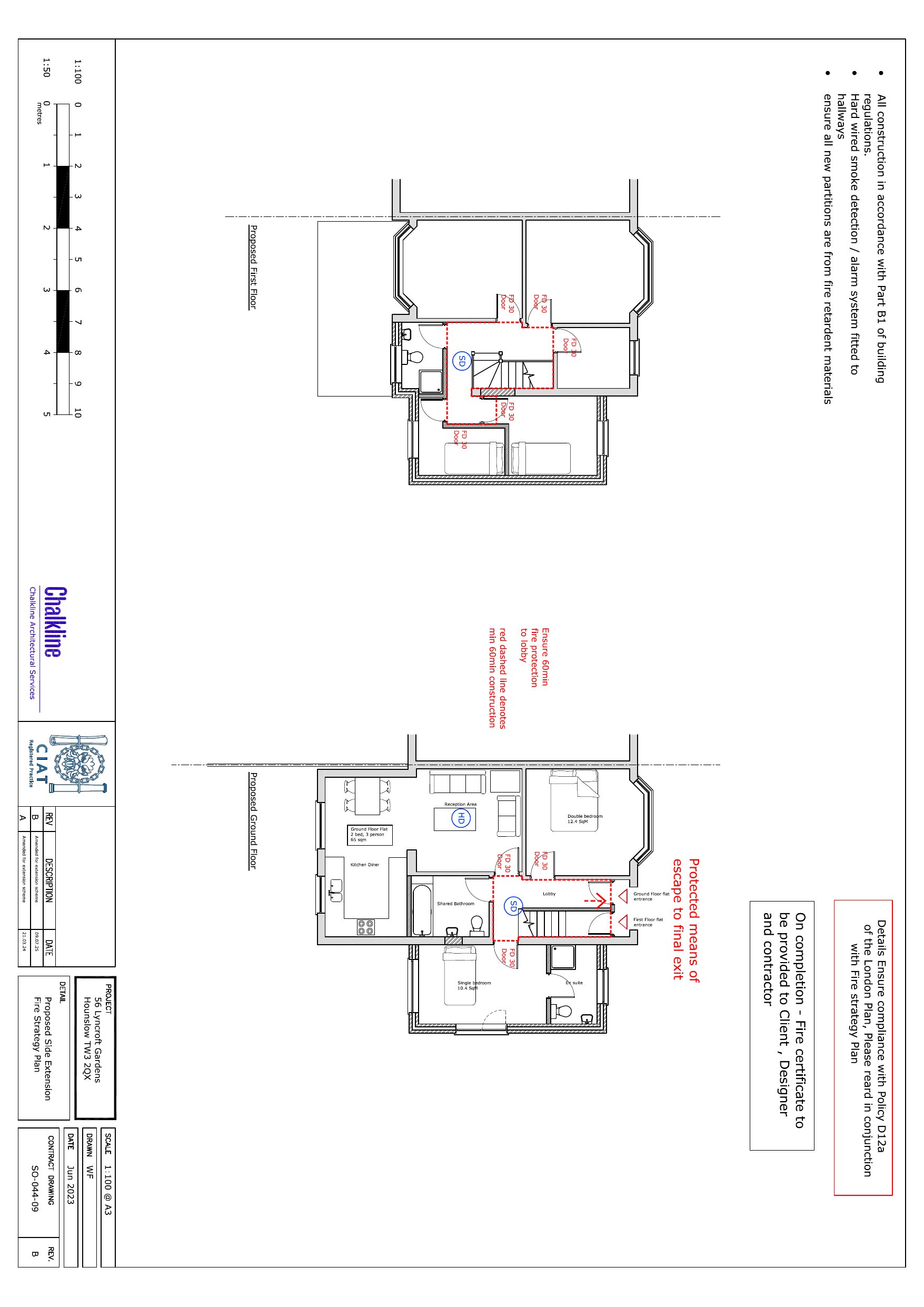
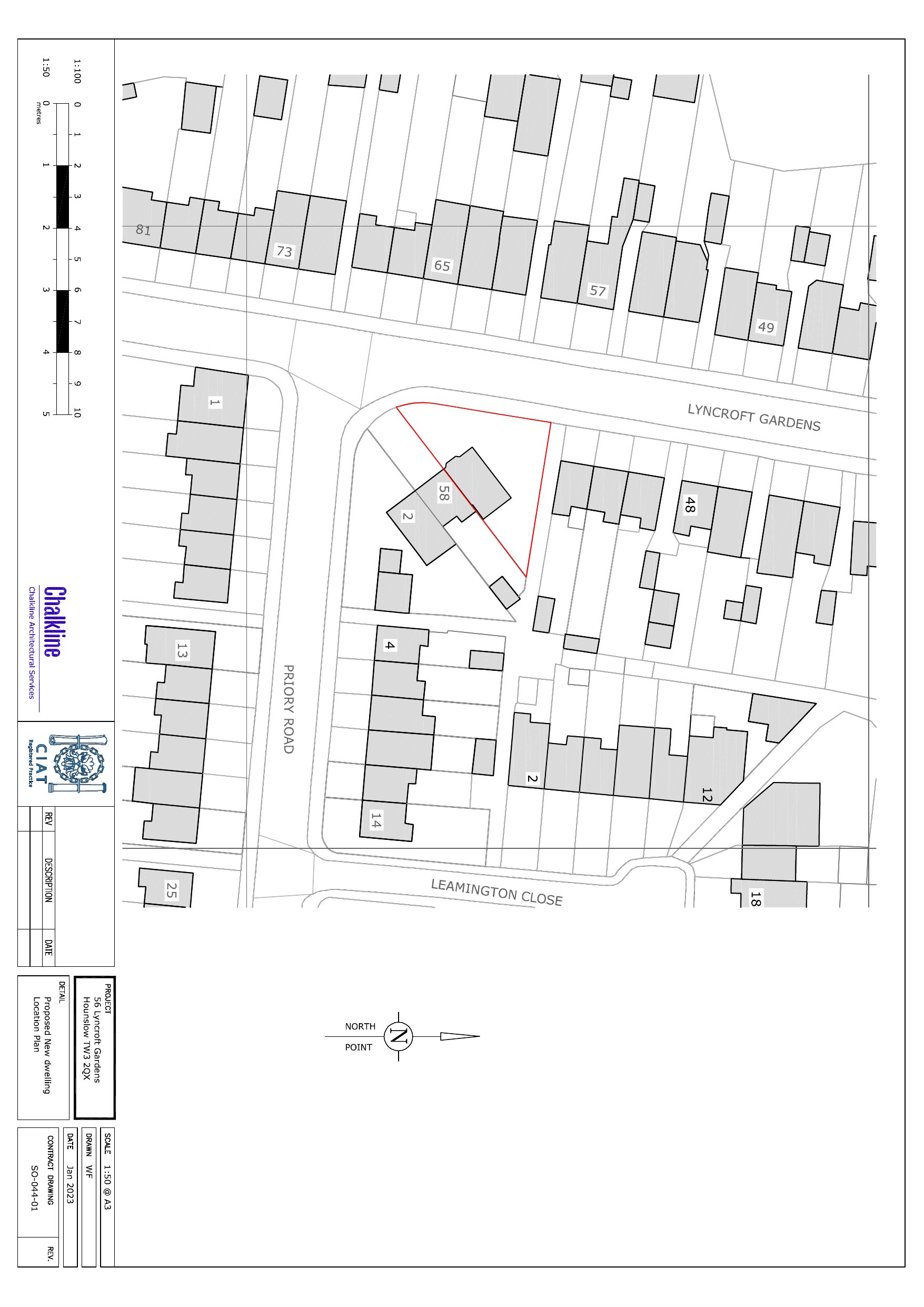
56 Lyncroft Gardens, Hounslow, TW3 2QX | PF-Full Applications | Erection of a two storey side extension to allow the conversion into two self contained flats | Application No: P/2026/0114 | Registered : 26 January 2026

Documents

P-Design and Access Statement
Archived · Original link
P-Published Fire Safety
Archived · Original link
P-Planning Application Form
Archived · Original link
P-All in one Plans Proposed
Archived · Original link
P-Location Plan
Archived · Original link
P-Published Energy Statement
Archived · Original link

Have your say

Your comment matters. Councils must consider every representation that raises material planning considerations.

Write a comment