← London Borough of Hounslow

Status

Pending House extension
Received
Not recorded
New homes
0

Full proposal

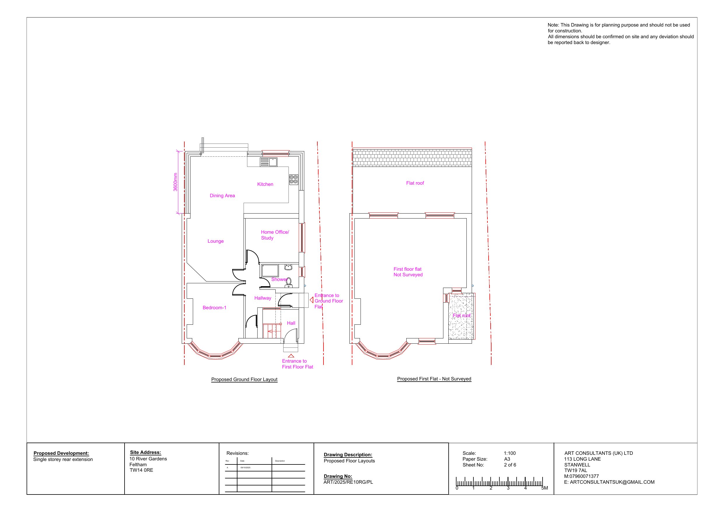
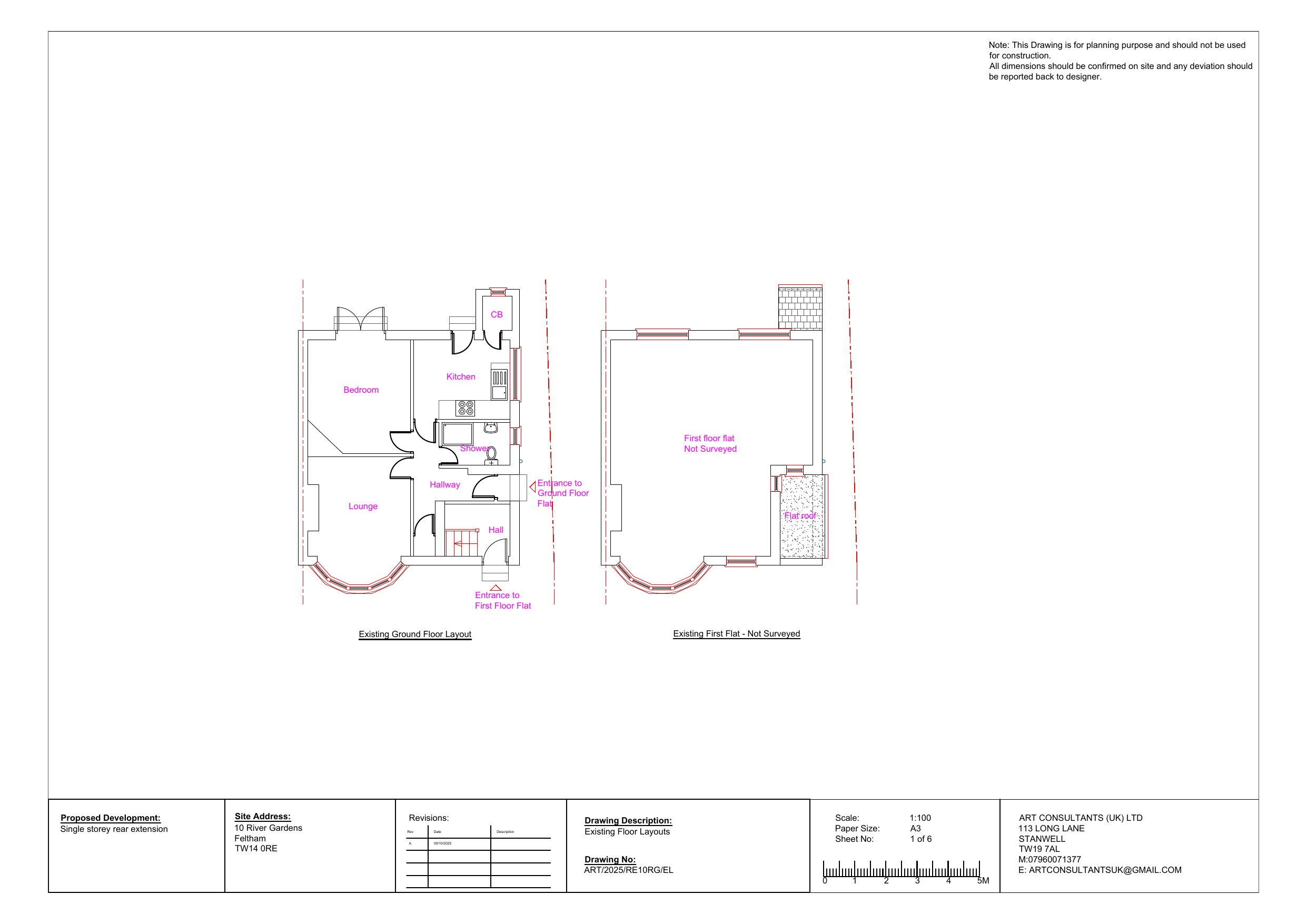
10 River Gardens,Feltham,TW14 0RE | PF-Full Applications | Erection of a single storey rear extension to the ground floor flat. | Application No: P/2026/0137 | Registered : 19 January 2026

Documents

P-Planning Application Form
Archived · Original link
P-Existing Elevation
Archived · Original link
P-Existing Plans
Archived · Original link
P-Published Fire Safety
Archived · Original link
P-Proposed Elevation
Archived · Original link
P-Proposed Plans
Archived · Original link
P-Proposed Site
Archived · Original link

Have your say

Your comment matters. Councils must consider every representation that raises material planning considerations.

Write a comment