← London Borough of Hounslow

Status

Pending Change of use
Received
Not recorded
New homes
0

Full proposal

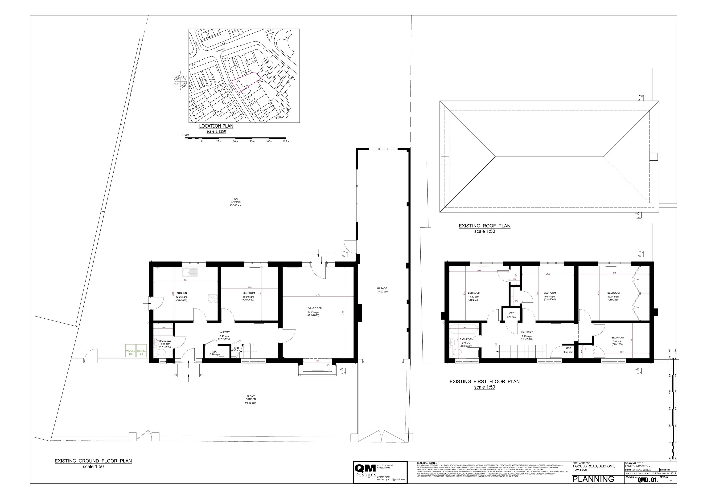
1 Gould Road, Feltham, TW14 8AB | PF-Full Applications | Change of use of the existing family house (C3) to a House in Multiple Occupation (Sui Generis) with associated cycle and refuse storage. | Application No: P/2026/0295 | Registered : 06 February 2026

Documents

P-All in one Plans Proposed
Archived · Original link
P-Planning Application Form
Archived · Original link
P-Biodiversity credits details
Archived · Original link
P-Statement Other
Archived · Original link
P-Published Fire Safety
Archived · Original link
P-Statement Other
Archived · Original link
P-Location Plan
Archived · Original link
P-Existing Site
Archived · Original link

Have your say

Your comment matters. Councils must consider every representation that raises material planning considerations.

Write a comment