← London Borough of Hounslow

Status

Pending New housing
Received
Not recorded
New homes
1

Full proposal

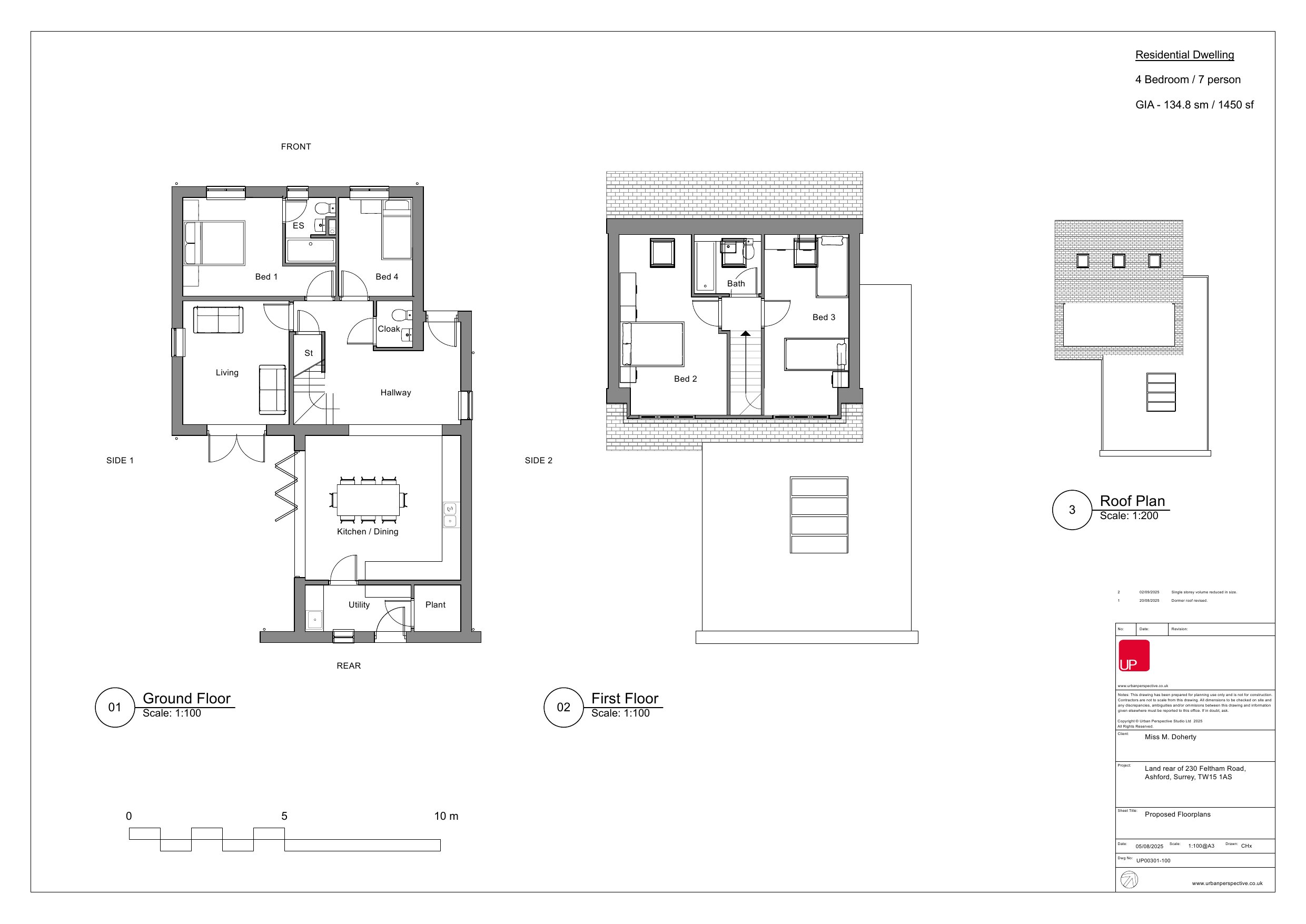
230 Feltham Road, Ashford, TW15 1AS | PF-Full Applications | Erection of a two storey house with associated landscaping, car parking, cycle and refuse storage. | Application No: P/2026/0659 | Registered : 06 March 2026

Documents

3D view
P-Proposed Elevation
Not yet archived · Original link
BNG calculations
P-Biodiversity credits details
Not yet archived · Original link
Ecology report
P-Biodiversity credits details
Not yet archived · Original link
P-Design and Access Statement
P-Design and Access Statement
Not yet archived · Original link
P-Location Plan
P-Location Plan
Not yet archived · Original link
P-Planning Application Form
P-Planning Application Form
Not yet archived · Original link
P-Proposed Elevation
P-Proposed Elevation
Not yet archived · Original link
P-Proposed Plans
Archived · Original link
P-Proposed Plans
Archived · Original link
P-Proposed Sections
P-Proposed Sections
Not yet archived · Original link
P-Proposed Site
P-Proposed Site
Not yet archived · Original link
P-Published Energy Statement
P-Published Energy Statement
Not yet archived · Original link
Site and car arrangement details.
P-Proposed Block
Not yet archived · Original link
Site and car arrangement details.
P-Proposed Block
Not yet archived · Original link
Site and car arrangement details.
P-Proposed Block
Not yet archived · Original link

Have your say

Your comment matters. Councils must consider every representation that raises material planning considerations.

Write a comment