← London Borough of Hounslow

Status

Pending Change of use
Received
Not recorded
New homes
1

Full proposal

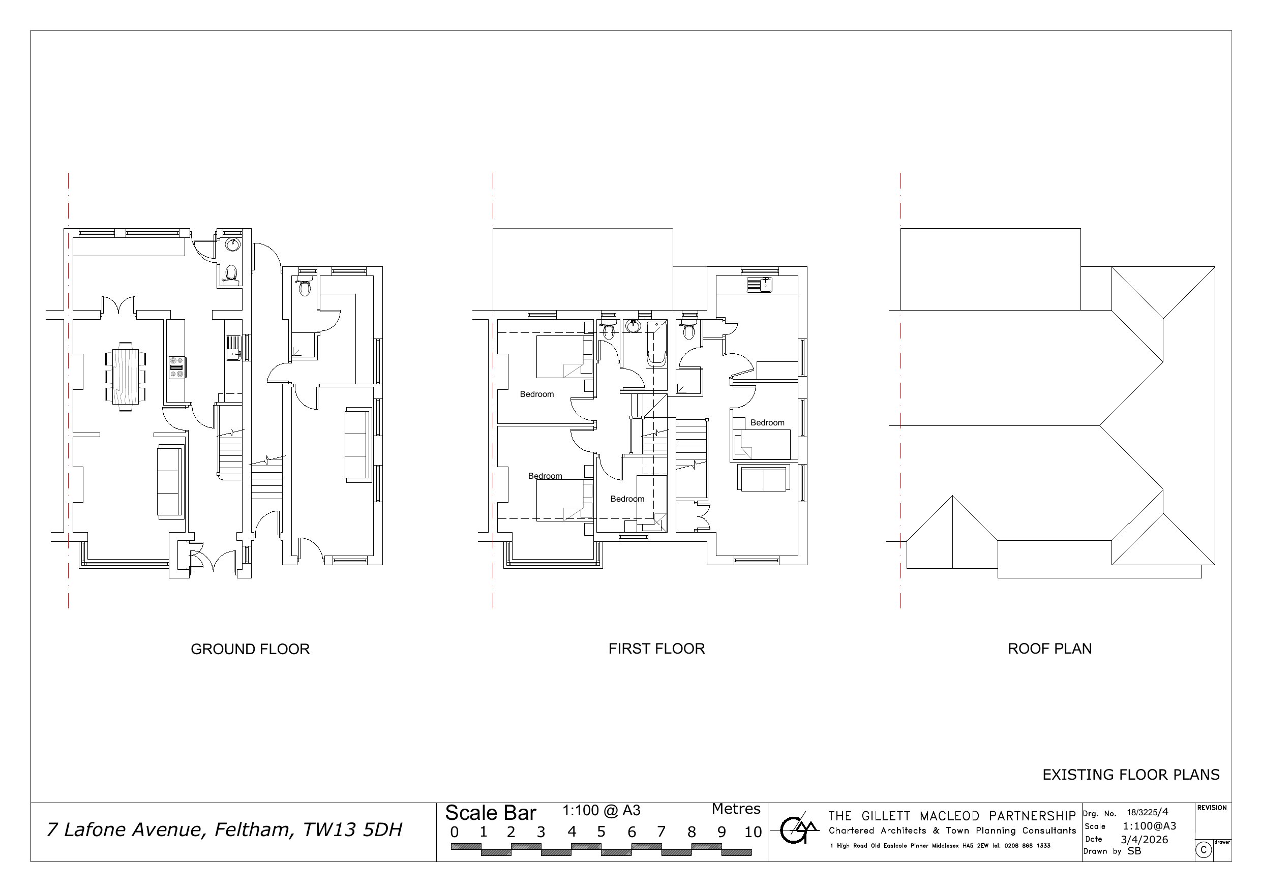
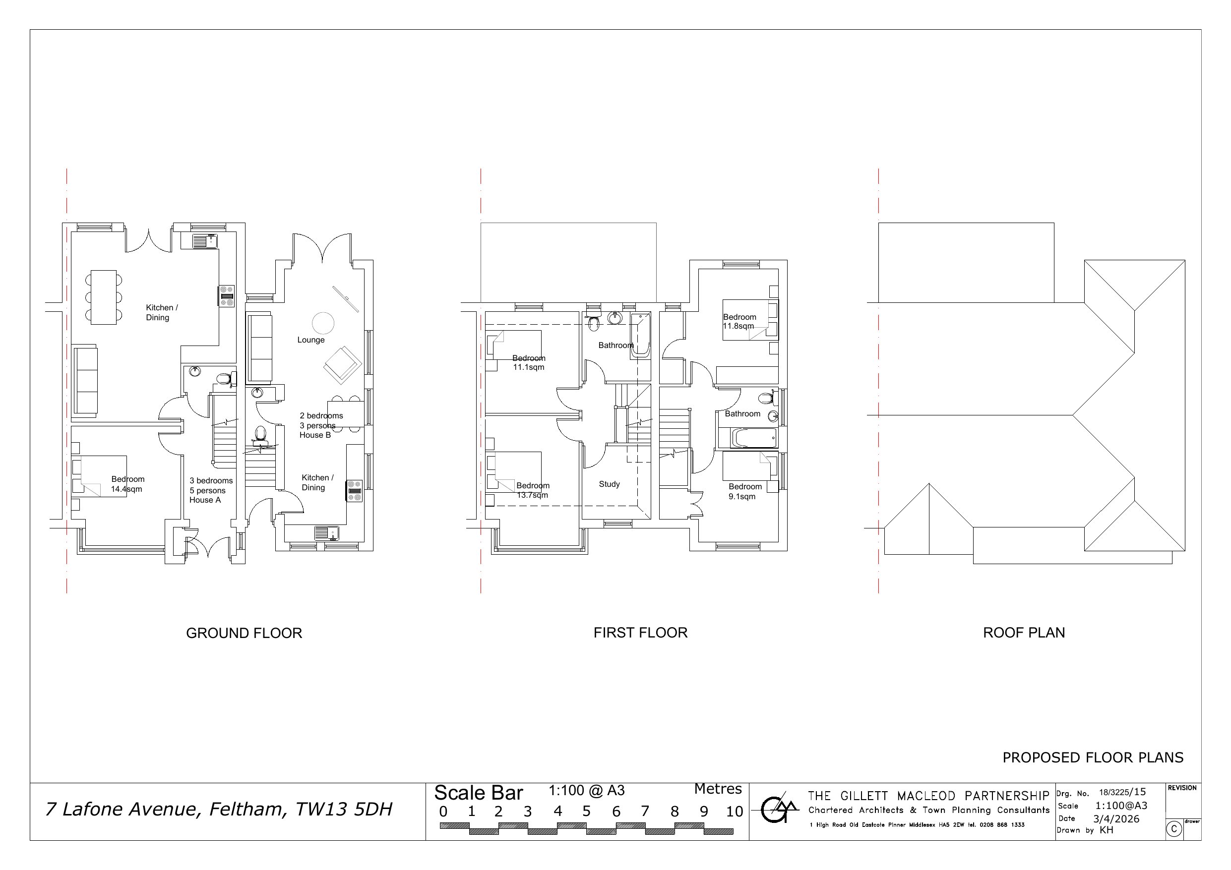
7 Lafone Avenue, Feltham, TW13 5DH | PF-Full Applications | Conversion of a six person House in Multiple Occupation (Class C4) to two houses (Class C3). | Application No: P/2026/0756 | Registered : 10 March 2026

Documents

P-Existing Elevation
Archived · Original link
P-Existing Plans
Archived · Original link
P-Existing Site
Archived · Original link
P-Location Plan
Archived · Original link
P-Proposed Elevation
Archived · Original link
P-Proposed Plans
Archived · Original link
P-Proposed Site
Archived · Original link

Have your say

Your comment matters. Councils must consider every representation that raises material planning considerations.

Write a comment