← Hull City Council

Status

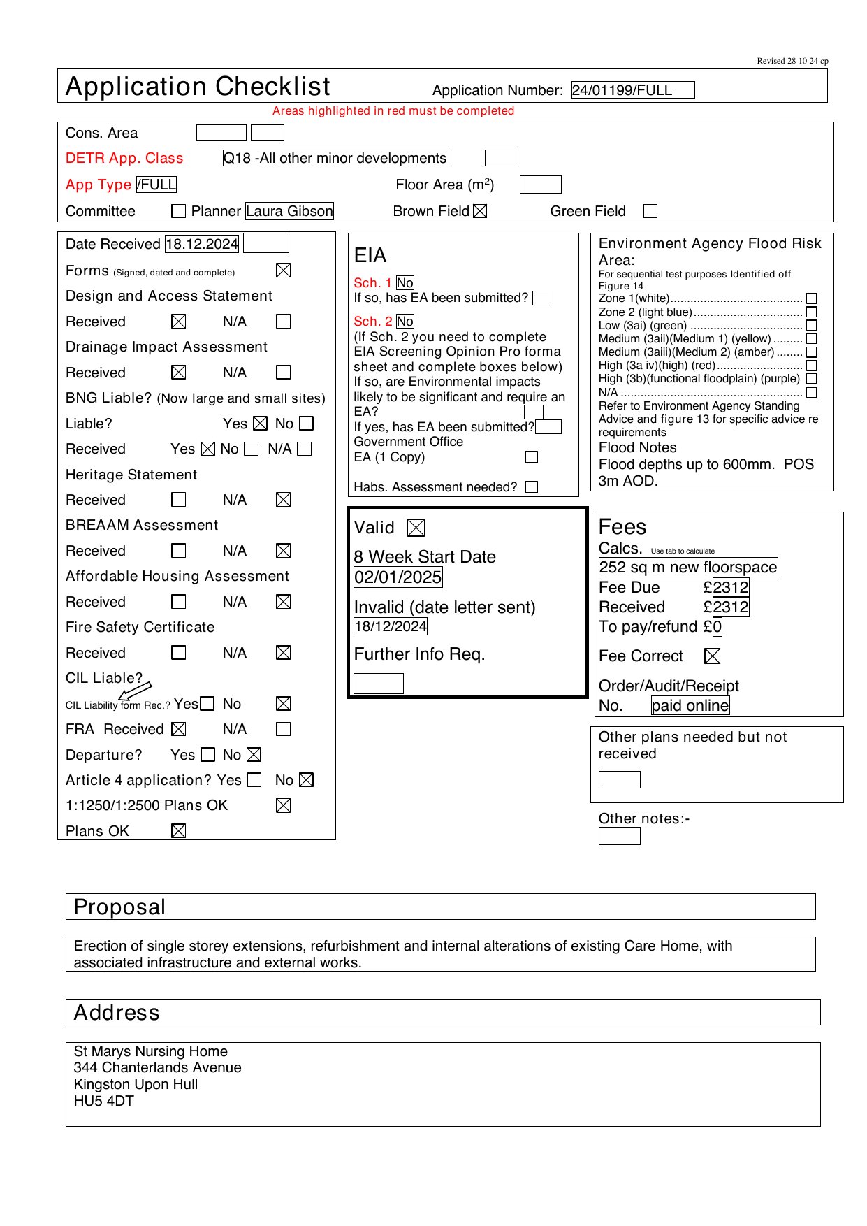
Application Permitted Commercial
Received
18 Dec 2024
New homes
0

Full proposal

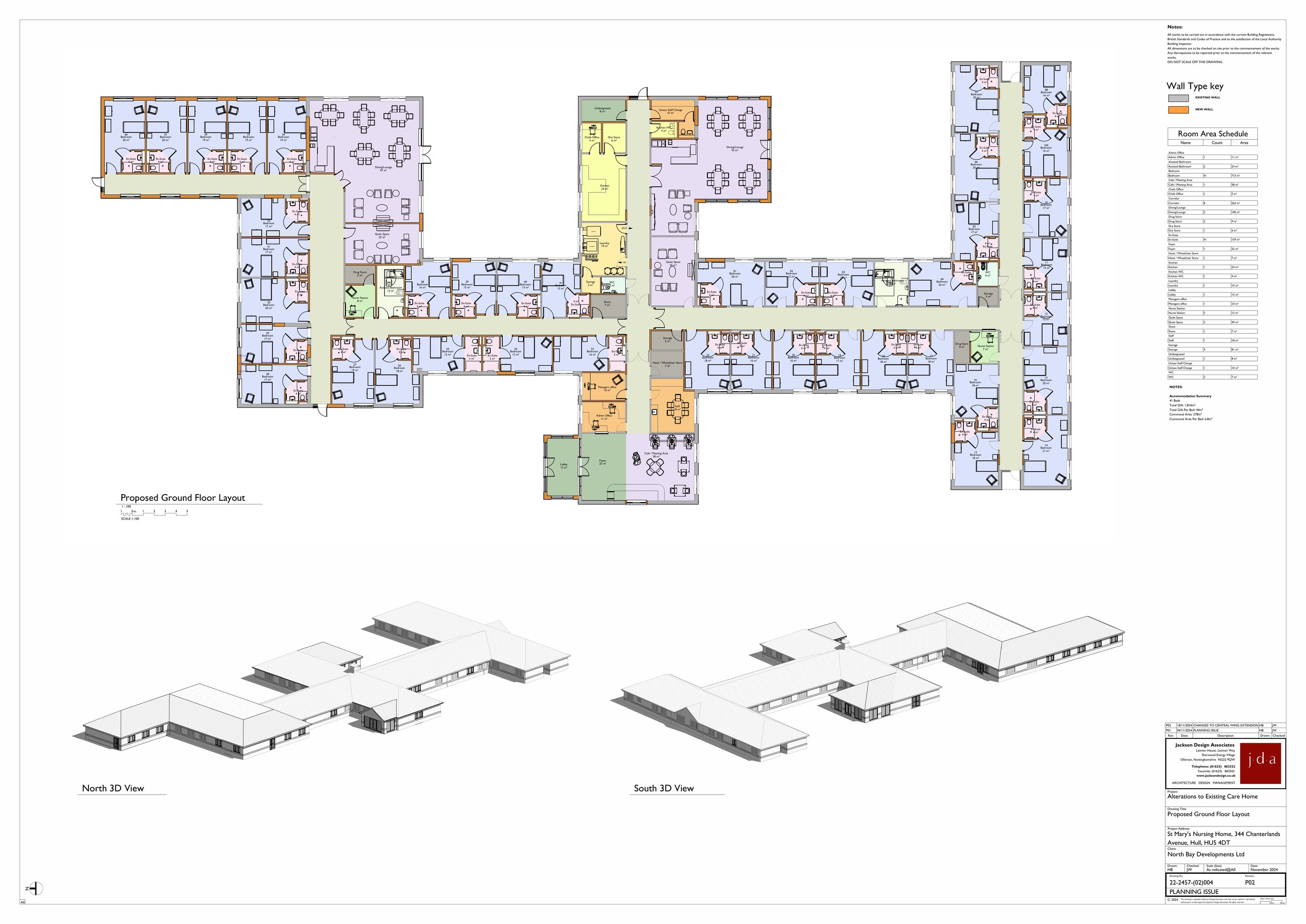
Erection of single storey extensions, refurbishment and internal alterations of existing Care Home, with associated infrastructure and external works.

Documents

Correspondence
Archived · Original link
Correspondence
Archived · Original link
Correspondence
Archived · Original link
Correspondence
Archived · Original link
Officer Notes
Archived · Original link
Other
Archived · Original link
Correspondence
Archived · Original link
Correspondence
Archived · Original link
Correspondence
Archived · Original link
Decision
Archived · Original link
BackGround Papers
Archived · Original link
BackGround Papers
Archived · Original link
BackGround Papers
Archived · Original link
BackGround Papers
Archived · Original link
Decision
Archived · Original link
Report
Archived · Original link
Report
Archived · Original link
Correspondence
Archived · Original link
Correspondence
Archived · Original link
Correspondence
Archived · Original link
Correspondence
Archived · Original link
Correspondence
Archived · Original link
Correspondence
Archived · Original link
Correspondence
Archived · Original link
Correspondence
Archived · Original link
Correspondence
Archived · Original link
Correspondence
Archived · Original link
Correspondence
Archived · Original link
Correspondence
Archived · Original link
Correspondence
Archived · Original link
Correspondence
Archived · Original link
Correspondence
Archived · Original link
Correspondence
Archived · Original link
Correspondence
Archived · Original link
Correspondence
Archived · Original link
Correspondence
Archived · Original link
Correspondence
Archived · Original link
Drawing
Archived · Original link
Drawing
Archived · Original link
Drawing
Archived · Original link
Correspondence
Archived · Original link
Correspondence
Archived · Original link
Correspondence
Archived · Original link
HIGHWAYS COMMENTS
Correspondence
Not yet archived · Original link
HIGHWAYS COMMENTS
Correspondence
Not yet archived · Original link
HIGHWAYS DC COMMENTS
Correspondence
Not yet archived · Original link
Correspondence
Archived · Original link
Drawing
Archived · Original link
OFFICERS DELEGATED REPORT
Report
Not yet archived · Original link
Drawing
Archived · Original link
Drawing
Archived · Original link
Drawing
Archived · Original link
Drawing
Archived · Original link
Drawing
Archived · Original link
Public Comment
Archived · Original link
Correspondence
Archived · Original link
Correspondence
Archived · Original link
OS Extract
Archived · Original link
Report
Archived · Original link
Report
Archived · Original link
UPDATED HIGHWAYS COMMENTS
Correspondence
Not yet archived · Original link
Correspondence
Archived · Original link
Correspondence
Archived · Original link
Correspondence
Archived · Original link
Correspondence
Archived · Original link
Correspondence
Archived · Original link
Correspondence
Archived · Original link

Have your say

Your comment matters. Councils must consider every representation that raises material planning considerations.

Write a comment