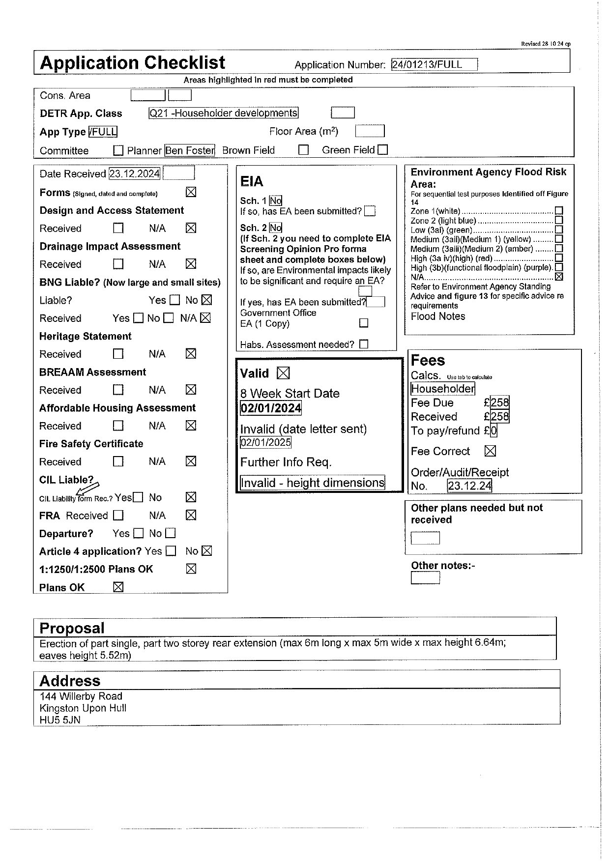
← Hull City Council

Status

Application Permitted House extension
Received
23 Dec 2024
New homes
0

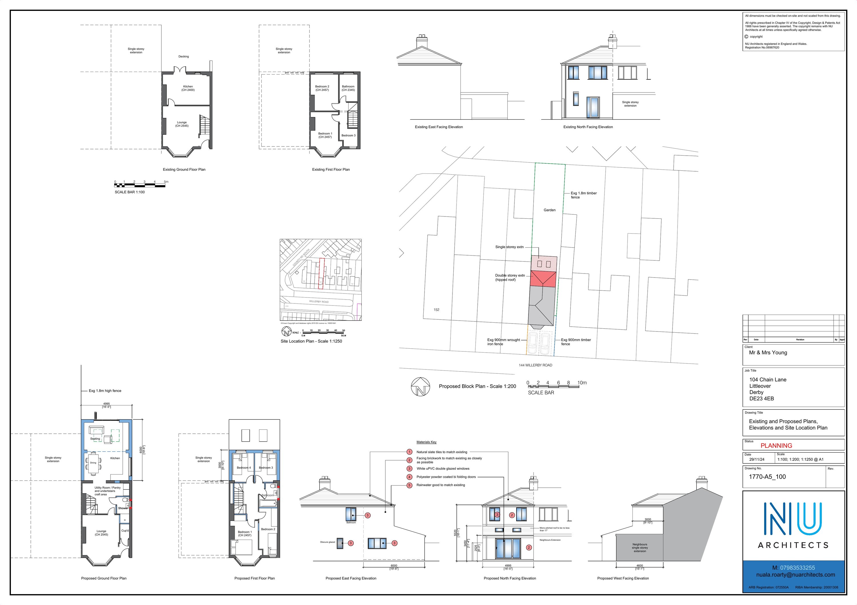
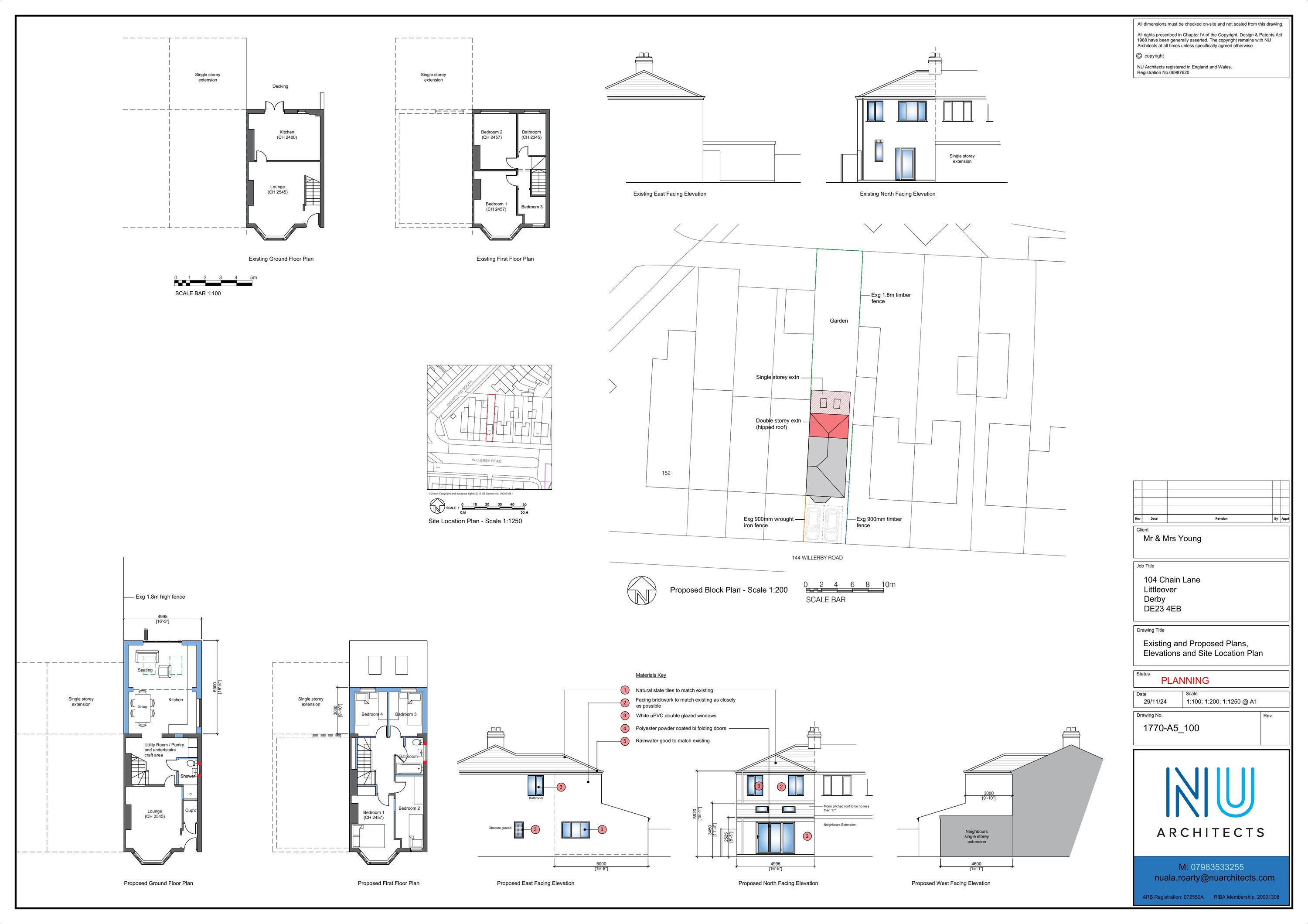
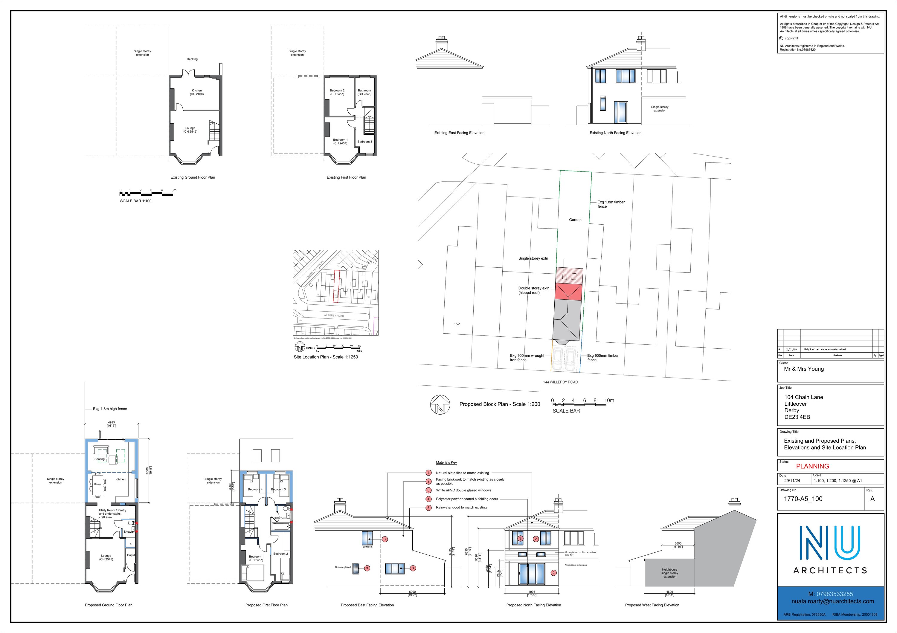
Full proposal

Erection of part single, part two storey rear extension (max 6m long x max 5m wide x max height 6.64m; eaves height 5.52m)

Documents

Application Form
Archived · Original link
Officer Notes
Archived · Original link
Officer Notes
Archived · Original link
DECISION NOTICE
Decision
Not yet archived · Original link
HIGHWAYS COMMENTS
Correspondence
Not yet archived · Original link
OS Extract
Archived · Original link

Have your say

Your comment matters. Councils must consider every representation that raises material planning considerations.

Write a comment