← Hull City Council

Status

Application Permitted House extension
Received
07 Jan 2025
New homes
0

Full proposal

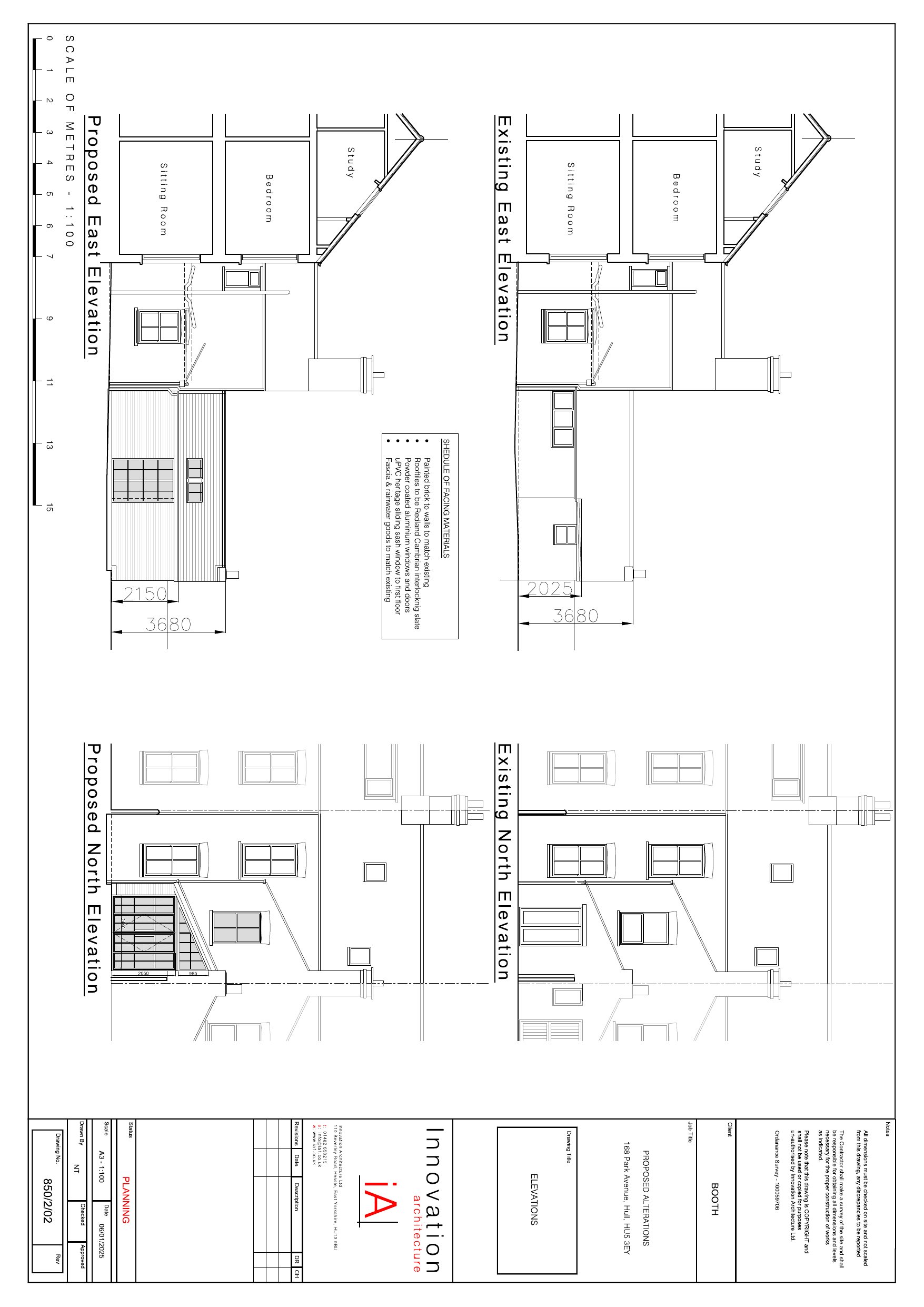
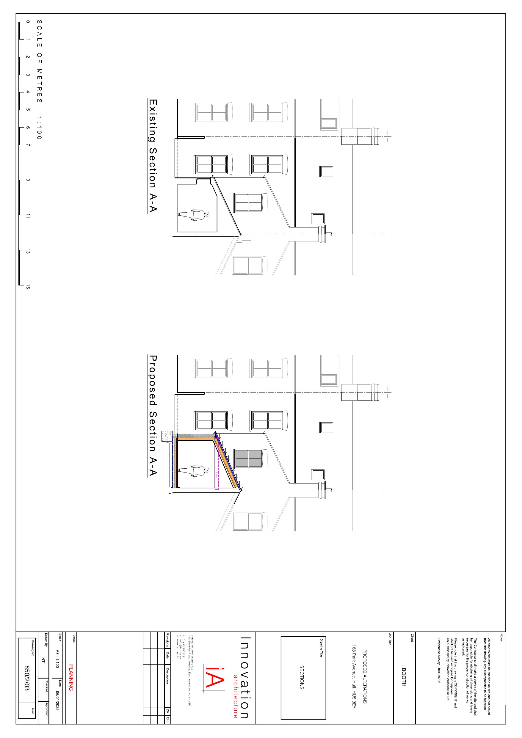
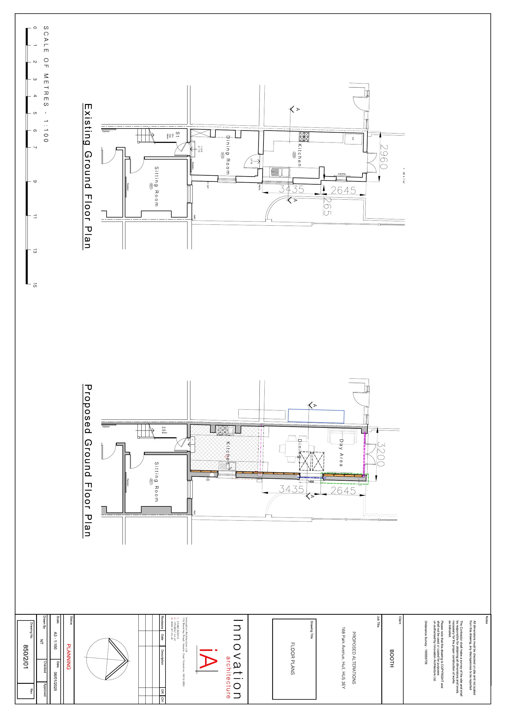
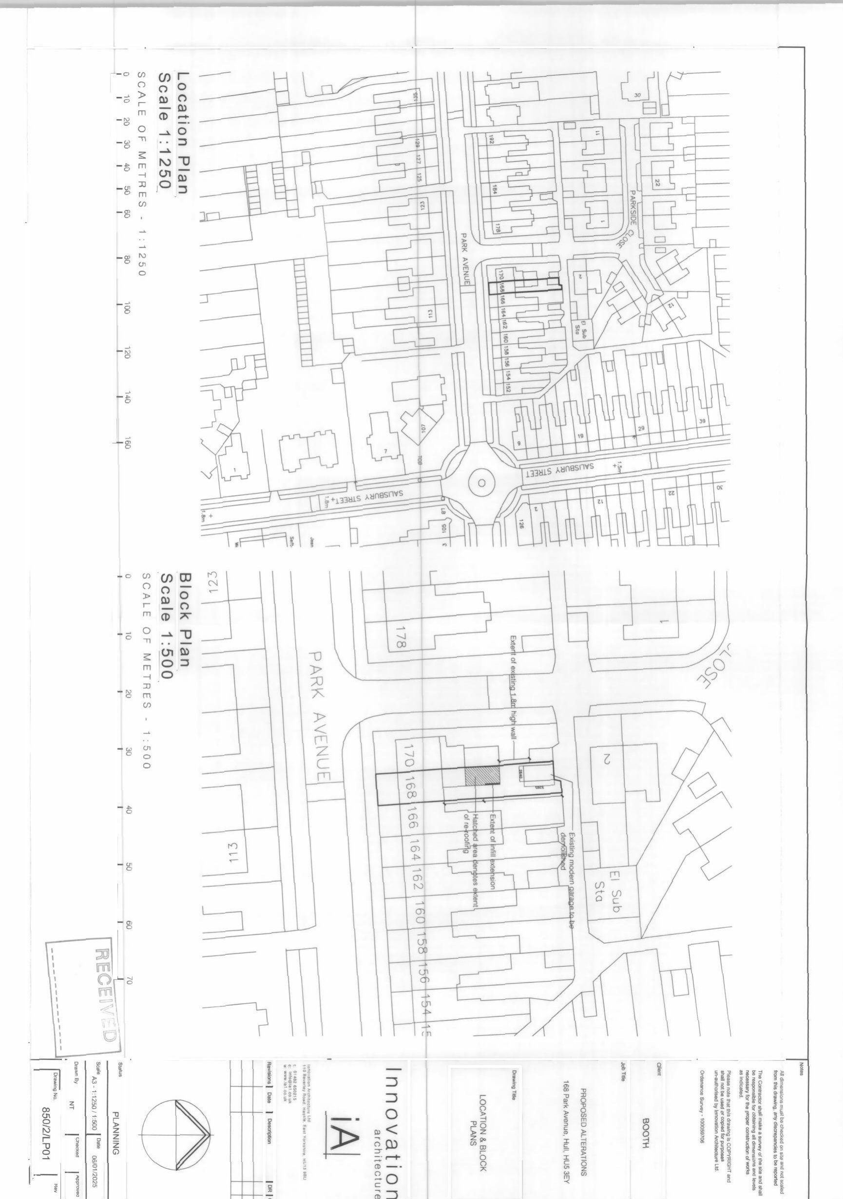
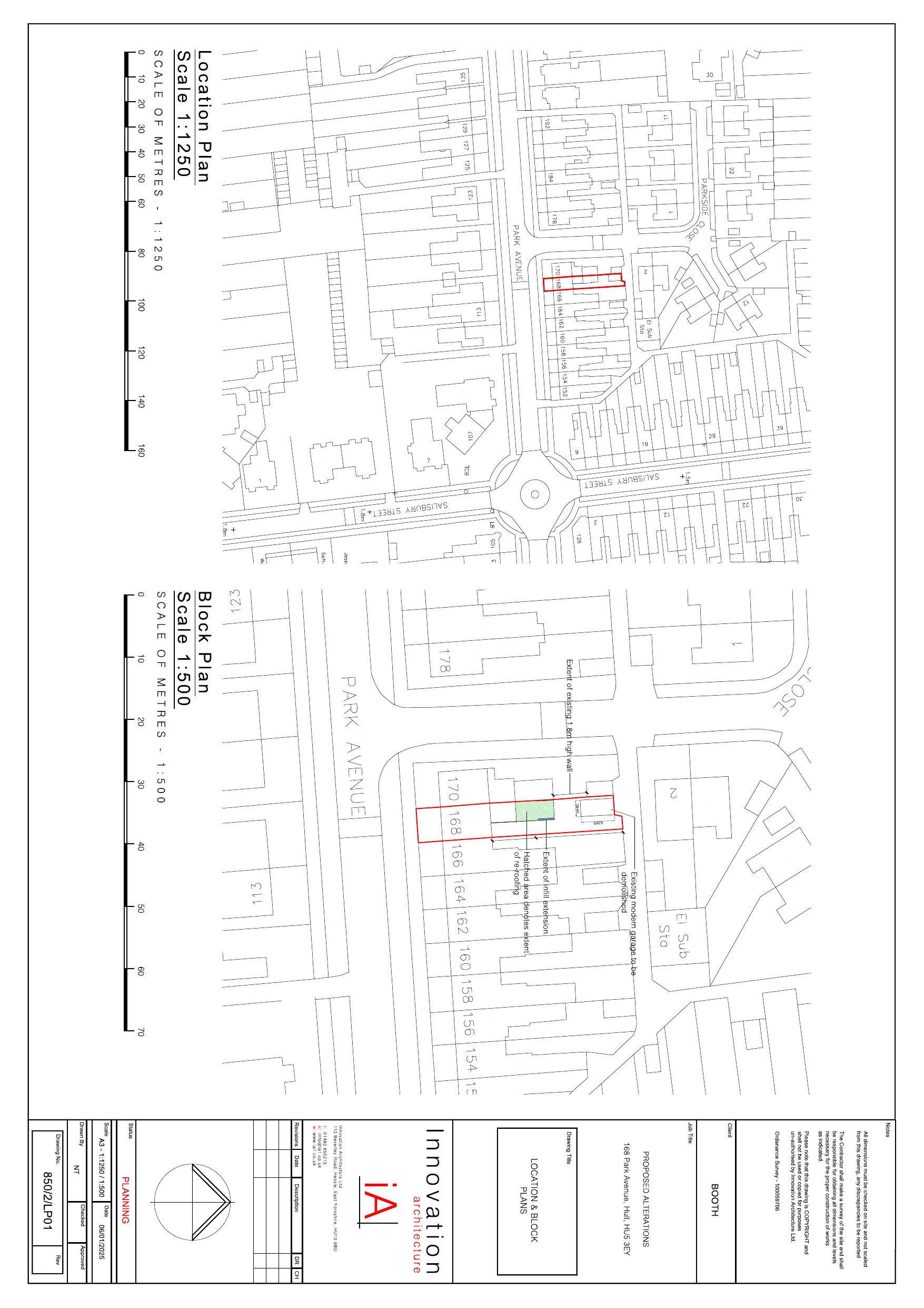
Erection of an infill extension to an existing single storey rear outrigger along with external alterations to include re-roofing, new windows and doors.

Documents

Application Form
Archived · Original link
APPRA COMMENTS
Correspondence
Not yet archived · Original link
BackGround Papers
Archived · Original link
CONSERVATION COMMENTS
Correspondence
Not yet archived · Original link
DECISION NOTICE
Decision
Not yet archived · Original link
BackGround Papers
Archived · Original link
Drawing
Archived · Original link
Other
Archived · Original link
Drawing
Archived · Original link
Drawing
Archived · Original link
Drawing
Archived · Original link

Have your say

Your comment matters. Councils must consider every representation that raises material planning considerations.

Write a comment