← Hull City Council

Status

Application Permitted House extension
Received
30 May 2025
New homes
0

Full proposal

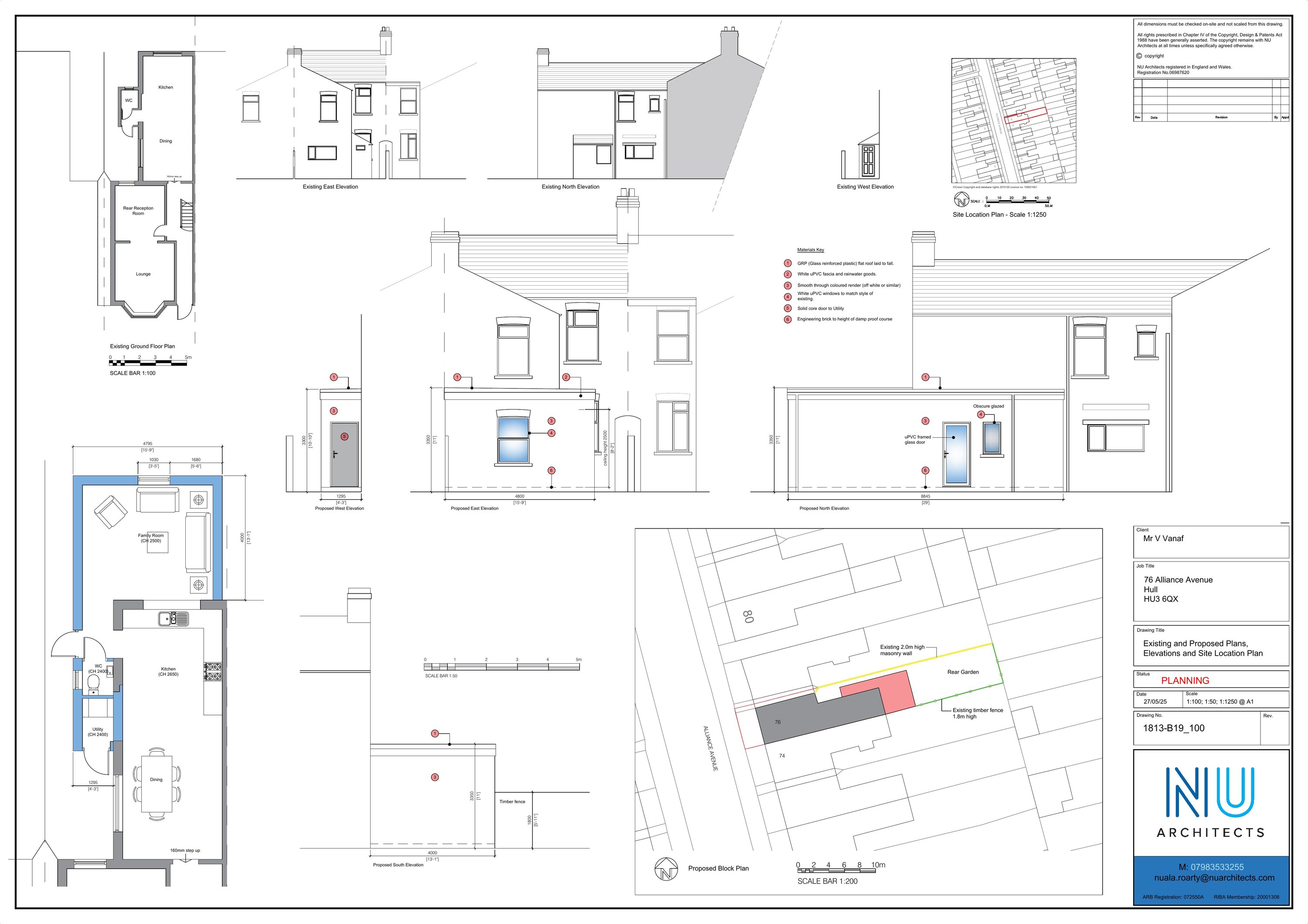
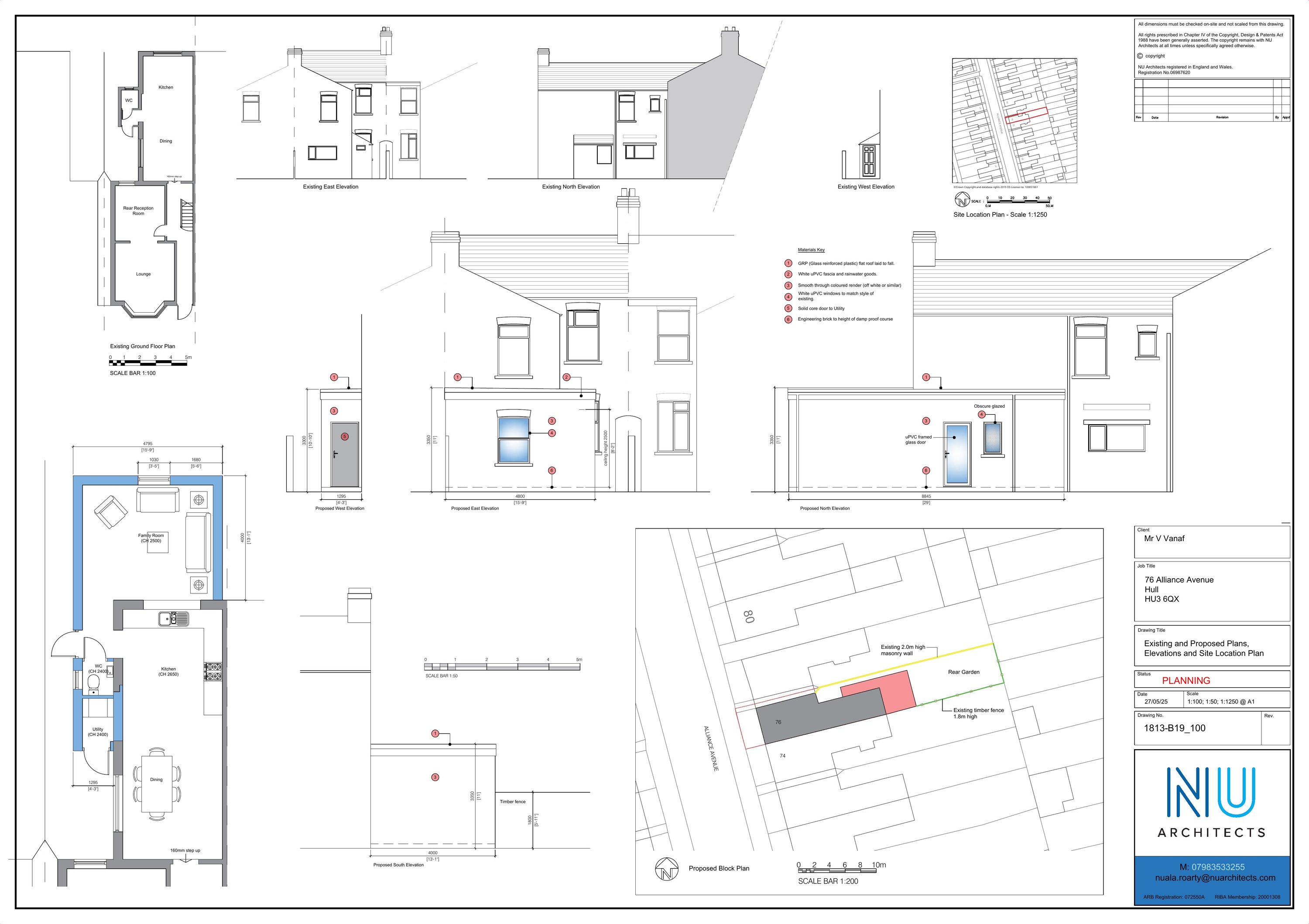
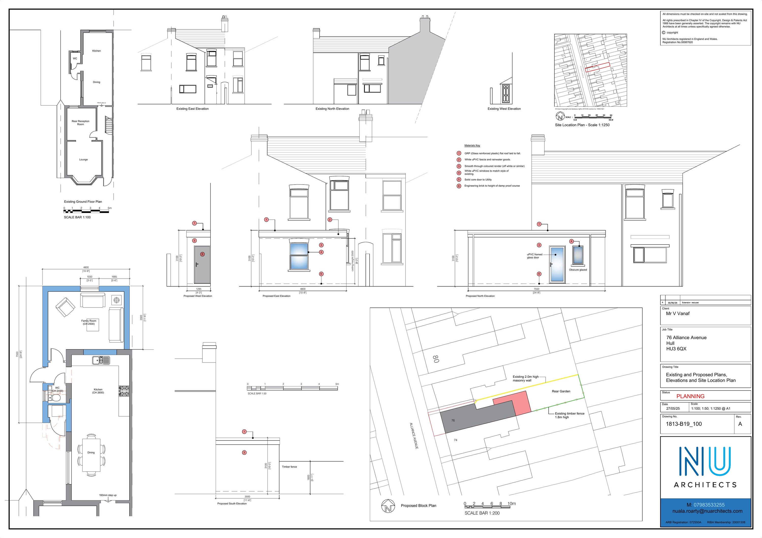
Erection of single storey side and rear extension (max 7.55m long x max 4.8m wide x max 3.1m high) following demolition of existing side extension

Documents

Application Form
Archived · Original link
Officer Notes
Archived · Original link
Drawing
Archived · Original link
DECISION NOTICE
Decision
Not yet archived · Original link
Public Comment
Archived · Original link
Public Comment
Archived · Original link
Public Comment
Archived · Original link
Public Comment
Archived · Original link
Photo
Archived · Original link
Photo
Archived · Original link
Photo
Archived · Original link
Photo
Archived · Original link

Have your say

Your comment matters. Councils must consider every representation that raises material planning considerations.

Write a comment