← Hull City Council

Status

Pending Consideration New housing
Received
24 Jul 2025
New homes
24

Full proposal

Erection of 24 dwellings and associated works and landscaping

Documents

AFFORDABLE HOUSING STATEMENT 1
Other
Not yet archived · Original link
APPLICATION FORM
Application Form
Not yet archived · Original link
ARBORICULTURAL IMPACT ASSESSMENT
Other
Not yet archived · Original link
BACKGROUND PAPERS
BackGround Papers
Not yet archived · Original link
BIKES AND BIN STORAGE
Drawing
Not yet archived · Original link
BIODIVERSITY METRIC CALCULATION
BackGround Papers
Not yet archived · Original link
BIODIVERSITY NET GAIN SUPPLEMENTARY
BackGround Papers
Not yet archived · Original link
BIODIVERSITY OFFICER COMMENTS
Correspondence
Not yet archived · Original link
BLOCK 01 - PROPOSED FRONT ELEVATION
Drawing
Not yet archived · Original link
BLOCK 01 - PROPOSED SIDE ELEVATION
Drawing
Not yet archived · Original link
BLOCK 01 - PROPOSED SIDE ELEVATION
Drawing
Not yet archived · Original link
BLOCK 01 PROPOSED FRONT ELEVATIONS
Drawing
Not yet archived · Original link
BLOCK 01 PROPOSED REAR ELEVATIONS
Drawing
Not yet archived · Original link
BLOCK 01 PROPOSED SIDE ELEVATIONS
Drawing
Not yet archived · Original link
BLOCK 02 - PROPOSED FRONT ELEVATION
Drawing
Not yet archived · Original link
BLOCK 02 - PROPOSED REAR ELEVATION
Drawing
Not yet archived · Original link
BLOCK 02 - PROPOSED SIDE ELEVATION
Drawing
Not yet archived · Original link
BLOCK 02 PROPOSED FRONT ELEVATIONS
Drawing
Not yet archived · Original link
BLOCK 02 PROPOSED REAR ELEVATIONS
Drawing
Not yet archived · Original link
BLOCK 02 PROPOSED SIDE ELEVATIONS
Drawing
Not yet archived · Original link
BLOCK 03 - PROPOSED FRONT ELEVATION
Drawing
Not yet archived · Original link
BLOCK 03 - PROPOSED REAR ELEVATION
Drawing
Not yet archived · Original link
BLOCK 03 - PROPOSED SIDE ELEVATION
Drawing
Not yet archived · Original link
BLOCK 03 PROPOSED FRONT ELEVATIONS
Drawing
Not yet archived · Original link
BLOCK 03 PROPOSED REAR ELEVATIONS
Drawing
Not yet archived · Original link
BLOCK 03 PROPOSED SIDE ELEVATIONS
Drawing
Not yet archived · Original link
BNG METRIC CALCULATION
BackGround Papers
Not yet archived · Original link
BNG SUPPLEMENTARY 1
Other
Not yet archived · Original link
BUILDING FOR HEALTHY LIFE
BackGround Papers
Not yet archived · Original link
BUILDING FOR HEALTHY LIFE
Other
Not yet archived · Original link
CHECKSHEET
BackGround Papers
Not yet archived · Original link
COMMENTS FROM THE FLOOD TEAM
Correspondence
Not yet archived · Original link
DESIGN AND ACCESS STATEMENT
BackGround Papers
Not yet archived · Original link
DRAINAGE STRATEGY
BackGround Papers
Not yet archived · Original link
DRAINAGE STRATEGY REPORT
Report
Not yet archived · Original link
E-MAIL FROM AGENT
Correspondence
Not yet archived · Original link
E-MAIL FROM AGENT
Correspondence
Not yet archived · Original link
E-MAIL FROM AGENT
Correspondence
Not yet archived · Original link
E-MAIL FROM ENVIRONMENT AGENCY
Correspondence
Not yet archived · Original link
EMAIL
Correspondence
Not yet archived · Original link
EMAIL 06 10 2025 10.22
Correspondence
Not yet archived · Original link
EMAIL FROM AGENT 27.10.25
Correspondence
Not yet archived · Original link
ENVIRONMENT AGENCY COMMENTS
Correspondence
Not yet archived · Original link
ENVIRONMENTAL HEALTH COMMENTS
Correspondence
Not yet archived · Original link
FLOOD RISK ASSESSMENT
BackGround Papers
Not yet archived · Original link
HIGHWAYS COMMENTS
Correspondence
Not yet archived · Original link
HIGHWAYS COMMENTS
Correspondence
Not yet archived · Original link
HT A PROPOSED GENERAL ARRANGEMENT PLAN
Application Form
Not yet archived · Original link
HT A1 PROPOSED GENERAL ARRANGEMENT PLAN
Application Form
Not yet archived · Original link
HT A2 PROPOSED GENERAL ARRANGEMENT PLAN
Application Form
Not yet archived · Original link
HT B PROPOSED GENERAL ARRANGEMENT PLAN
Application Form
Not yet archived · Original link
HT B1 PROPOSED GENERAL ARRANGEMENT PLAN
Application Form
Not yet archived · Original link
HT B2 PROPOSED GENERAL ARRANGEMENT PLAN
Application Form
Not yet archived · Original link
HT B3 PROPOSED GENERAL ARRANGEMENT PLAN
Application Form
Not yet archived · Original link
HT B4 PROPOSED GENERAL ARRANGEMENT PLAN
Application Form
Not yet archived · Original link
HT B5 PROPOSED GENERAL ARRANGEMENT PLAN
Drawing
Not yet archived · Original link
HTC PROPOSED GENERAL ARRANGEMENT PLAN
Application Form
Not yet archived · Original link
HTC1 PROPOED GENERAL ARRANGEMENT PLAN
Application Form
Not yet archived · Original link
HTC2 PROPOED GENERAL ARRANGEMENT PLAN
Drawing
Not yet archived · Original link
HTC3 PROPOED GENERAL ARRANGEMENT PLAN
Drawing
Not yet archived · Original link
HTC4 PROPOED GENERAL ARRANGEMENT PLAN
Application Form
Not yet archived · Original link
HTC5 PROPOED GENERAL ARRANGEMENT PLAN
Drawing
Not yet archived · Original link
HUMBER ARCHAEOLOGY COMMENTS
Correspondence
Not yet archived · Original link
OFFICER EMAIL 10 OCT
Correspondence
Not yet archived · Original link
OPEN SPACE REQUIREMENTS
Correspondence
Not yet archived · Original link
PEA
Report
Not yet archived · Original link
PRESS NOTICE
Other
Not yet archived · Original link
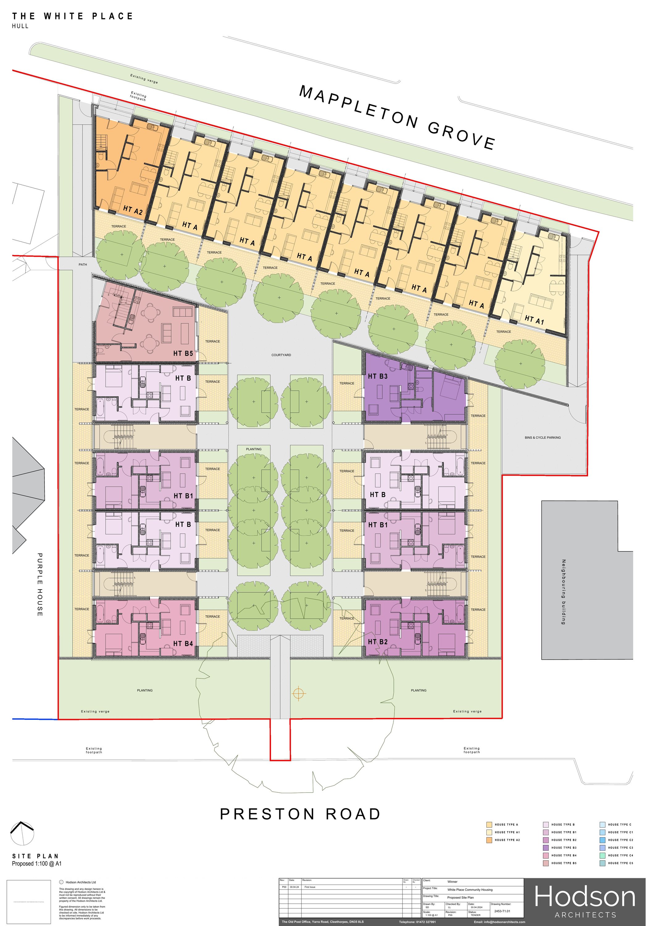
PROPOSED BLOCK PLAN
Drawing
Not yet archived · Original link
PROPOSED BLOCK PLAN
Application Form
Not yet archived · Original link
PROPOSED BLOCK PLAN
Drawing
Not yet archived · Original link
PROPOSED FIRST FLOOR GENERAL ARRANGEMENT
Application Form
Not yet archived · Original link
PROPOSED FIRST FLOOR GENERAL ARRANGEMENT PLAN
Drawing
Not yet archived · Original link
PROPOSED FIRST FLOOR GENERAL ARRANGEMENT PLAN
Application Form
Not yet archived · Original link
PROPOSED FRONT ELEVATION 1
Drawing
Not yet archived · Original link
PROPOSED FRONT ELEVATION 1
Drawing
Not yet archived · Original link
PROPOSED FRONT ELEVATION 1
Drawing
Not yet archived · Original link
PROPOSED GENERAL ARRANGEMENT PLAN
Drawing
Not yet archived · Original link
PROPOSED GENERAL ARRANGEMENT PLAN
Drawing
Not yet archived · Original link
PROPOSED GENERAL ARRANGEMENT PLAN
Drawing
Not yet archived · Original link
PROPOSED GENERAL ARRANGEMENT PLAN
Drawing
Not yet archived · Original link
PROPOSED GENERAL ARRANGEMENT PLAN
Drawing
Not yet archived · Original link
PROPOSED GENERAL ARRANGEMENT PLAN
Drawing
Not yet archived · Original link
PROPOSED GENERAL ARRANGEMENT PLAN
Drawing
Not yet archived · Original link
PROPOSED GENERAL ARRANGEMENT PLAN
Drawing
Not yet archived · Original link
PROPOSED GENERAL ARRANGEMENT PLAN
Drawing
Not yet archived · Original link
PROPOSED GENERAL ARRANGEMENT PLAN
Application Form
Not yet archived · Original link
PROPOSED GENERAL ARRANGEMENT PLAN
Drawing
Not yet archived · Original link
PROPOSED GENERAL ARRANGEMENT PLAN
Drawing
Not yet archived · Original link
PROPOSED GENERAL ARRANGEMENT PLAN
Drawing
Not yet archived · Original link
PROPOSED GENERAL ARRANGEMENT PLAN
Application Form
Not yet archived · Original link
PROPOSED GENERAL ARRANGEMENT PLAN
Drawing
Not yet archived · Original link
PROPOSED GENERAL ARRANGEMENT PLAN 1
Drawing
Not yet archived · Original link
PROPOSED GENERAL ARRANGEMENT PLAN 1
Drawing
Not yet archived · Original link
PROPOSED GENERAL ARRANGEMENT PLAN 1
Drawing
Not yet archived · Original link
PROPOSED GENERAL ARRANGEMENT PLAN 1
Drawing
Not yet archived · Original link
PROPOSED GENERAL ARRANGEMENT PLAN 1
Drawing
Not yet archived · Original link
PROPOSED GENERAL ARRANGEMENT PLAN 1
Drawing
Not yet archived · Original link
PROPOSED GENERAL ARRANGEMENT PLAN 1
Drawing
Not yet archived · Original link
PROPOSED GENERAL ARRANGEMENT PLAN 1
Drawing
Not yet archived · Original link
PROPOSED GENERAL ARRANGEMENT PLAN 1
Drawing
Not yet archived · Original link
PROPOSED GENERAL ARRANGEMENT PLAN 1
Drawing
Not yet archived · Original link
PROPOSED GENERAL ARRANGEMENT PLAN 1
Drawing
Not yet archived · Original link
PROPOSED GENERAL ARRANGEMENT PLAN 1
Drawing
Not yet archived · Original link
PROPOSED GENERAL ARRANGEMENT PLAN 1
Drawing
Not yet archived · Original link
PROPOSED GENERAL ARRANGEMENT PLAN 1
Drawing
Not yet archived · Original link
PROPOSED GENERAL ARRANGEMENT PLAN 1
Drawing
Not yet archived · Original link
PROPOSED GROUND FLOOR GENERAL ARRANGEMENT
Application Form
Not yet archived · Original link
PROPOSED GROUND FLOOR GENERAL ARRANGEMENT PLAN
Application Form
Not yet archived · Original link
PROPOSED GROUND FLOOR GENERAL ARRANGEMENT PLAN
Drawing
Not yet archived · Original link
PROPOSED GROUND FLOOR GENERAL ARRANGEMENT PLAN
Application Form
Not yet archived · Original link
PROPOSED REAR ELEVATION 1
Drawing
Not yet archived · Original link
PROPOSED REAR ELEVATION 1
Drawing
Not yet archived · Original link
PROPOSED REAR ELEVATION 1
Drawing
Not yet archived · Original link
PROPOSED ROOD GENERAL ARRANGEMENT
Drawing
Not yet archived · Original link
PROPOSED ROOF GENERAL ARRANGEMENT PLAN
Drawing
Not yet archived · Original link
PROPOSED ROOF GENERAL ARRANGEMENT PLAN
Application Form
Not yet archived · Original link
PROPOSED SIDE ELEVATION 1
Drawing
Not yet archived · Original link
PROPOSED SIDE ELEVATION 1
Drawing
Not yet archived · Original link
PROPOSED SIDE ELEVATION 1
Drawing
Not yet archived · Original link
Application Form
Archived · Original link
Drawing
Archived · Original link
Application Form
Archived · Original link
PUBLIC COMMENT (PA)
Public Comment
Not yet archived · Original link
Drawing
Archived · Original link
Drawing
Archived · Original link
Drawing
Archived · Original link
Drawing
Archived · Original link
Application Form
Archived · Original link
Application Form
Archived · Original link
TREE CONSTRAINTS
BackGround Papers
Not yet archived · Original link
TREE SURVEY
BackGround Papers
Not yet archived · Original link
URBAN DESIGN COMMENTS
Correspondence
Not yet archived · Original link
YORKSHIRE WATER COMMENTS
Correspondence
Not yet archived · Original link

Have your say

Your comment matters. Councils must consider every representation that raises material planning considerations.

Write a comment