← Hull City Council

Status

Pending Consideration Change of use
Received
08 Aug 2025
New homes
3

Full proposal

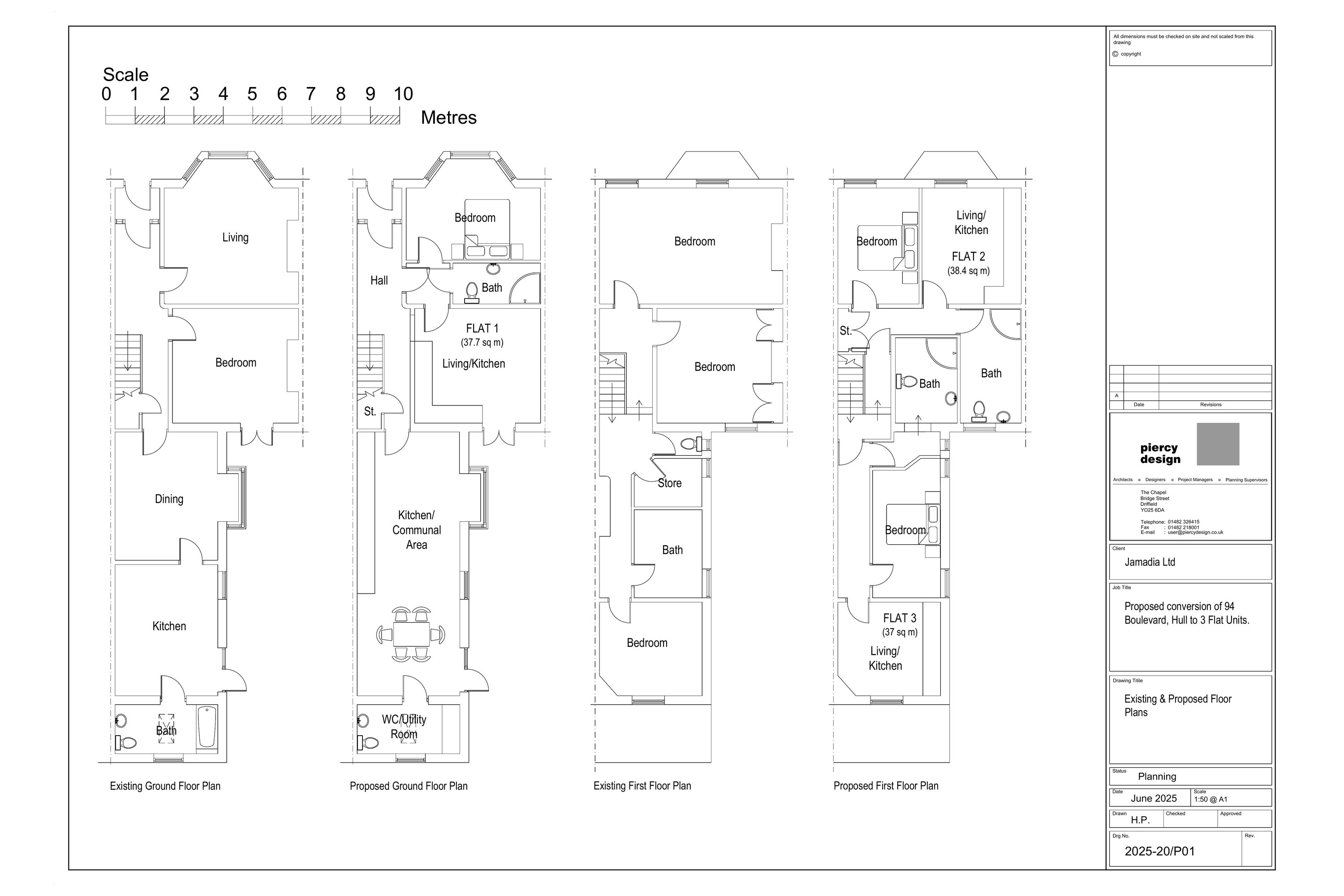
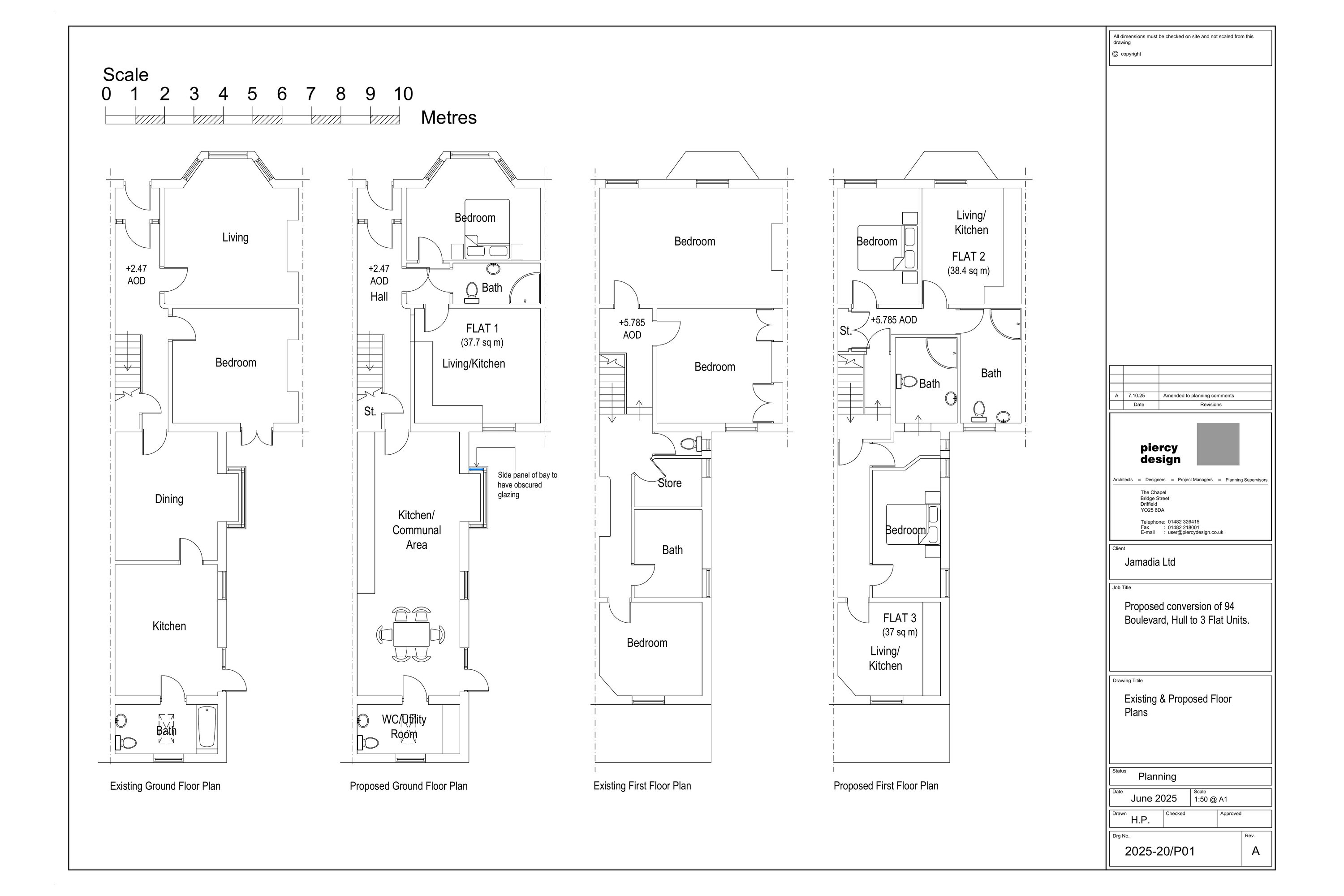
Change of use of dwelling to 3 supported living apartments with communal / staff space on ground floor

Documents

94 BOULEVARD
Application Form
Not yet archived · Original link
A SUMMARY OF THE ATTACHMENTS IN THE PROPOSAL
BackGround Papers
Not yet archived · Original link
CHECKSHEET
BackGround Papers
Not yet archived · Original link
COMPLETED S106 AGREEMENT
Other
Not yet archived · Original link
CONSERVATION COMMENTS
Correspondence
Not yet archived · Original link
DESIGN AND ACCESS STATEMENT
Report
Not yet archived · Original link
ENVIRONMENT AGENCY COMMENTS
Correspondence
Not yet archived · Original link
ENVIRONMENTAL HEALTH COMMENTS
Correspondence
Not yet archived · Original link
EOT AGREED UNTIL 07 11 2025
Correspondence
Not yet archived · Original link
FLOOD RISK ASSESSMENT
Report
Not yet archived · Original link
HIGHWAYS COMMENTS
Correspondence
Not yet archived · Original link
OPEN SPACE REQUIREMENTS
Correspondence
Not yet archived · Original link
REVISED FLOOD RISK ASSESSMENT
BackGround Papers
Not yet archived · Original link
THE LOCATION PLAN
OS Extract
Not yet archived · Original link
UNILATERAL AGREEMENT
Correspondence
Not yet archived · Original link

Have your say

Your comment matters. Councils must consider every representation that raises material planning considerations.

Write a comment