← Hull City Council

Status

Pending Consideration Renewable energy
Received
13 Jan 2026
New homes
0

Full proposal

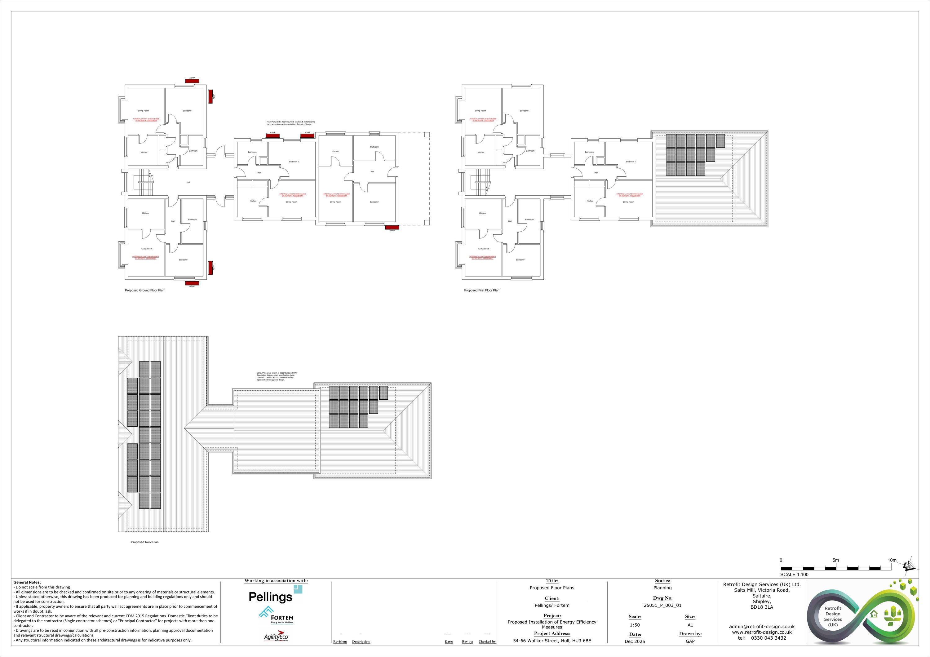
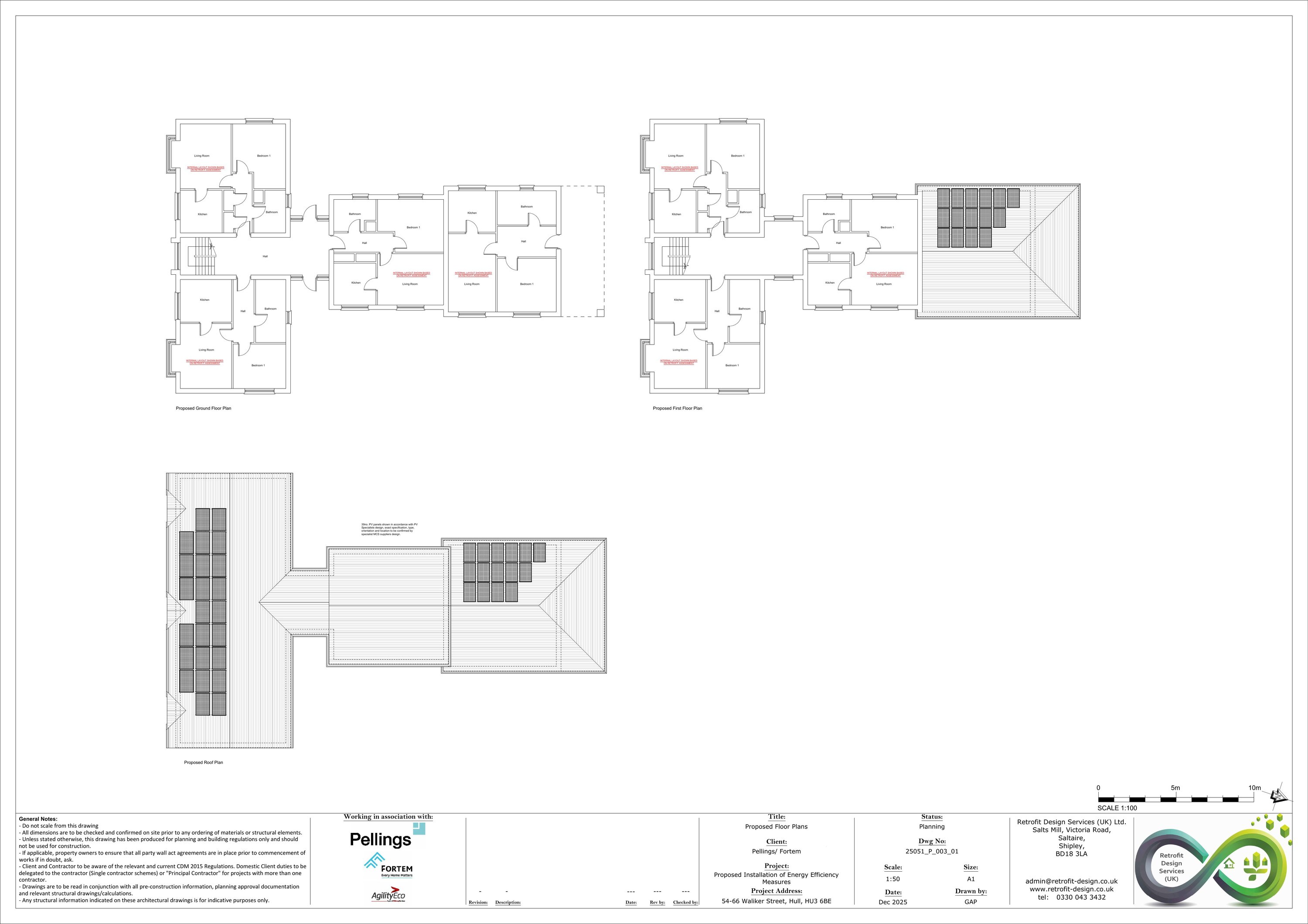
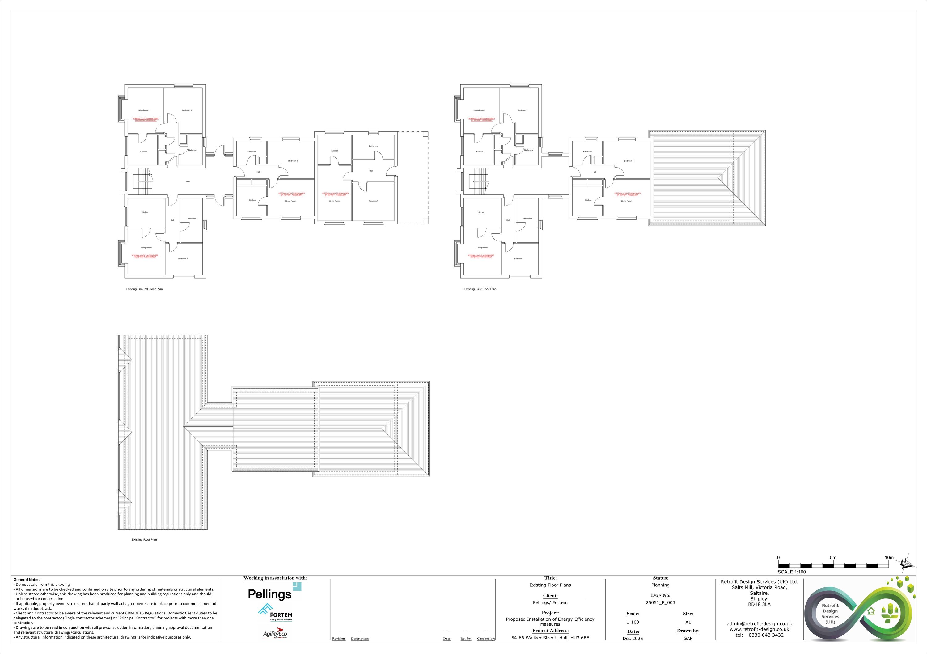
Installation of photovoltaic (PV) panels to roof and 7 x floor-mounted air source heat pumps (ASHP) to front and rear of block of flats.

Documents

Other
Archived · Original link
Other
Archived · Original link
Other
Archived · Original link
Drawing
Archived · Original link
Drawing
Archived · Original link
Drawing
Archived · Original link
Drawing
Archived · Original link
OS Extract
Archived · Original link

Have your say

Your comment matters. Councils must consider every representation that raises material planning considerations.

Write a comment