← Hull City Council

Status

Pending Consideration Renewable energy
Received
13 Jan 2026
New homes
0

Full proposal

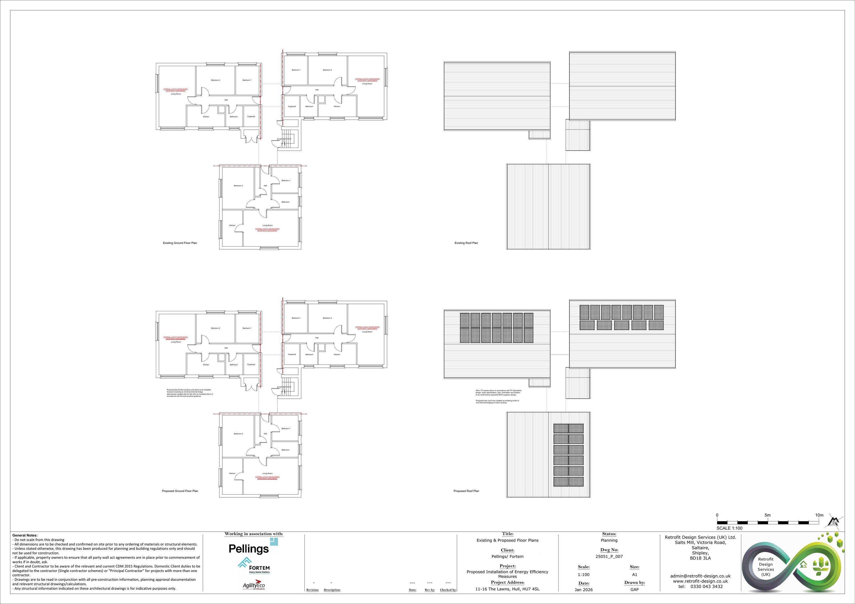
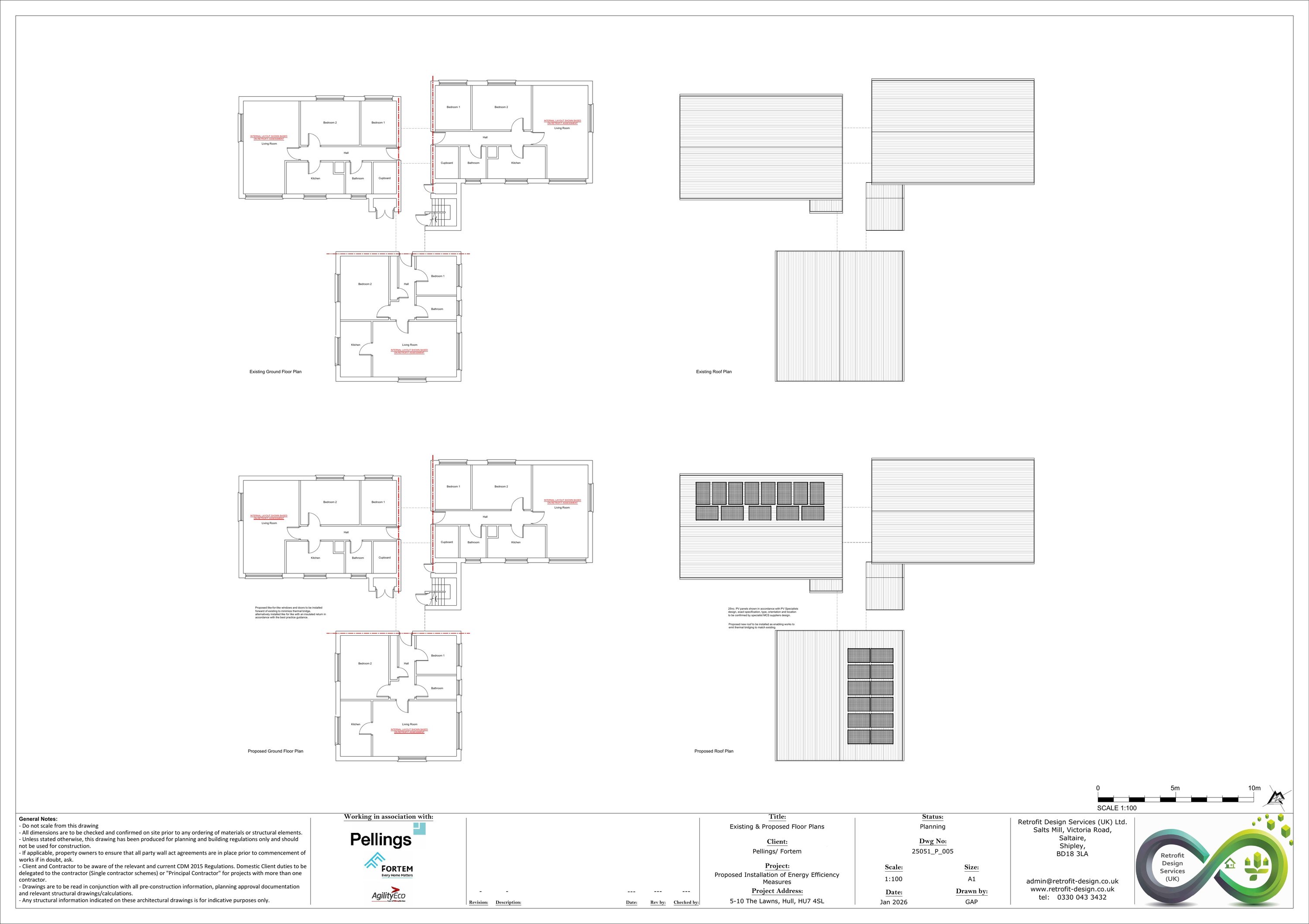
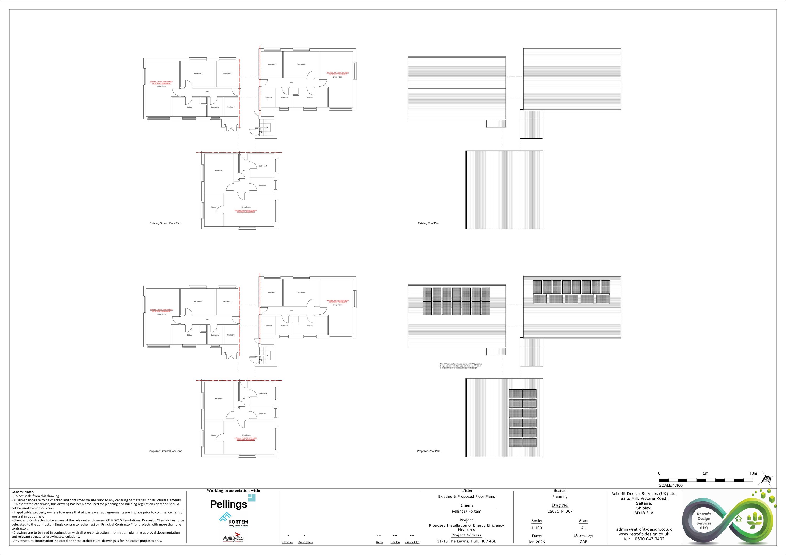
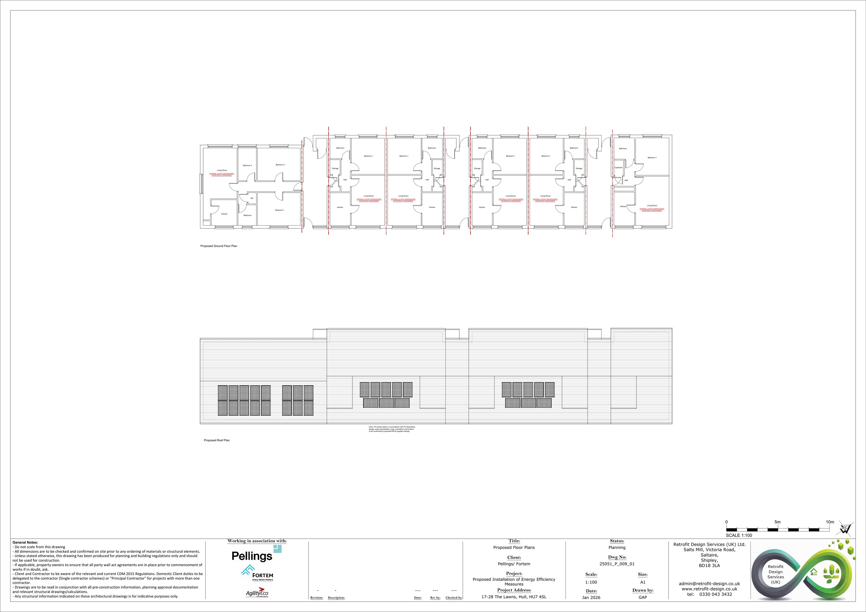
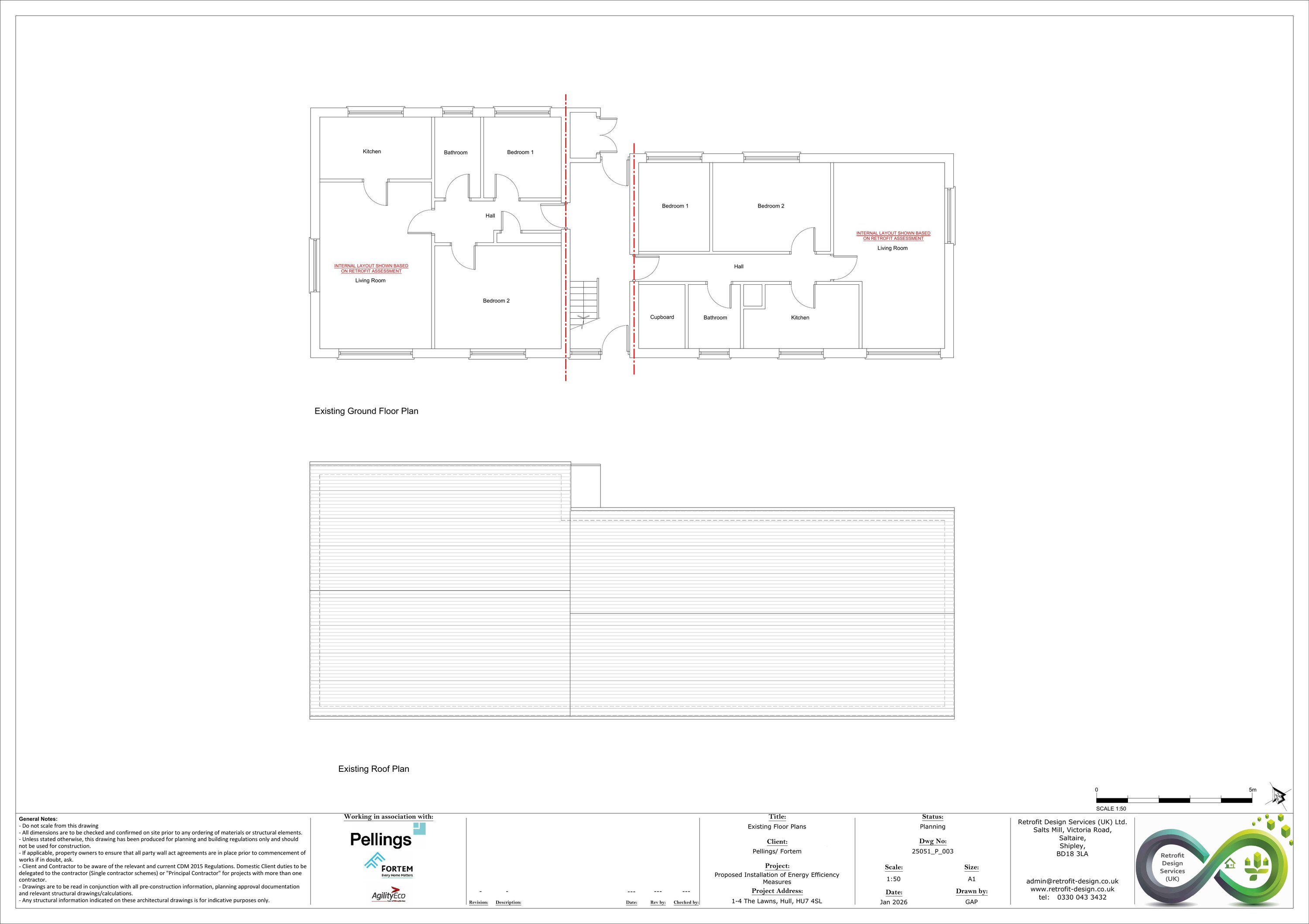
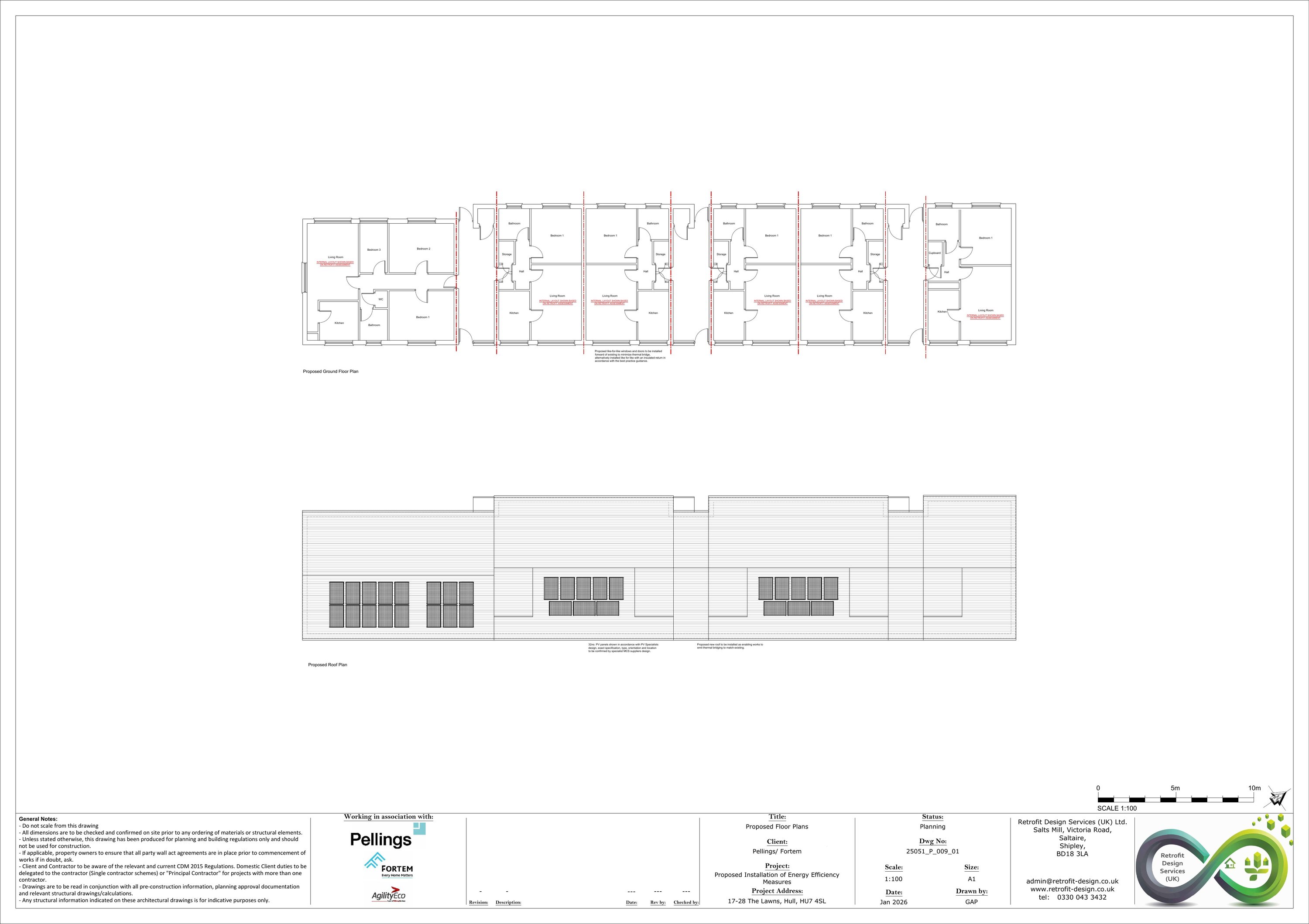
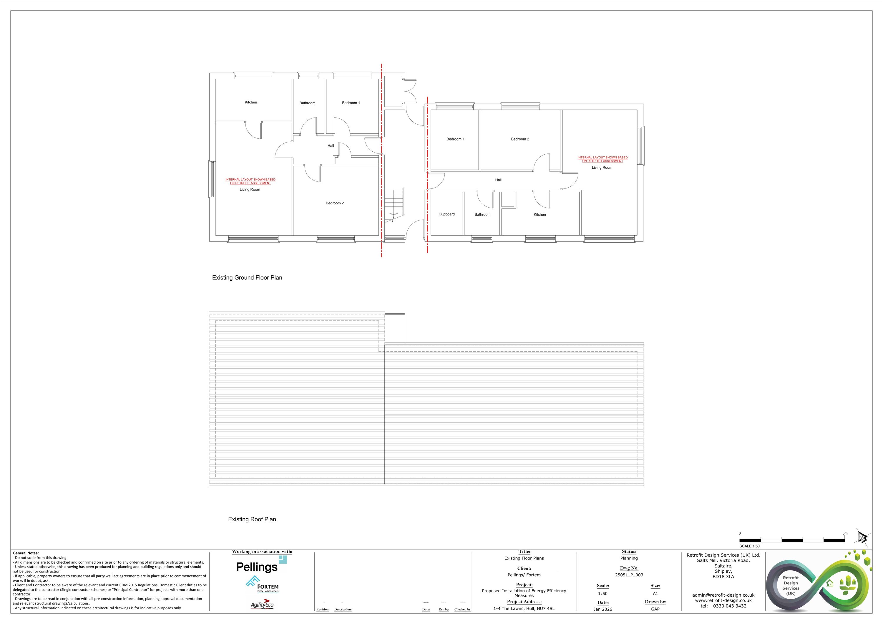
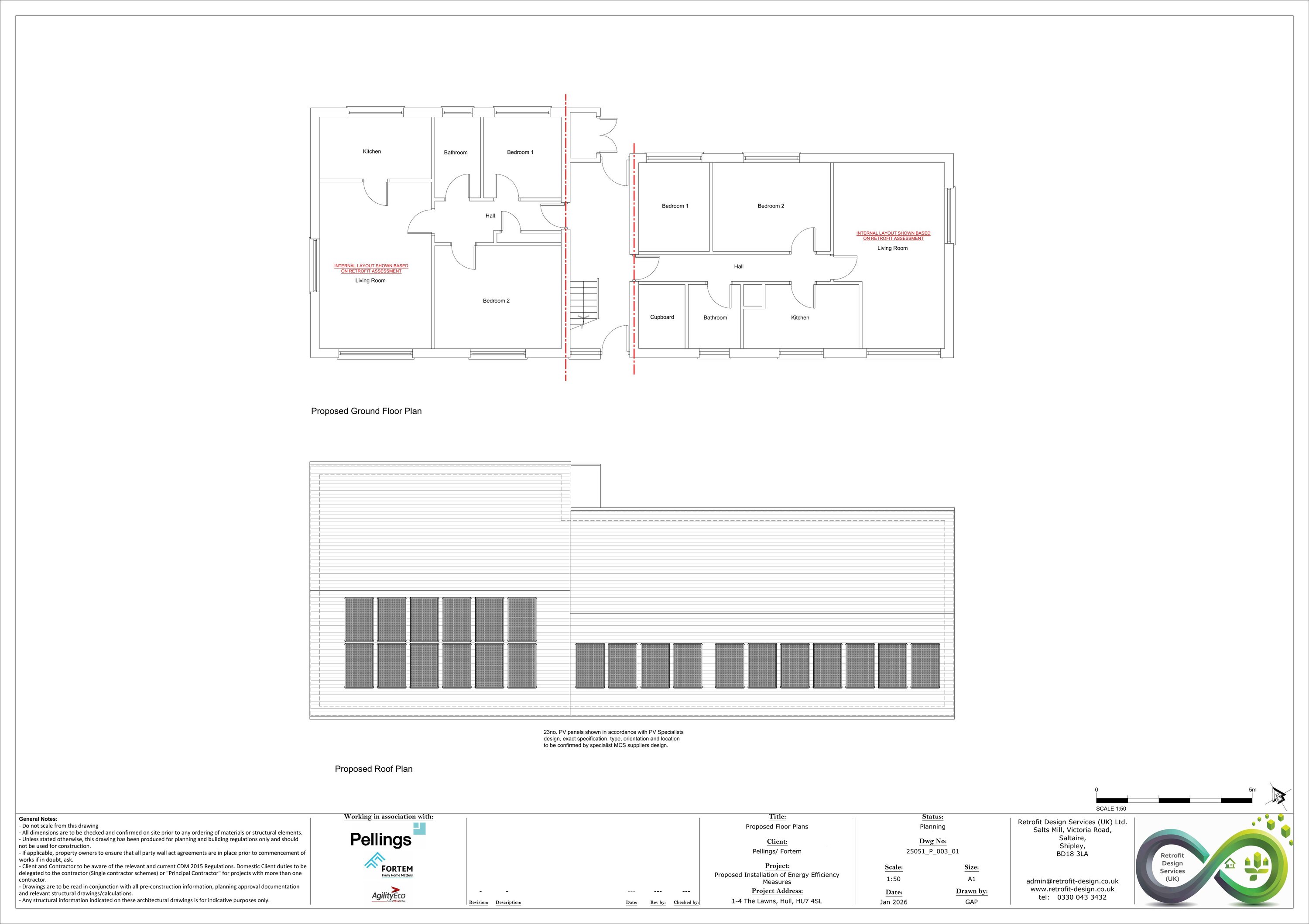
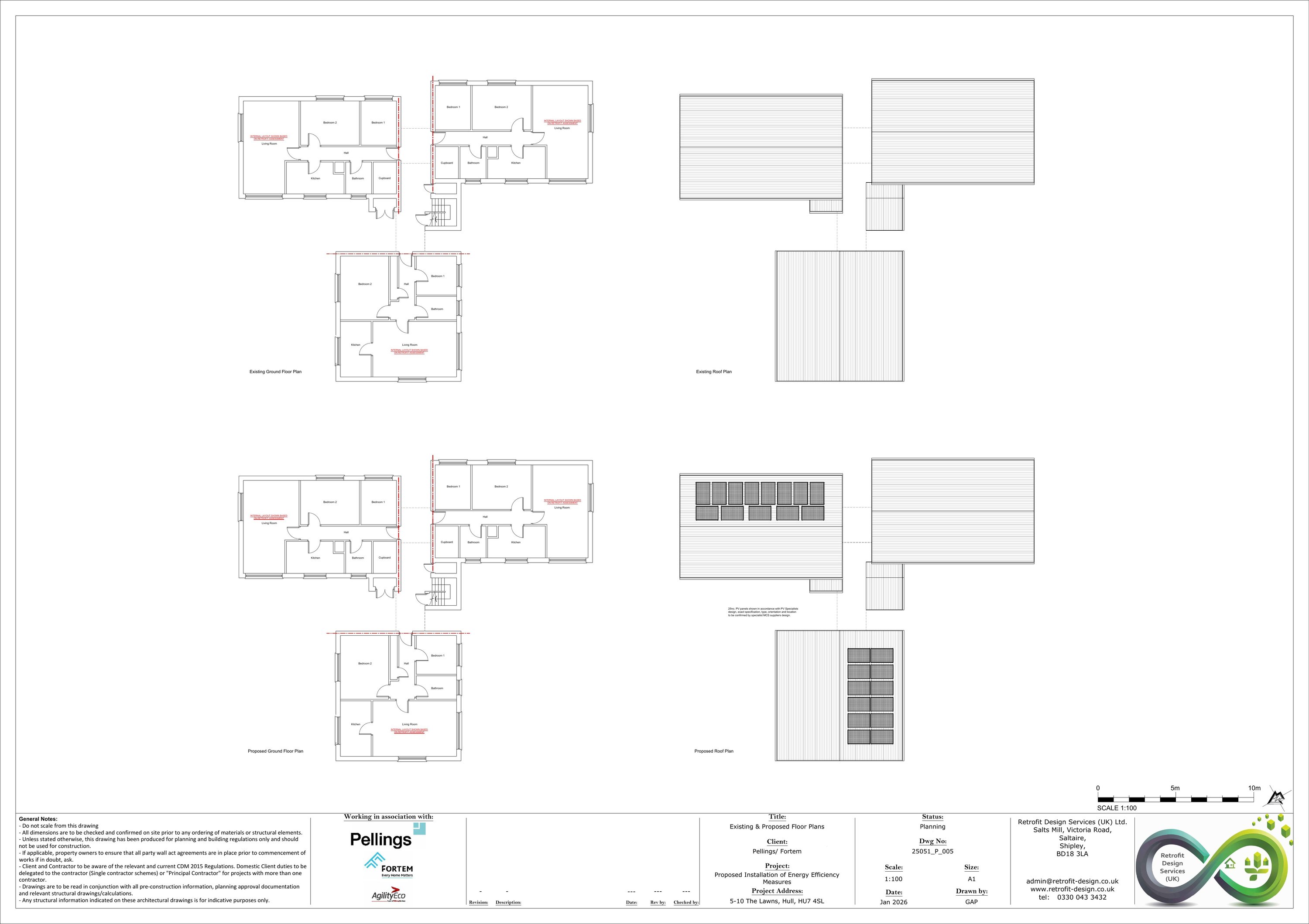
Installation of photovoltaic (PV) panels to block of flats Like-for-like replacement of the roofs, windows, and doors to a block of flats

Documents

Application Form
Archived · Original link
Officer Notes
Archived · Original link
Drawing
Archived · Original link
Drawing
Archived · Original link
Drawing
Archived · Original link
Drawing
Archived · Original link
Drawing
Archived · Original link
Drawing
Archived · Original link
Drawing
Archived · Original link
Drawing
Archived · Original link
OS Extract
Archived · Original link

Have your say

Your comment matters. Councils must consider every representation that raises material planning considerations.

Write a comment