← Hull City Council

Status

Pending Consideration New housing
Received
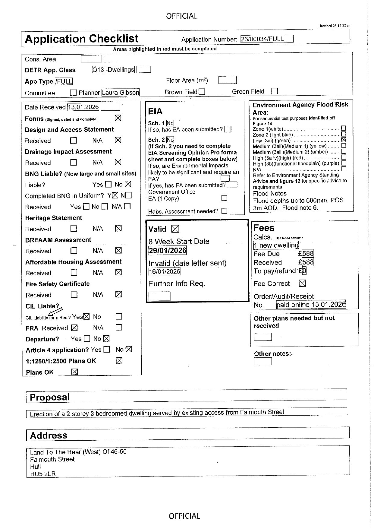
13 Jan 2026
New homes
1

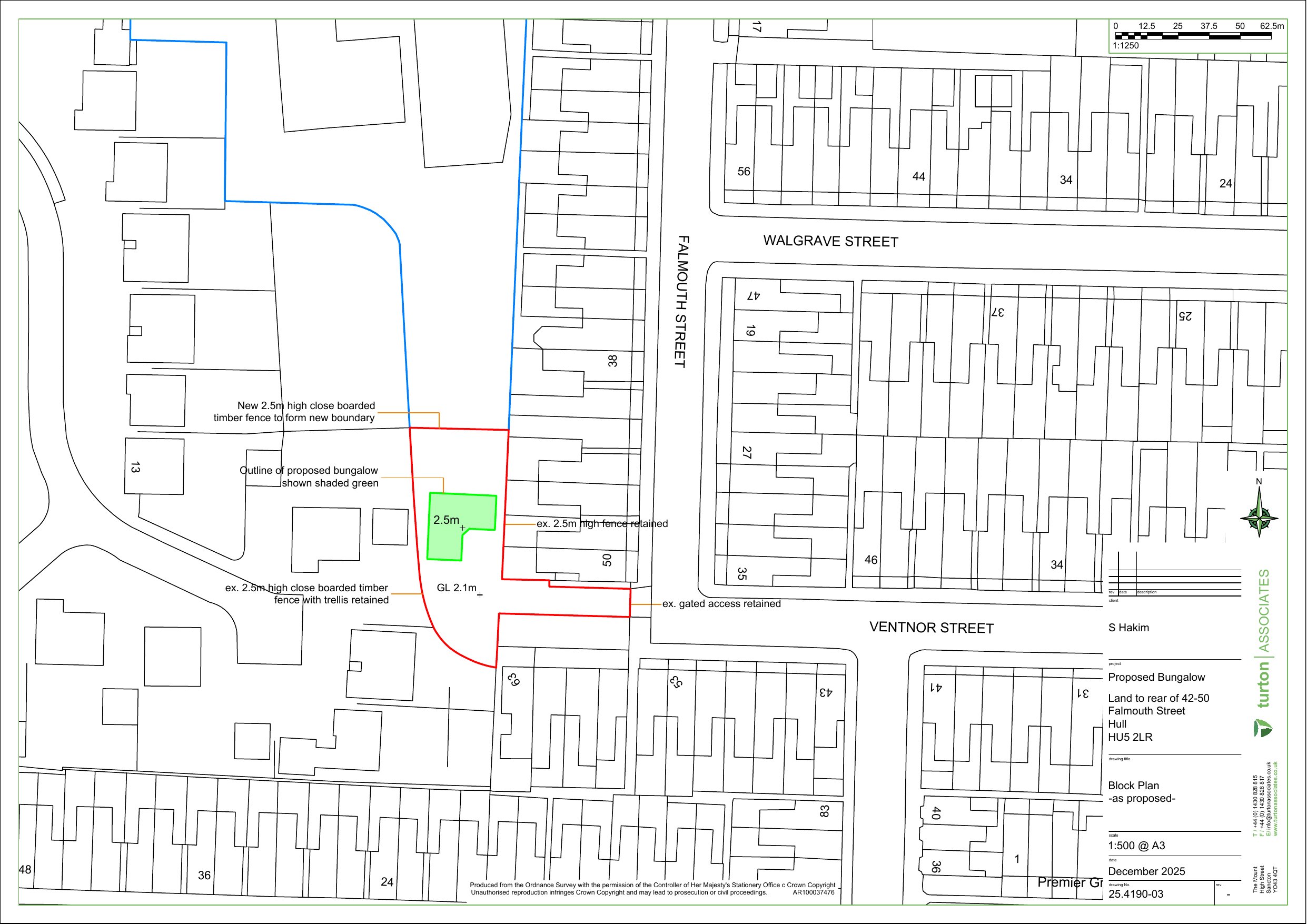
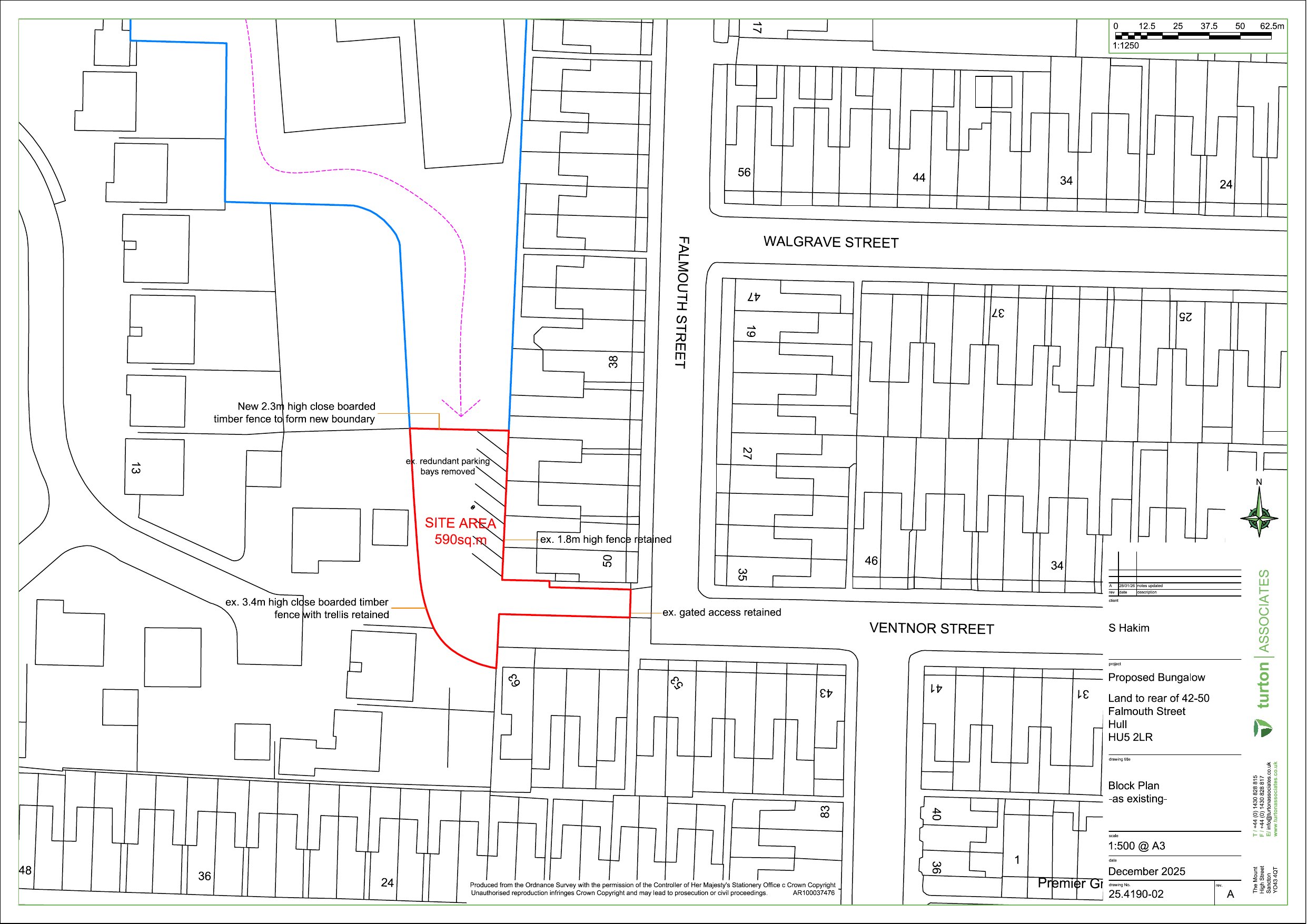
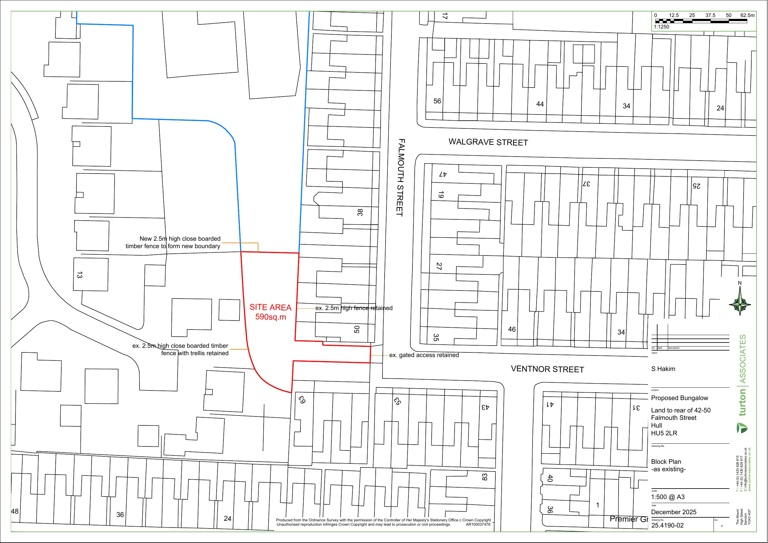
Full proposal

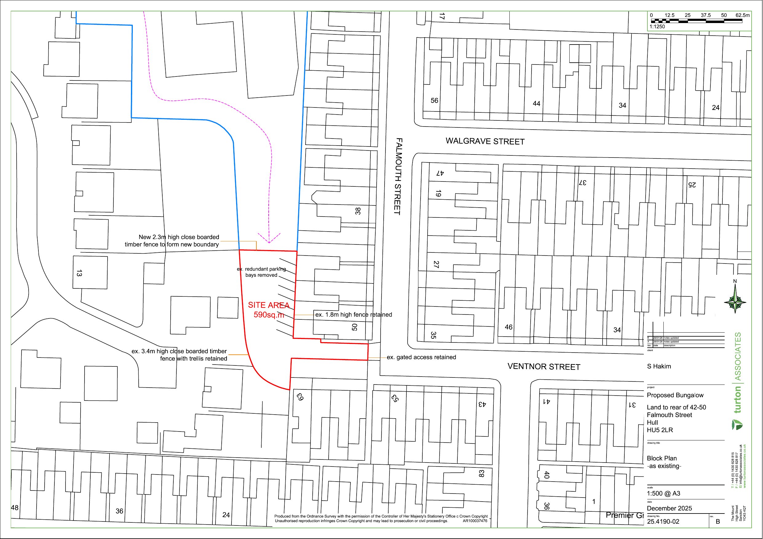
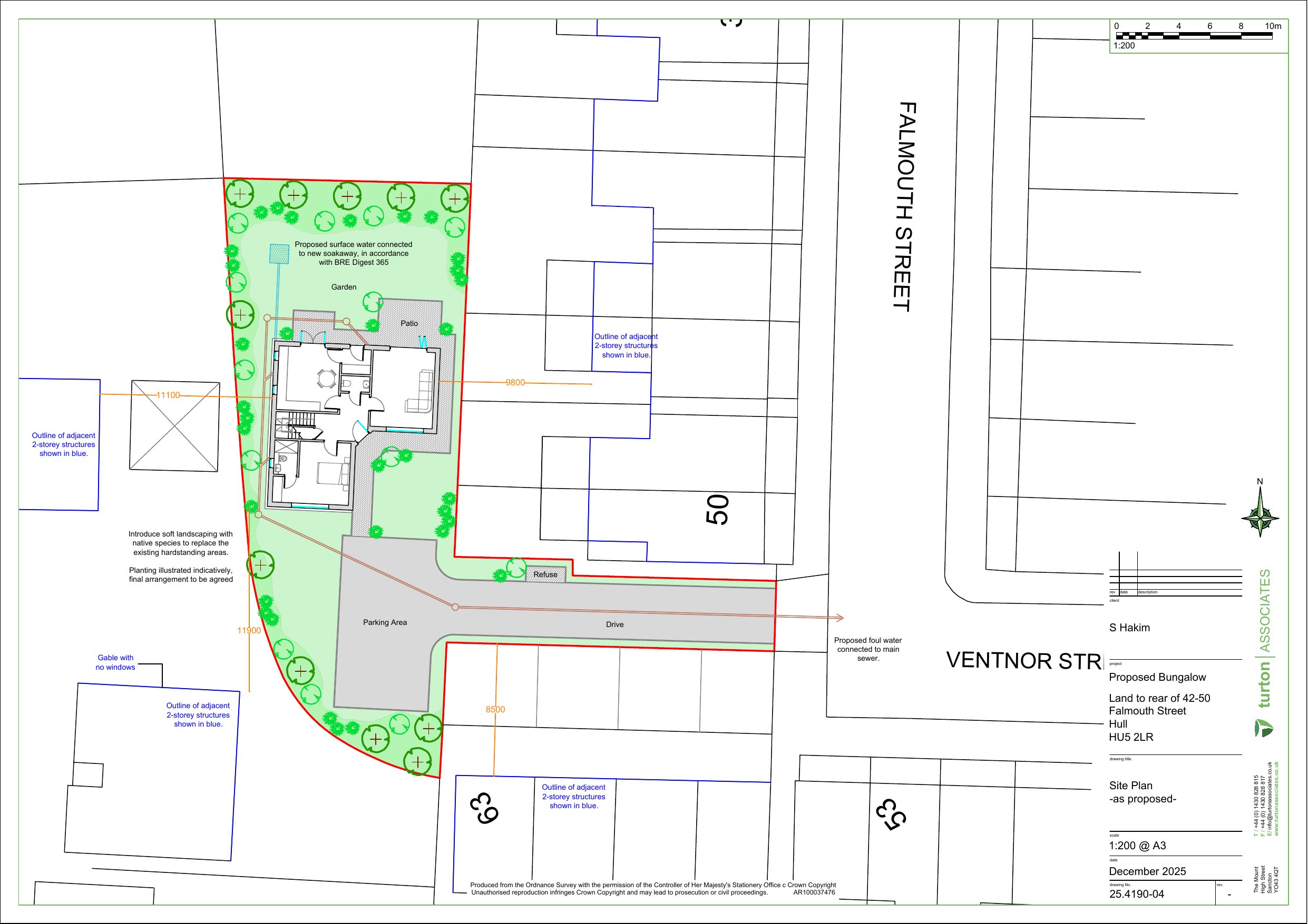
Erection of dwelling served by existing access from Falmouth Street

Documents

ACCESS COMMENTS
Correspondence
Not yet archived · Original link
Drawing
Archived · Original link
Drawing
Archived · Original link
Correspondence
Archived · Original link
Correspondence
Archived · Original link
BackGround Papers
Archived · Original link
Correspondence
Archived · Original link
Other
Archived · Original link
Correspondence
Archived · Original link
Drawing
Archived · Original link
Drawing
Archived · Original link
HIGHWAYS DC COMMENTS
Correspondence
Not yet archived · Original link
Correspondence
Archived · Original link
Correspondence
Archived · Original link
Correspondence
Archived · Original link
Drawing
Archived · Original link
Public Comment
Archived · Original link
Public Comment
Archived · Original link
Public Comment
Archived · Original link
Public Comment
Archived · Original link
Public Comment
Archived · Original link
Public Comment
Archived · Original link
Public Comment
Archived · Original link
Public Comment
Archived · Original link
Public Comment
Archived · Original link
Public Comment
Archived · Original link
Public Comment
Archived · Original link
Public Comment
Archived · Original link
Public Comment
Archived · Original link
Public Comment
Archived · Original link
Public Comment
Archived · Original link
Public Comment
Archived · Original link
Public Comment
Archived · Original link
Public Comment
Archived · Original link
Public Comment
Archived · Original link
Public Comment
Archived · Original link
RECYCLING OFFICER COMMENTS
Correspondence
Not yet archived · Original link
Drawing
Archived · Original link
Drawing
Archived · Original link
OS Extract
Archived · Original link

Have your say

Your comment matters. Councils must consider every representation that raises material planning considerations.

Write a comment