← Hull City Council

Status

Pending Consideration House extension
Received
28 Jan 2026
New homes
0

Full proposal

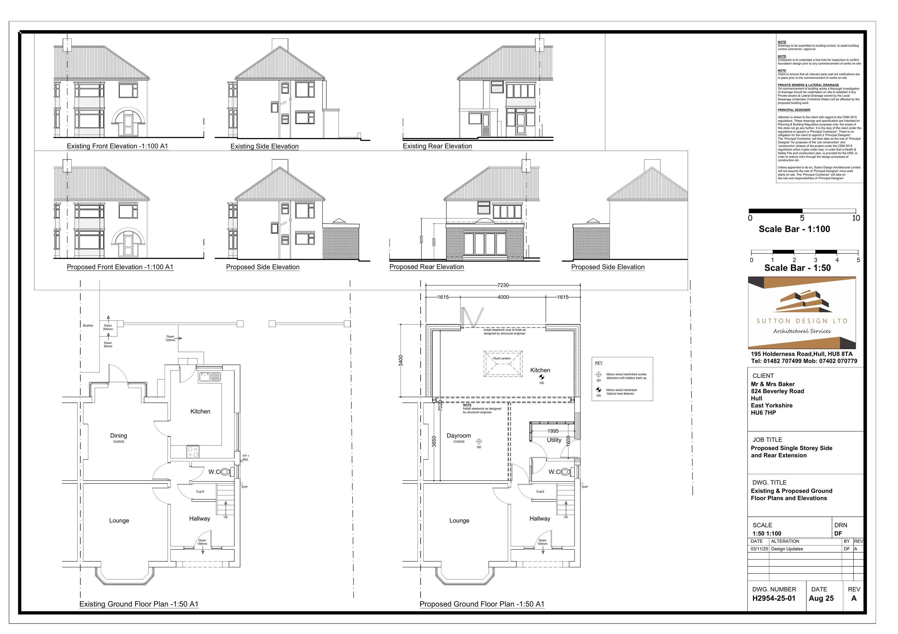
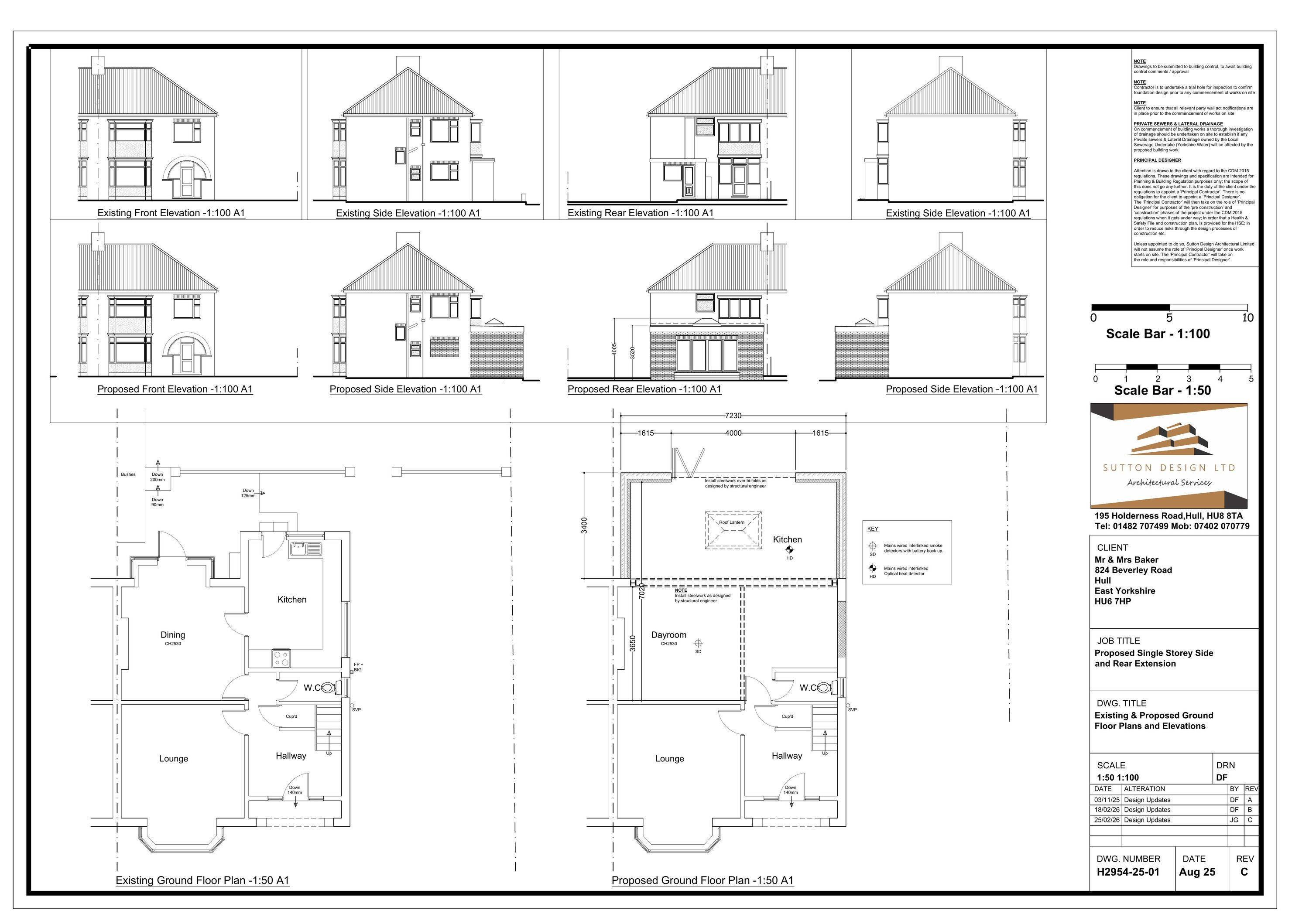
Erection of single storey rear extension (3.4m depth x 7.23m width x 4m max height) following demolition of outrigger.

Documents

Application Form
Archived · Original link
BackGround Papers
Archived · Original link
FEE LETTER
Correspondence
Not yet archived · Original link
OS Extract
Archived · Original link
Drawing
Archived · Original link
Drawing
Archived · Original link

Have your say

Your comment matters. Councils must consider every representation that raises material planning considerations.

Write a comment