← Hull City Council

Status

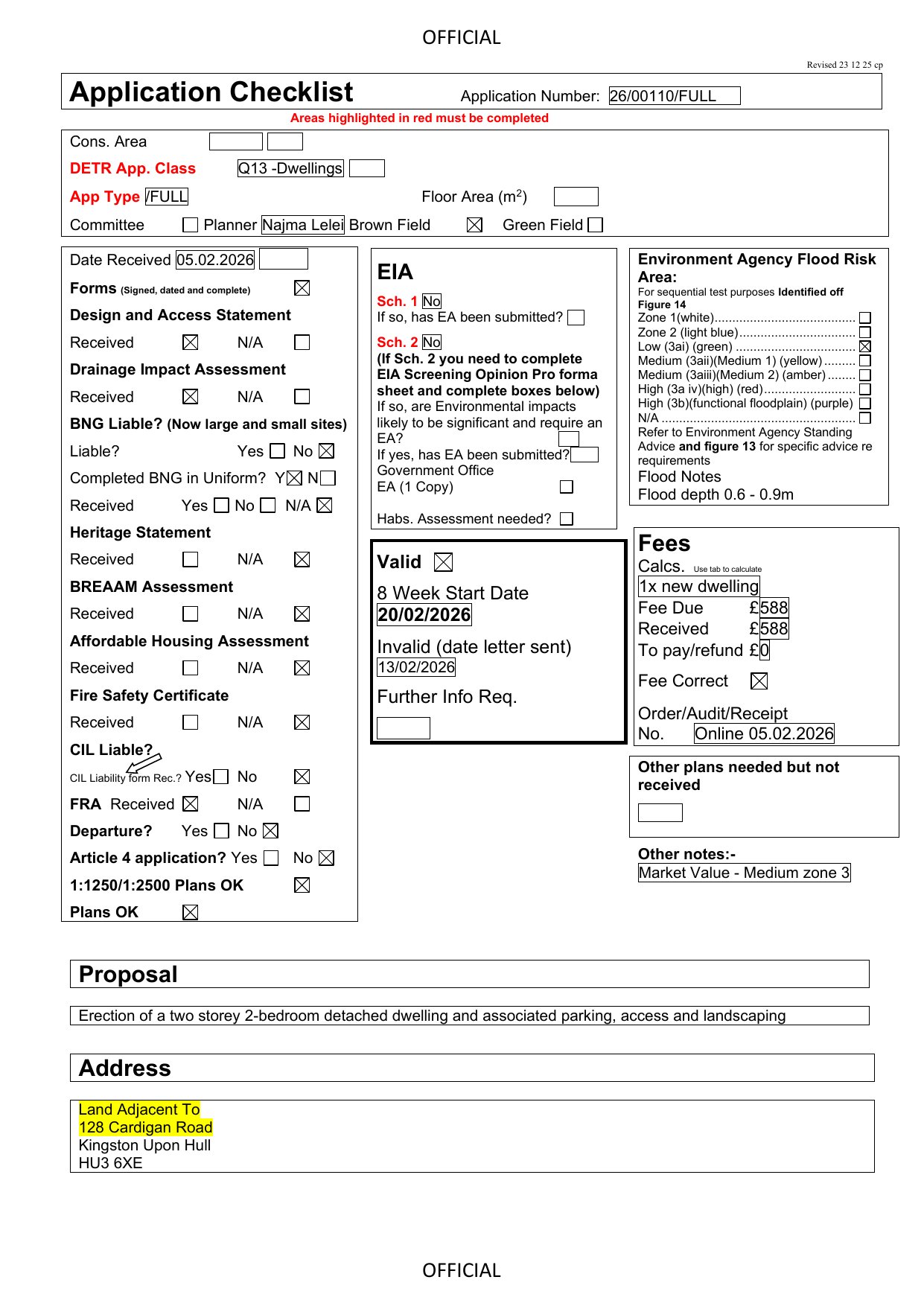
Pending Consideration New housing
Received
05 Feb 2026
New homes
1

Full proposal

Erection of a two storey 2 bedroom detached dwelling and associated parking, access and landscaping

Have your say

Your comment matters. Councils must consider every representation that raises material planning considerations.

Write a comment