← Hull City Council

Status

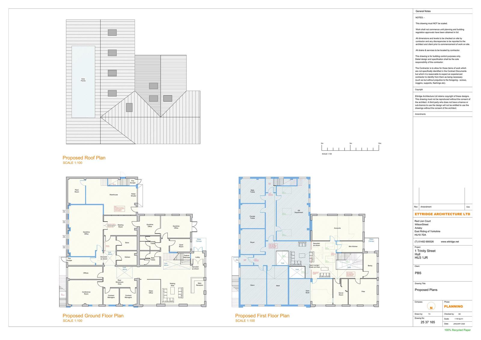
Pending Consideration House extension
Received
Last month
New homes
0

Full proposal

Erection of two storey extension

Documents

BIODIVERSITY METRIC CALCULATION TOOL
Other
Not yet archived · Original link
BIODIVERSITY METRIC CALCULATION TOOL
Other
Not yet archived · Original link
Other
Archived · Original link
ELEVATION (SIDE) - EXISTING
Other
Not yet archived · Original link
ELEVATION (SIDE) - PROPOSED
Other
Not yet archived · Original link
Correspondence
Archived · Original link
Other
Archived · Original link
FLOOR PLAN - EXISTING
Other
Not yet archived · Original link
HIGHWAYS COMMENTS
Correspondence
Not yet archived · Original link
SITE/BLOCK PLAN - EXISTING
Other
Not yet archived · Original link
OS Extract
Archived · Original link

Have your say

Your comment matters. Councils must consider every representation that raises material planning considerations.

Write a comment