← Hull City Council

Status

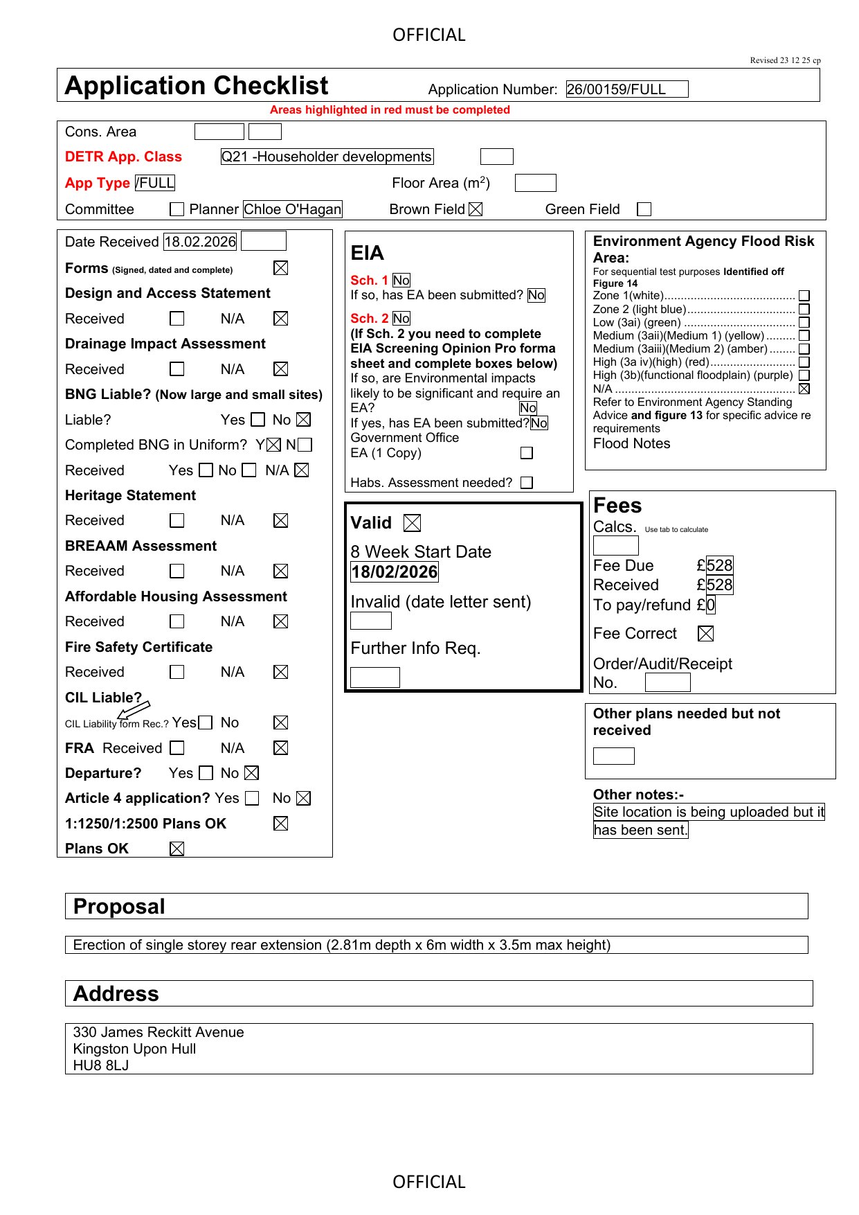
Pending Consideration House extension
Received
Last month
New homes
0

Full proposal

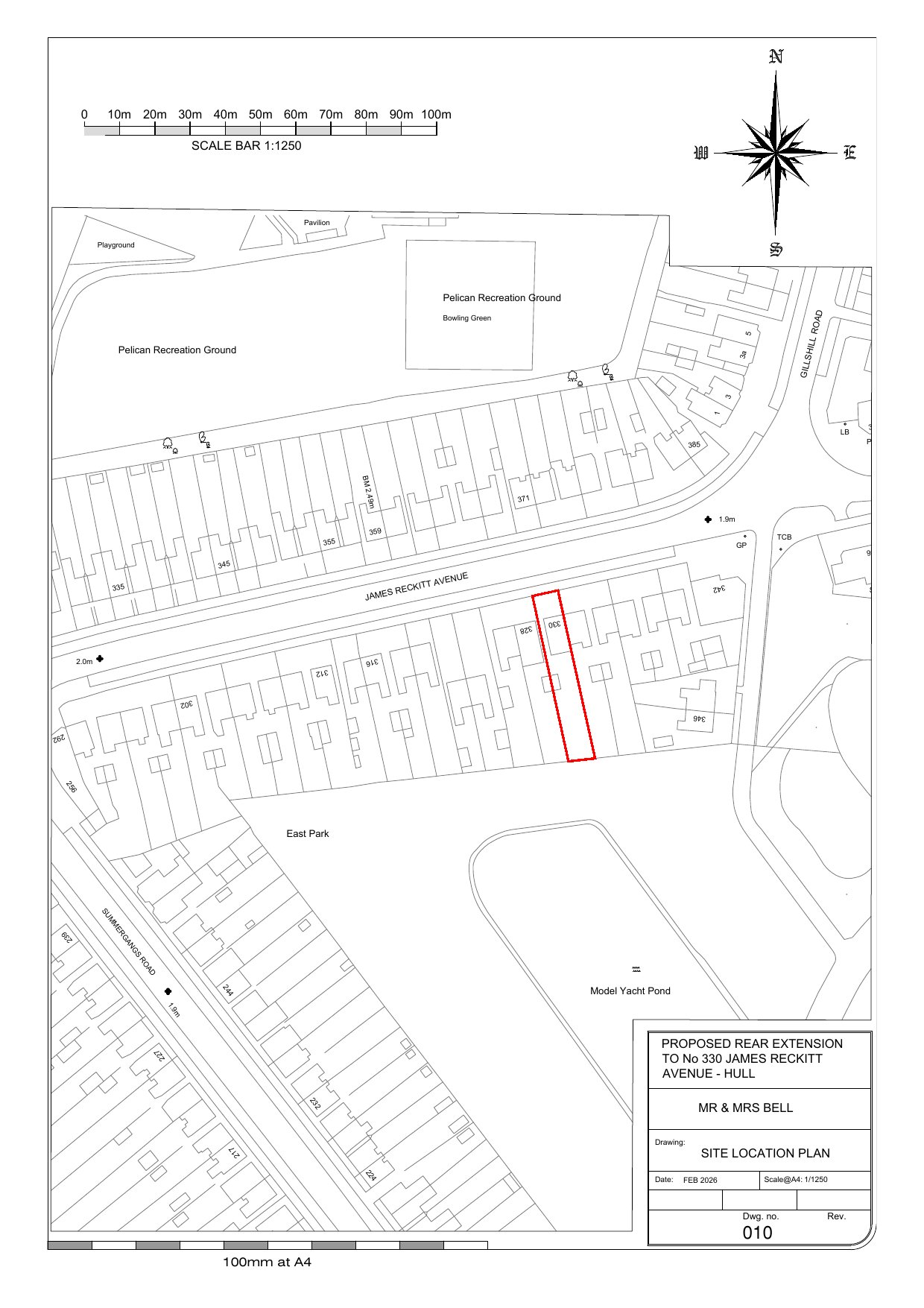
Erection of single storey rear extension (2.81m depth x 6m width x 3.5m max height)

Documents

Application Form
Archived · Original link
Officer Notes
Archived · Original link
PLAN
Drawing
Not yet archived · Original link
Drawing
Archived · Original link
Drawing
Archived · Original link
Drawing
Archived · Original link
Drawing
Archived · Original link

Have your say

Your comment matters. Councils must consider every representation that raises material planning considerations.

Write a comment