← Hull City Council

Status

Pending Consideration House extension
Received
Last month
New homes
0

Full proposal

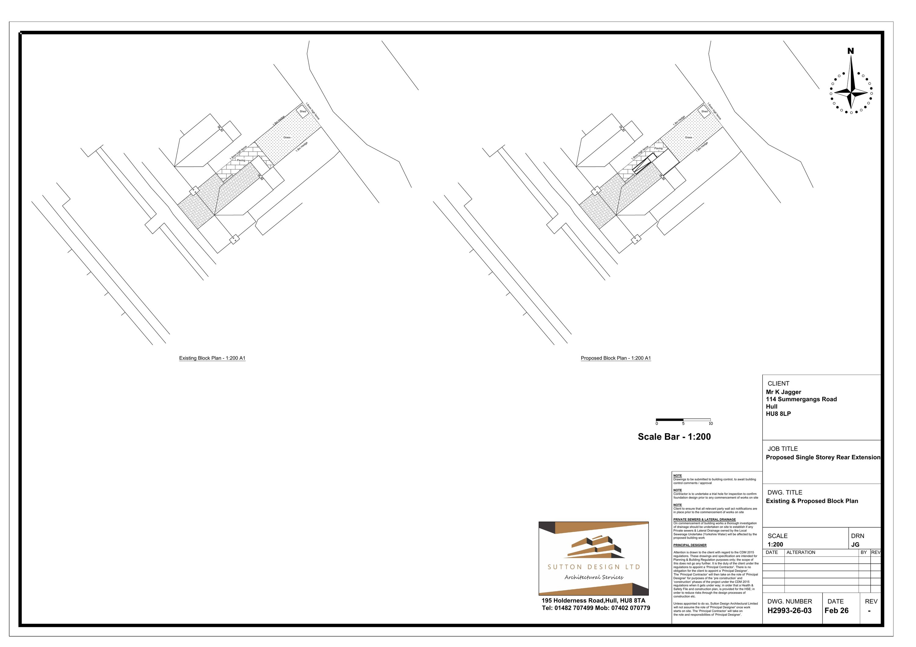
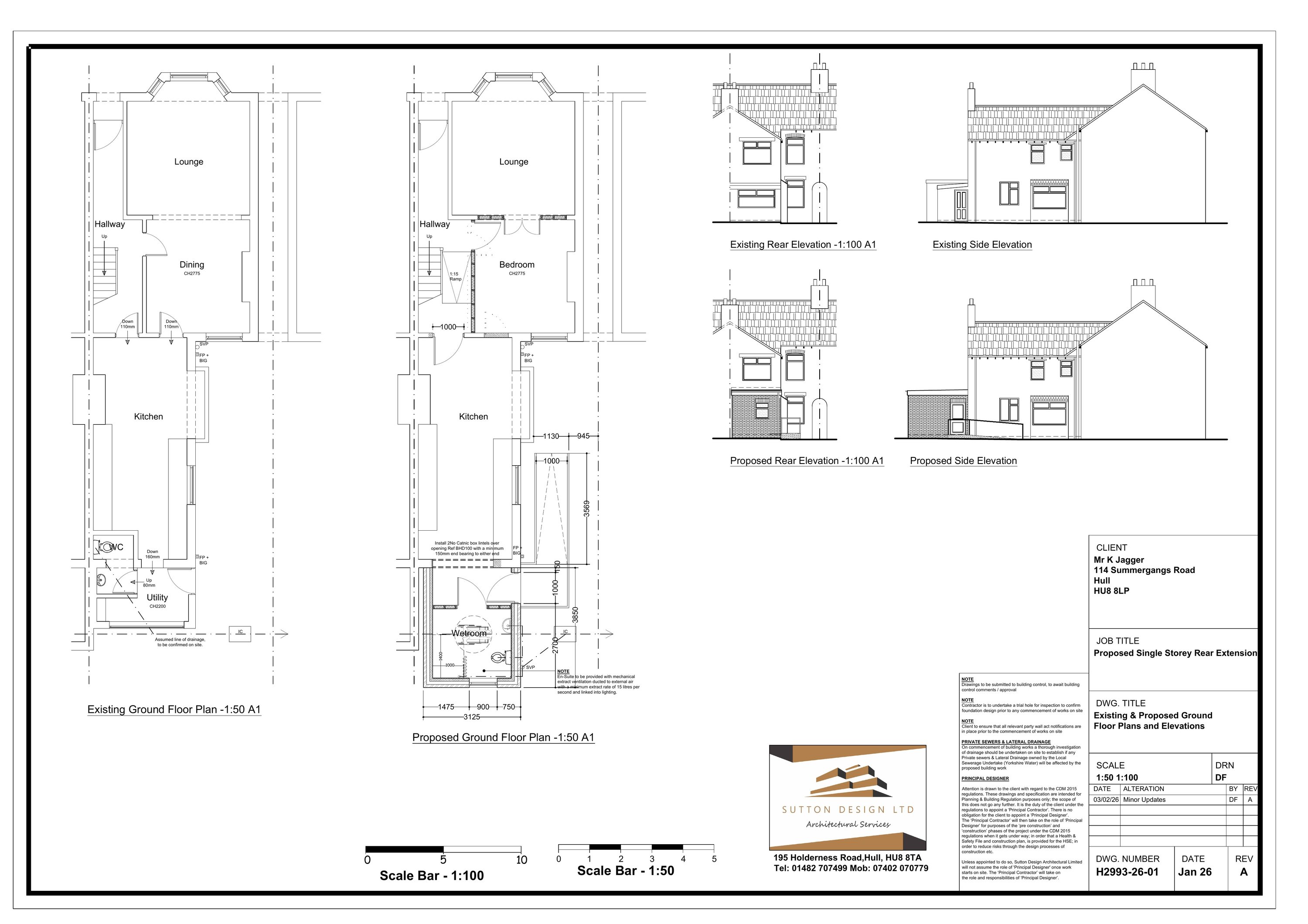
Erection of single storey rear extension to create wet room facilities and external access ramp 3.85m (length) x 3.1m (width) following demolition of existing utility room.

Documents

Application Form
Archived · Original link
Other
Archived · Original link
Drawing
Archived · Original link
Drawing
Archived · Original link
Drawing
Archived · Original link
OS Extract
Archived · Original link

Have your say

Your comment matters. Councils must consider every representation that raises material planning considerations.

Write a comment