← Hull City Council

Status

Pending Consideration House extension
Received
Last month
New homes
0

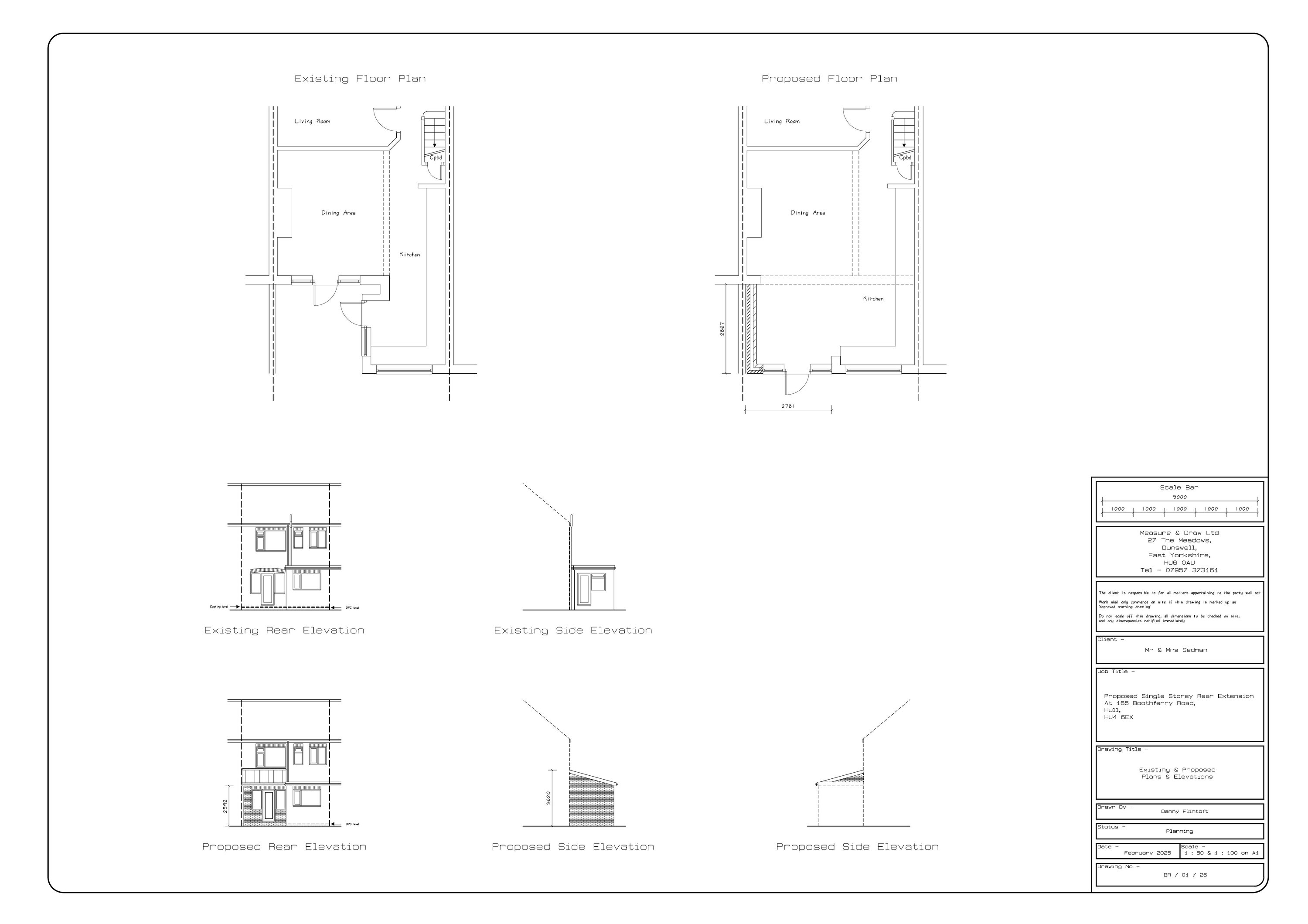
Full proposal

Erection of a single storey rear and side extension (2.9m long x 2.8m wide x 2.6m eaves x 3.6m max height)

Have your say

Your comment matters. Councils must consider every representation that raises material planning considerations.

Write a comment