← Hull City Council

Status

Pending Consideration Commercial
Received
Last month
New homes
0

Full proposal

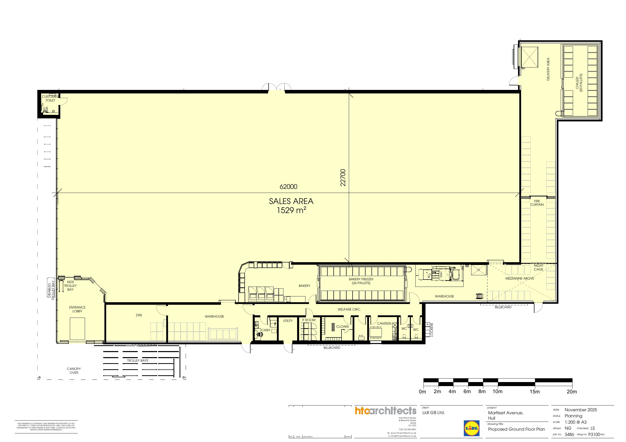
Hybrid planning application comprising: 1) Full element: Erection of a foodstore (Use Class E(a)) with associated vehicular and pedestrian access, car and cycle parking, servicing, and landscaping. 2) Outline element (all matters reserved except access): Demolition of part of existing building and erection of flexible employment (Use Class E(g)(i)-(iii)), and/or B2 and/or B8), a food and beverage drive-thru (Use Class E(b) / sui generis), and EV charging bays, alongside associated car and cycle parking, servicing, vehicular and pedestrian access, and landscaping.

Documents

Drawing
Archived · Original link
Drawing
Archived · Original link
Drawing
Archived · Original link
Drawing
Archived · Original link
Drawing
Archived · Original link
Drawing
Archived · Original link
Drawing
Archived · Original link
BIODIVERSITY METRIC CALCULATION TOOL
Other
Not yet archived · Original link
BackGround Papers
Archived · Original link
Other
Archived · Original link
Other
Archived · Original link
Drawing
Archived · Original link
Drawing
Archived · Original link
Report
Archived · Original link
Report
Archived · Original link
BackGround Papers
Archived · Original link
OS Extract
Archived · Original link
Report
Archived · Original link
Report
Archived · Original link
Report
Archived · Original link

Have your say

Your comment matters. Councils must consider every representation that raises material planning considerations.

Write a comment