← Hull City Council

Status

Pending Consideration Change of use
Received
Last month
New homes
0

Full proposal

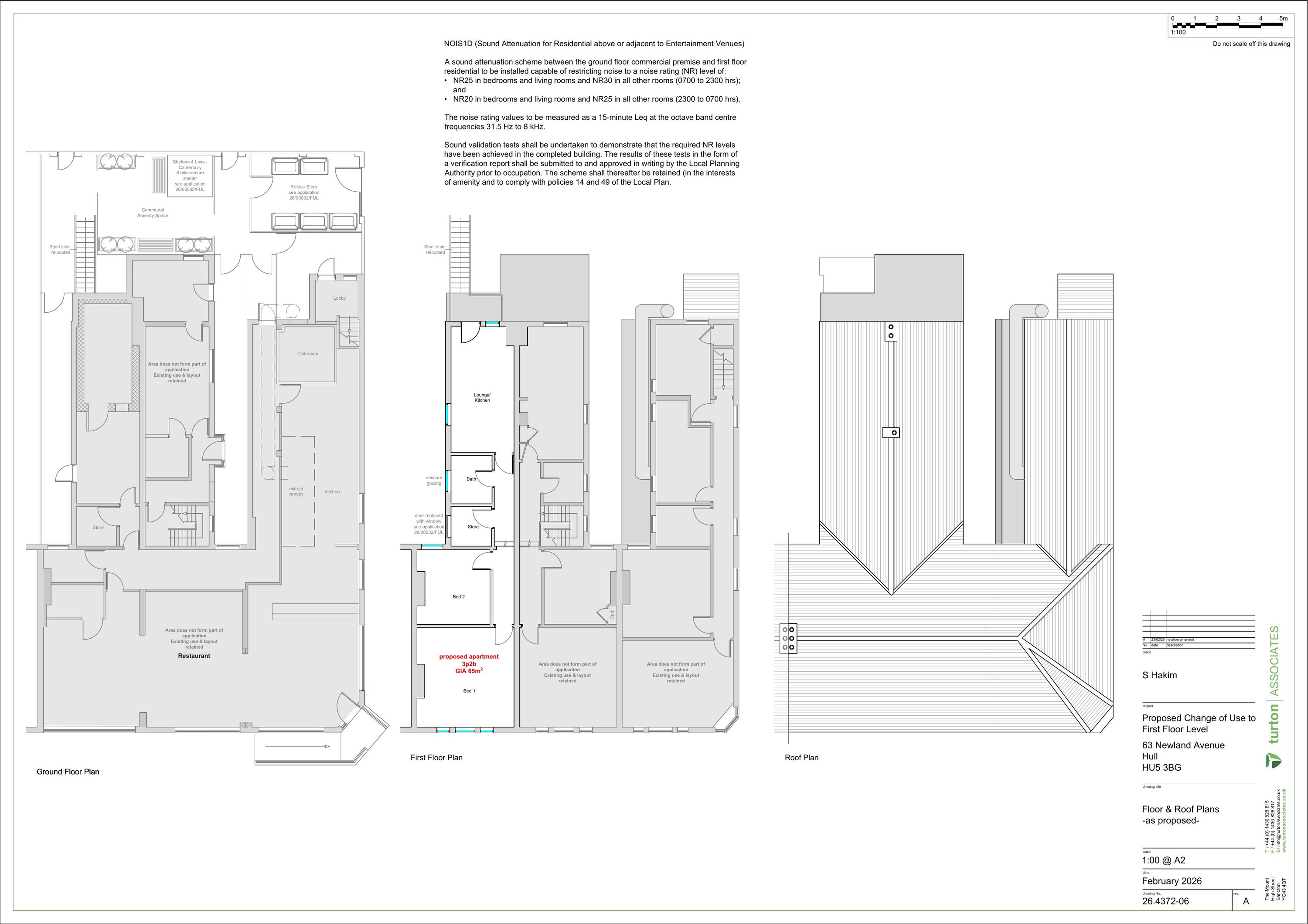
Change of use of upper floor to flat and external alterations including relocation of external staircase and changes to fenestration

Documents

Drawing
Archived · Original link
Drawing
Archived · Original link
Drawing
Archived · Original link
Drawing
Archived · Original link
Officer Notes
Archived · Original link
Other
Archived · Original link
OS Extract
Archived · Original link

Have your say

Your comment matters. Councils must consider every representation that raises material planning considerations.

Write a comment