← Huntingdonshire District Council

Status

In progress House extension
Received
22 Dec 2025
New homes
0

Full proposal

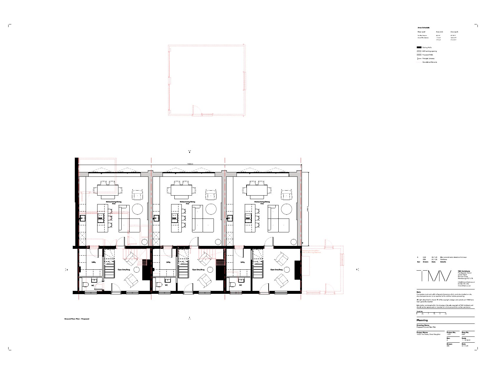
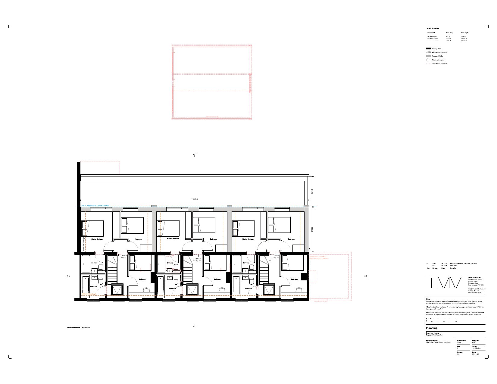
Partial demolition of No. 19, demolition of existing rear garage and erection of a two-storey rear extension to Nos. 19 to 23 (Part Retrospective).

Documents

Plan Public Access
Archived · Original link
General Document Public Access
Archived · Original link
Plan Public Access
Archived · Original link
Plan Public Access
Archived · Original link
Plan Public Access
Archived · Original link
Plan Public Access
Archived · Original link
Plan Public Access
Archived · Original link
Plan Public Access
Archived · Original link
Plan Public Access
Archived · Original link
Plan Public Access
Archived · Original link
General Document Public Access
Archived · Original link
Plan Public Access
Archived · Original link
Plan Public Access
Archived · Original link
Plan Public Access
Archived · Original link
Plan Public Access
Archived · Original link
Plan Public Access
Archived · Original link
Plan Public Access
Archived · Original link
Plan Public Access
Archived · Original link

Have your say

Your comment matters. Councils must consider every representation that raises material planning considerations.

Write a comment