← Huntingdonshire District Council

Status

Pending decision House extension
Received
16 Jan 2026
New homes
0

Full proposal

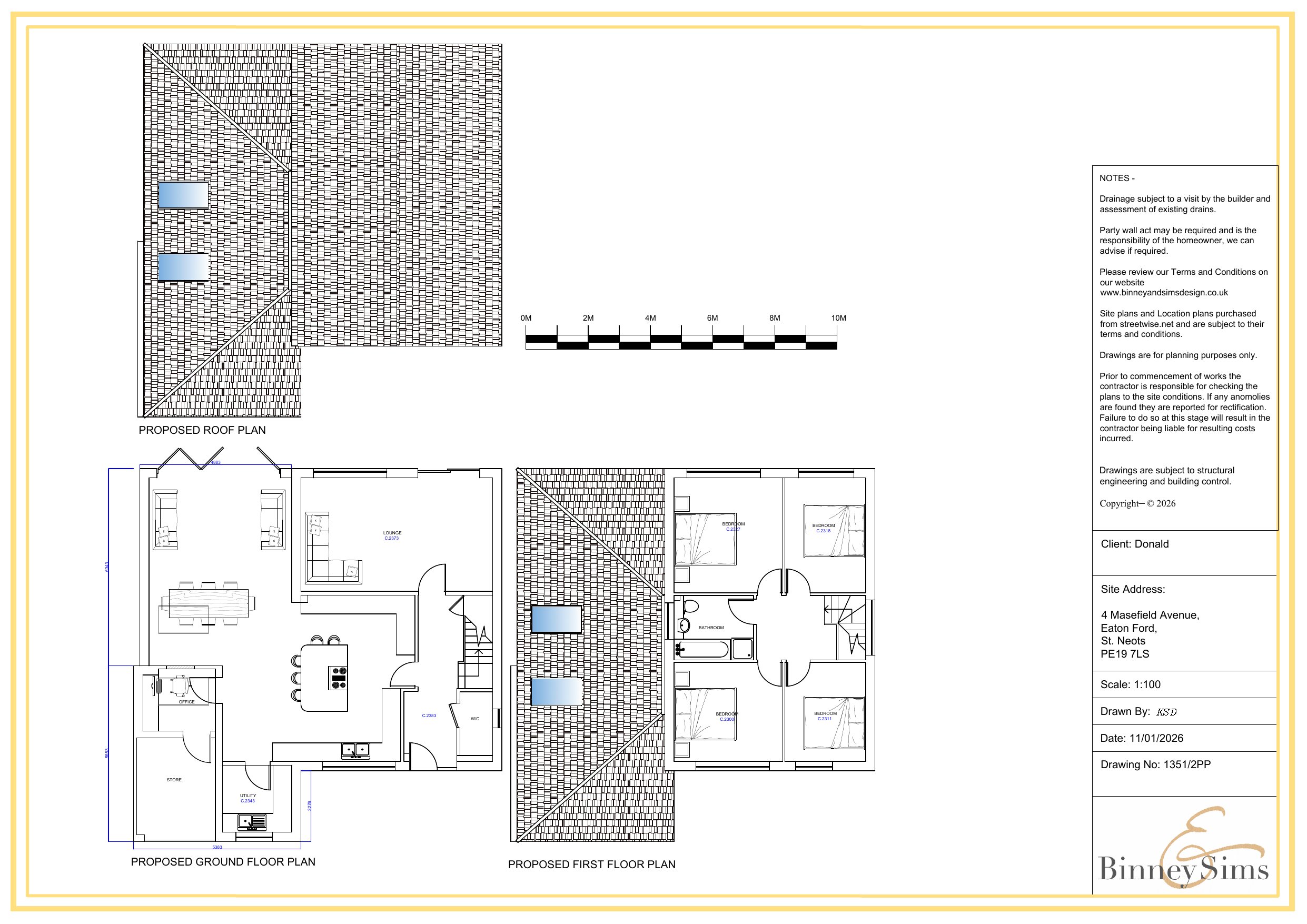
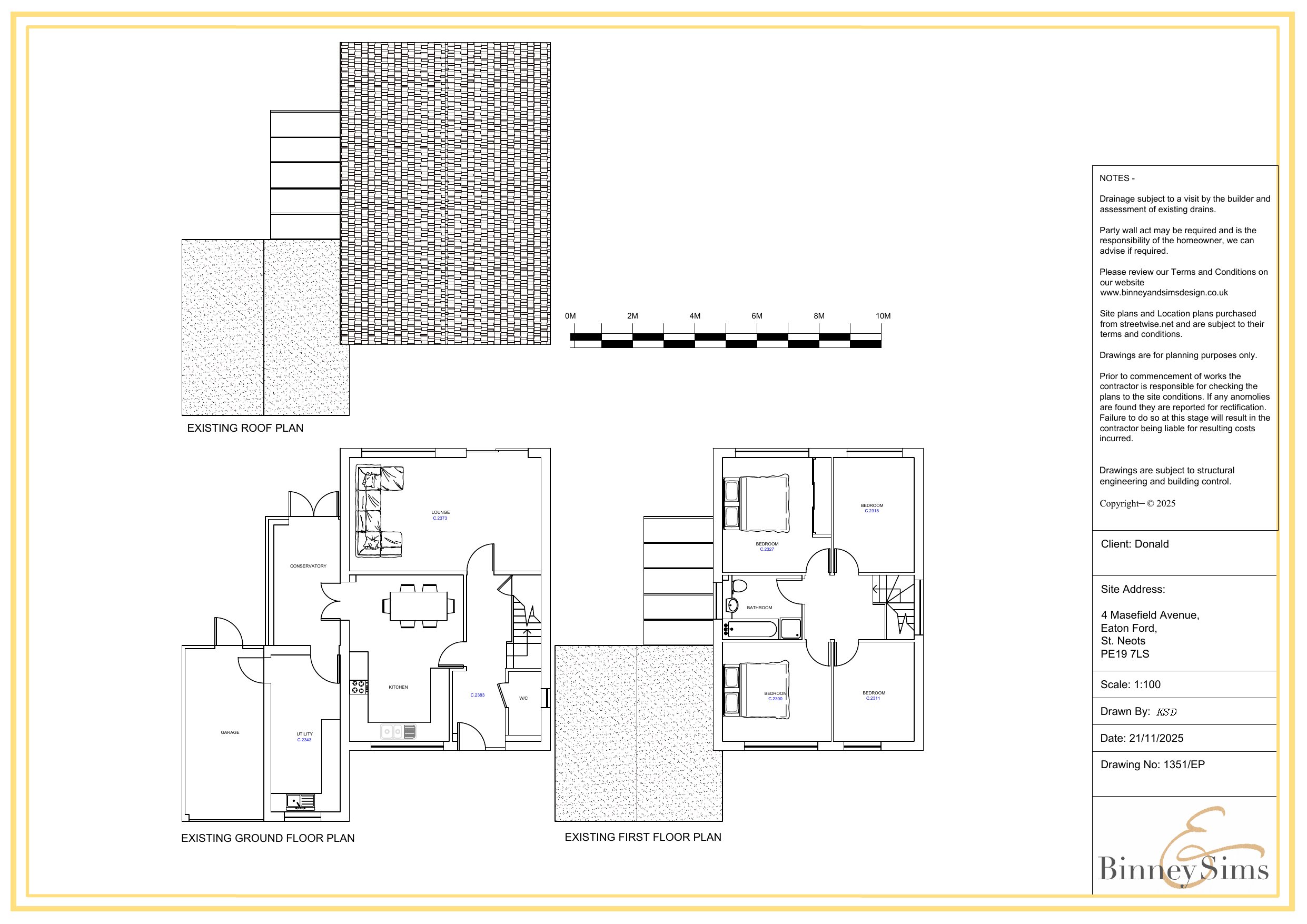
Erection of single storey side extension and addition of pitched roof above existing utility/garage

Documents

Plan Public Access
Archived · Original link
Plan Public Access
Archived · Original link
Plan Public Access
Archived · Original link
Plan Public Access
Archived · Original link
Plan Public Access
Archived · Original link

Have your say

Your comment matters. Councils must consider every representation that raises material planning considerations.

Write a comment