← Huntingdonshire District Council

Status

In progress House extension
Received
Last month
New homes
0

Full proposal

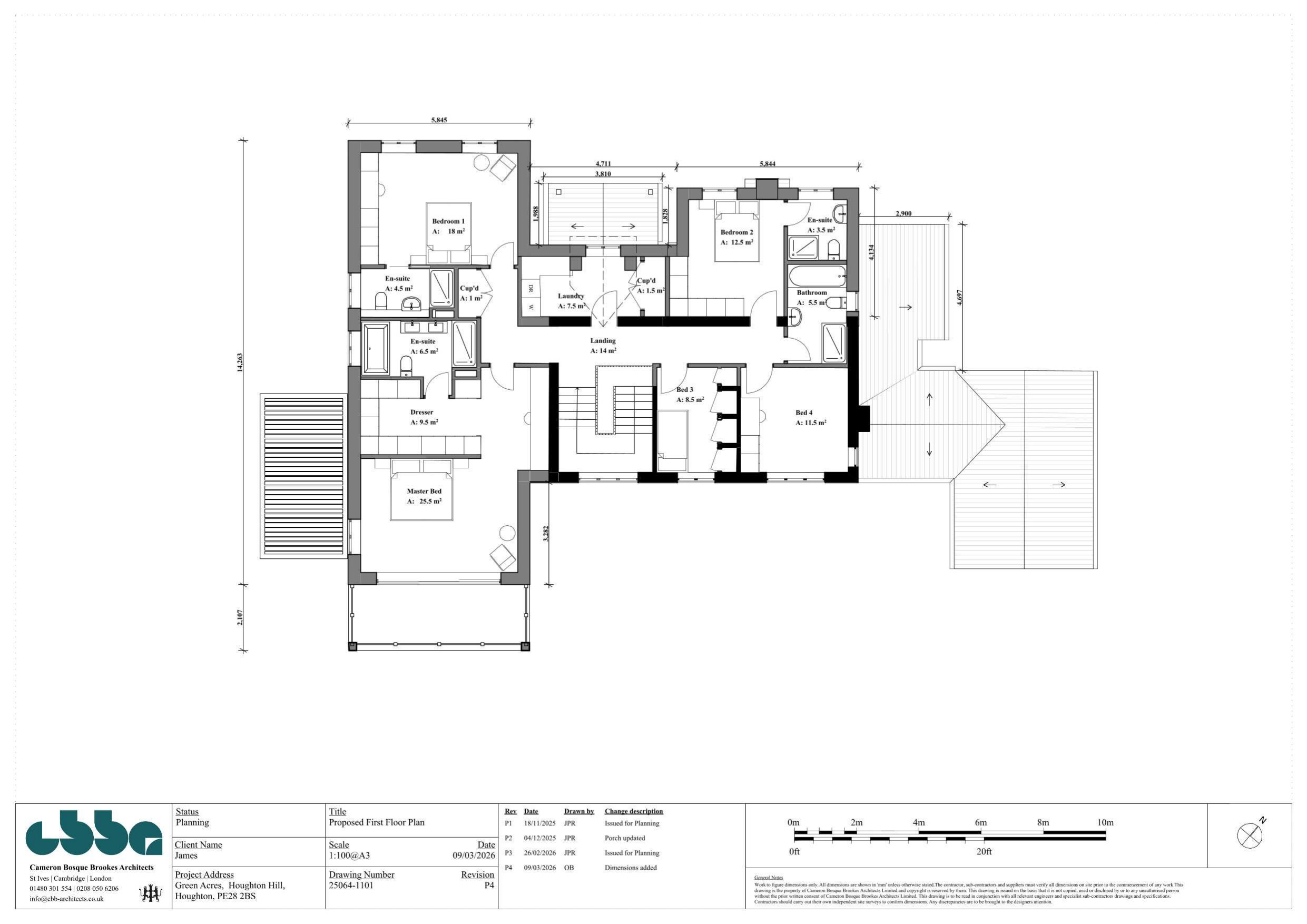
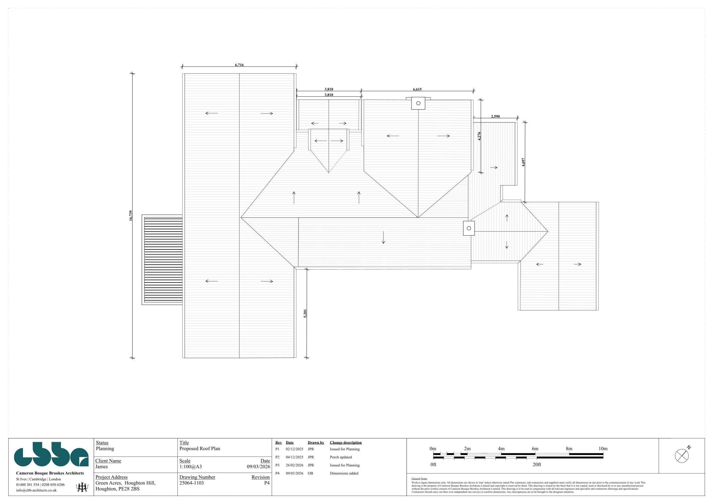
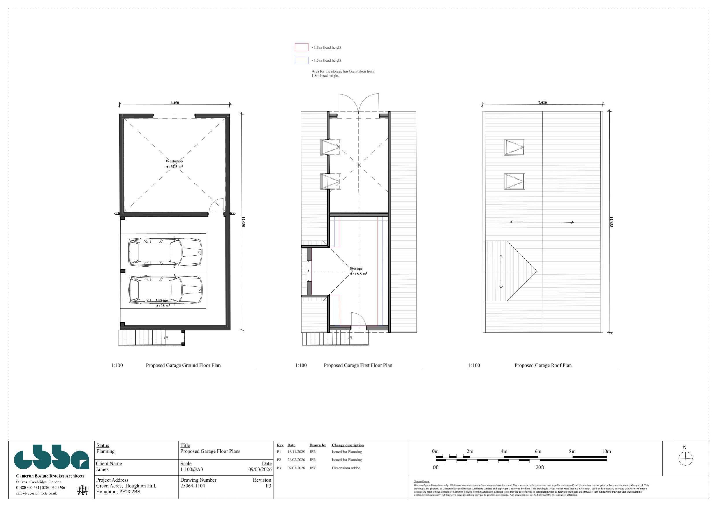
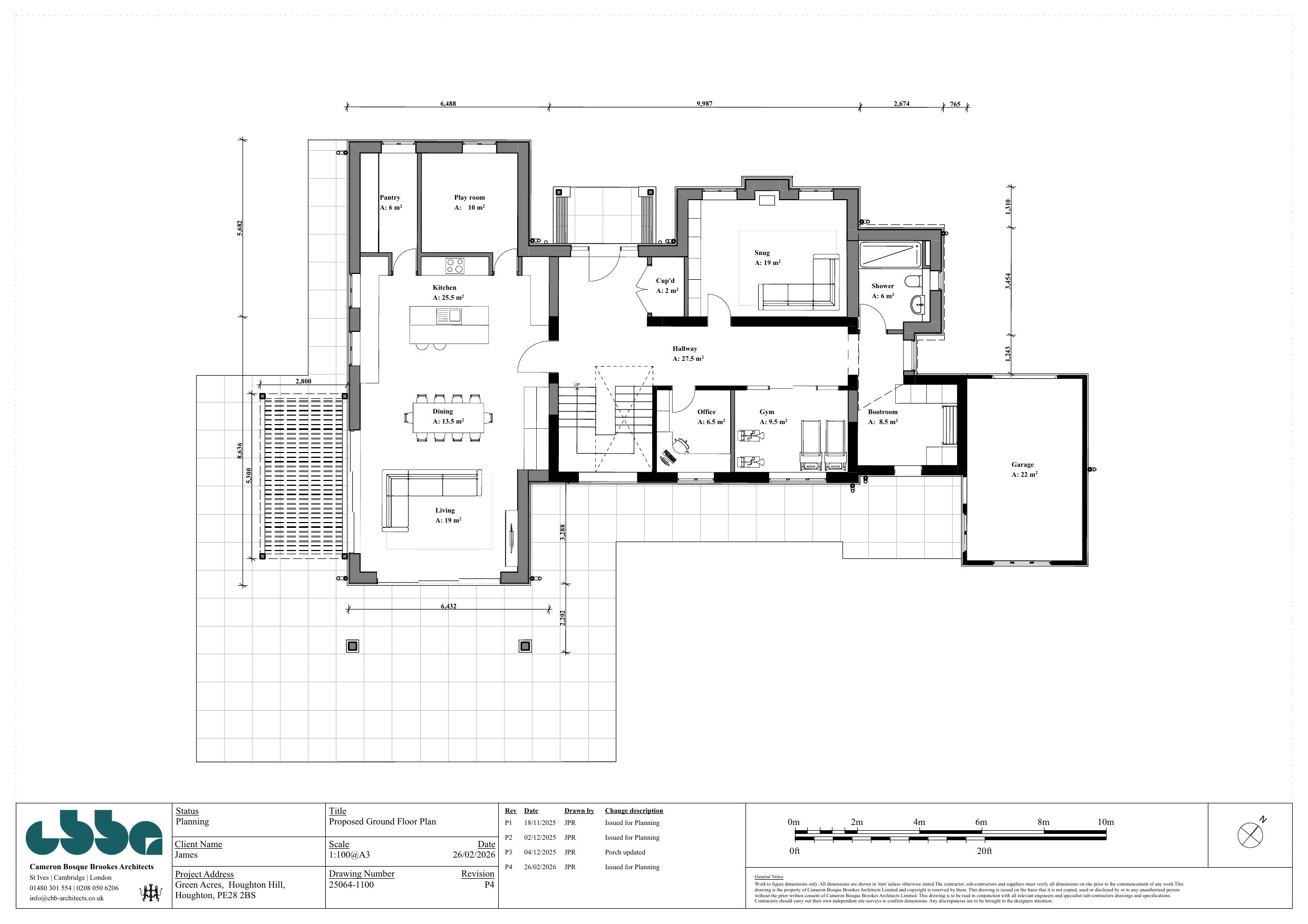
Side, rear and front extension and refurbishment to an existing dwelling, including new detached garage and boundary with gate to relocated entrance

Documents

Application Form Public Access
Archived · Original link
General Document Public Access
Archived · Original link
General Document Public Access
Archived · Original link
Plan Public Access
Archived · Original link
Plan Public Access
Archived · Original link
Plan Public Access
Archived · Original link
General Document Public Access
Archived · Original link
Plan Public Access
Archived · Original link
Plan Public Access
Archived · Original link
Plan Public Access
Archived · Original link
Plan Public Access
Archived · Original link
Plan Public Access
Archived · Original link
Plan Public Access
Archived · Original link
Plan Public Access
Archived · Original link
Plan Public Access
Archived · Original link

Have your say

Your comment matters. Councils must consider every representation that raises material planning considerations.

Write a comment