← Hyndburn Borough Council

Status

Pending Change of use
Received
Not recorded
New homes
0

Full proposal

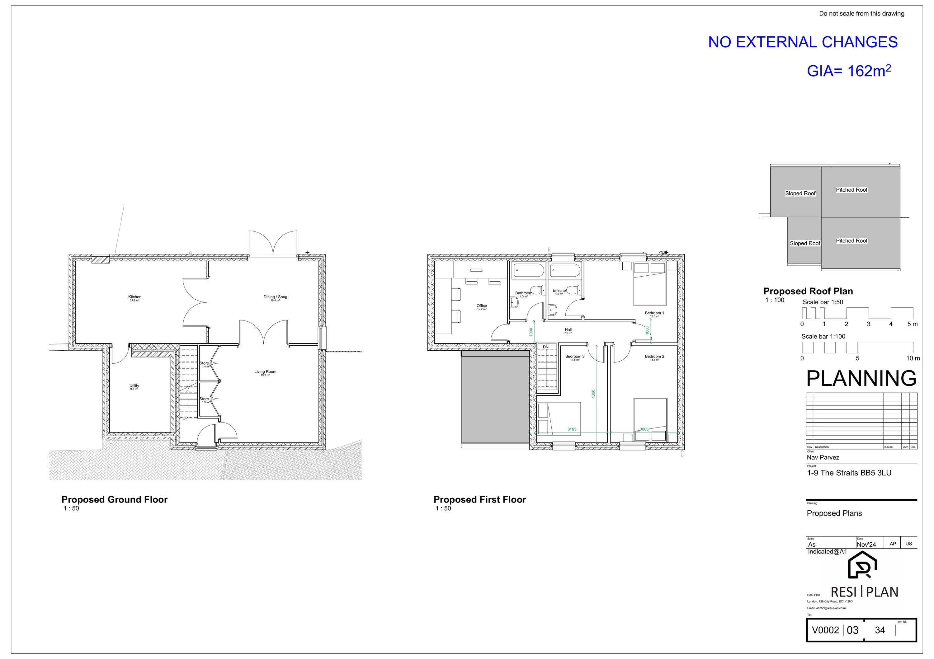
1-9 Straits, Oswaldtwistle, BB5 3LU | Full Planning Application | Full: Change of Use of Building From Commercial to Residential (One Dwelling House) (No External Changes to Existing Property); Excavation to the Rear of Site to Change Ground Level (Partly Retrospect... | Application No: 11/24/0394 | Registered : 04 December 2024

Documents

Application Form
Redacted Application Form
Not yet archived · Original link
BIODIV_1 Biodiversity Net Gain Matrix
Background paper needing redaction
Not yet archived · Original link
Constraints Checklist & History 11 24 0394
Background Papers
Not yet archived · Original link
Design and Access LQ
Background Papers
Not yet archived · Original link
Environment Agency
Statutory Consultee Response
Not yet archived · Original link
Environment Agency
Statutory Consultee Response
Not yet archived · Original link
Environmental Protection
Statutory Consultee Response
Not yet archived · Original link
Existing Elevations
CAD Drawing
Not yet archived · Original link
Existing External Views
CAD Drawing
Not yet archived · Original link
Existing Plans
CAD Drawing
Not yet archived · Original link
Extract from official document: Picture 1
Background Papers
Not yet archived · Original link
Flood Risk Assessment
Background Papers
Not yet archived · Original link
Heritage and Conservation Officer Growth Lancashire
Statutory Consultee Response
Not yet archived · Original link
LCC Flood Authority
Statutory Consultee Response
Not yet archived · Original link
LCC Flood Authority
Statutory Consultee Response
Not yet archived · Original link
LCC Flood Authority
Statutory Consultee Response
Not yet archived · Original link
LCC Highways
Statutory Consultee Response
Not yet archived · Original link
Photo: Existing Site
Background Papers
Not yet archived · Original link
Photo: Existing Site 2
Background Papers
Not yet archived · Original link
Photo: Existing Site 3
Background Papers
Not yet archived · Original link
Photo: Existing Site 3
Background Papers
Not yet archived · Original link
Photo: proposed 2
Background Papers
Not yet archived · Original link
Photo: proposed 3
Background Papers
Not yet archived · Original link
Photo: sketch over proposed
Background Papers
Not yet archived · Original link
Photo:proposed 1
Background Papers
Not yet archived · Original link
PRELIM_1 Preliminary Ecological Appraisal
Background paper needing redaction
Not yet archived · Original link
Proposed Elevations And Section
CAD Drawing
Not yet archived · Original link
Proposed Views
CAD Drawing
Not yet archived · Original link
Regeneration
Statutory Consultee Response
Not yet archived · Original link
Site Location And Block Plan
CAD Drawing
Not yet archived · Original link

Have your say

Your comment matters. Councils must consider every representation that raises material planning considerations.

Write a comment