← Hyndburn Borough Council

Status

Pending Change of use
Received
Not recorded
New homes
0

Full proposal

316 Willows Lane, Accrington, BB5 0NJ | Full Planning Application | Full:Change of Use From a C3 Dwellinghouse to a C2 Residential Institution to Operate as a Children's Home for One Child Aged 8 to 17 | Application No: 11/24/0508 | Decided: 21 February 2025

Documents

Appeal Decision 3362689 (Appeal allowed)
Appeal Decision
Not yet archived · Original link
Appeal Start letter (AR13) 01 Apr 2025
Appeal Correspondence
Not yet archived · Original link
Application Form Redacted
Redacted Application Form
Not yet archived · Original link
Constraints 11 24 0508
Background Papers
Not yet archived · Original link
DECNRPP_FINAL2
Decision notice
Not yet archived · Original link
Environmental Health Food Team
Statutory Consultee Response
Not yet archived · Original link
EXISTING ELEVATIONS
CAD Drawing
Not yet archived · Original link
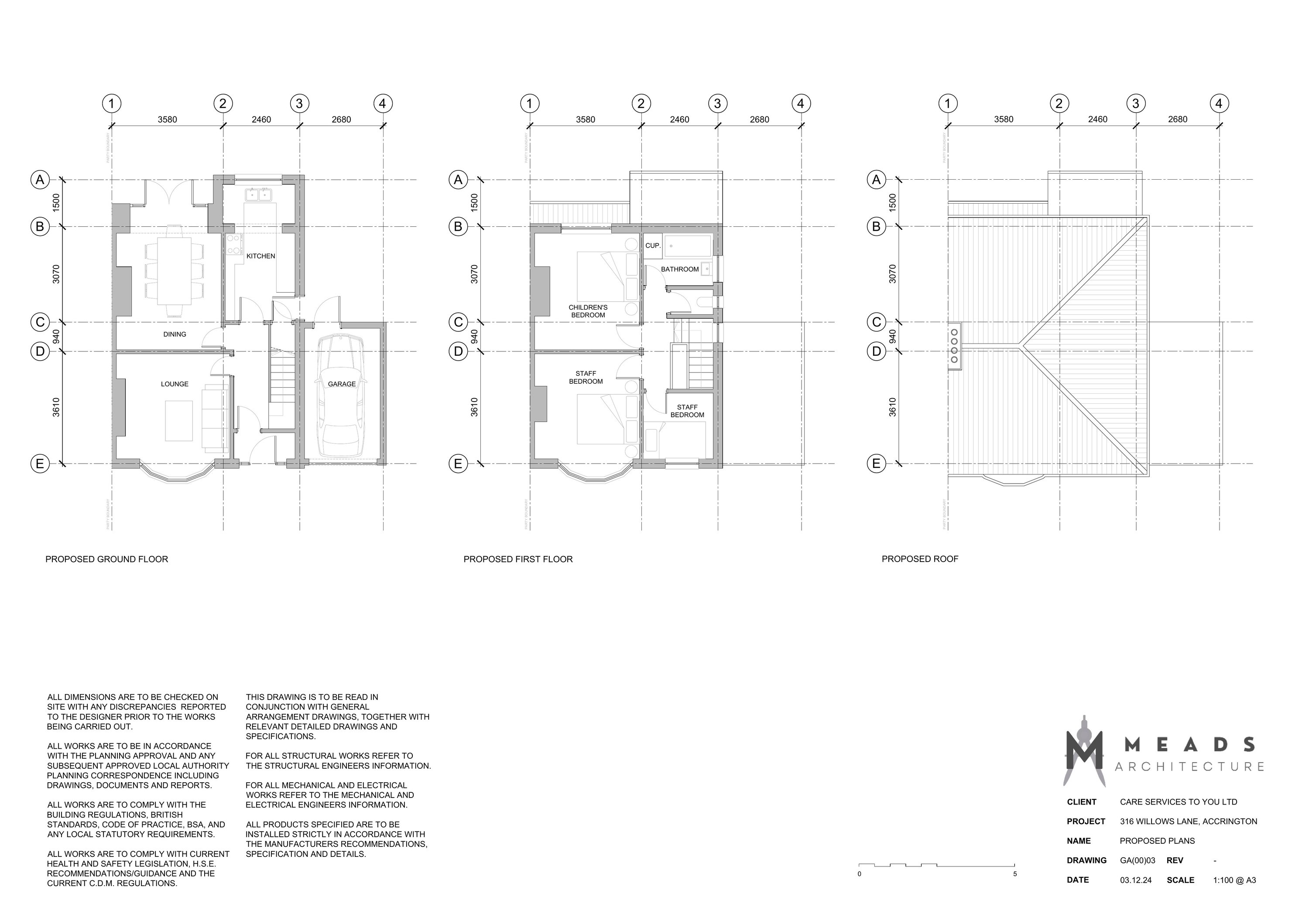
EXISTING PLANS
CAD Drawing
Not yet archived · Original link
CAD Drawing
Archived · Original link
HBC Environmental Health
Statutory Consultee Response
Not yet archived · Original link
LCC CHILDRENS HOME MARKET POSITION STATEMENT (April 2024)
Statutory Consultee Response
Not yet archived · Original link
LCC Highways
Statutory Consultee Response
Not yet archived · Original link
LCC Highways
Statutory Consultee Response
Not yet archived · Original link
LCC Highways. Further comments
Statutory Consultee Response
Not yet archived · Original link
LCC RE Correspondence from Hyndburn Borough Council - Reference 11240508
Statutory Consultee Response
Not yet archived · Original link
LOCATION PLAN
OS Extract
Not yet archived · Original link
LocationPlan
OS Extract
Not yet archived · Original link
Planning Officer's report to Committee
Committee Report
Not yet archived · Original link
Planning Statement
Background Papers
Not yet archived · Original link
Printed minutes 19/02/2025 1500 Planning Committee.
Committee Report
Not yet archived · Original link
PROPOSED ELEVATIONS
CAD Drawing
Not yet archived · Original link
CAD Drawing
Archived · Original link
CAD Drawing
Archived · Original link
THIS APPLICATION TO BE DETERMINED BY PLANNING COMMITTEE.
Background Papers
Not yet archived · Original link

Have your say

Your comment matters. Councils must consider every representation that raises material planning considerations.

Write a comment