← Hyndburn Borough Council

Status

Pending Change of use
Received
Not recorded
New homes
1

Full proposal

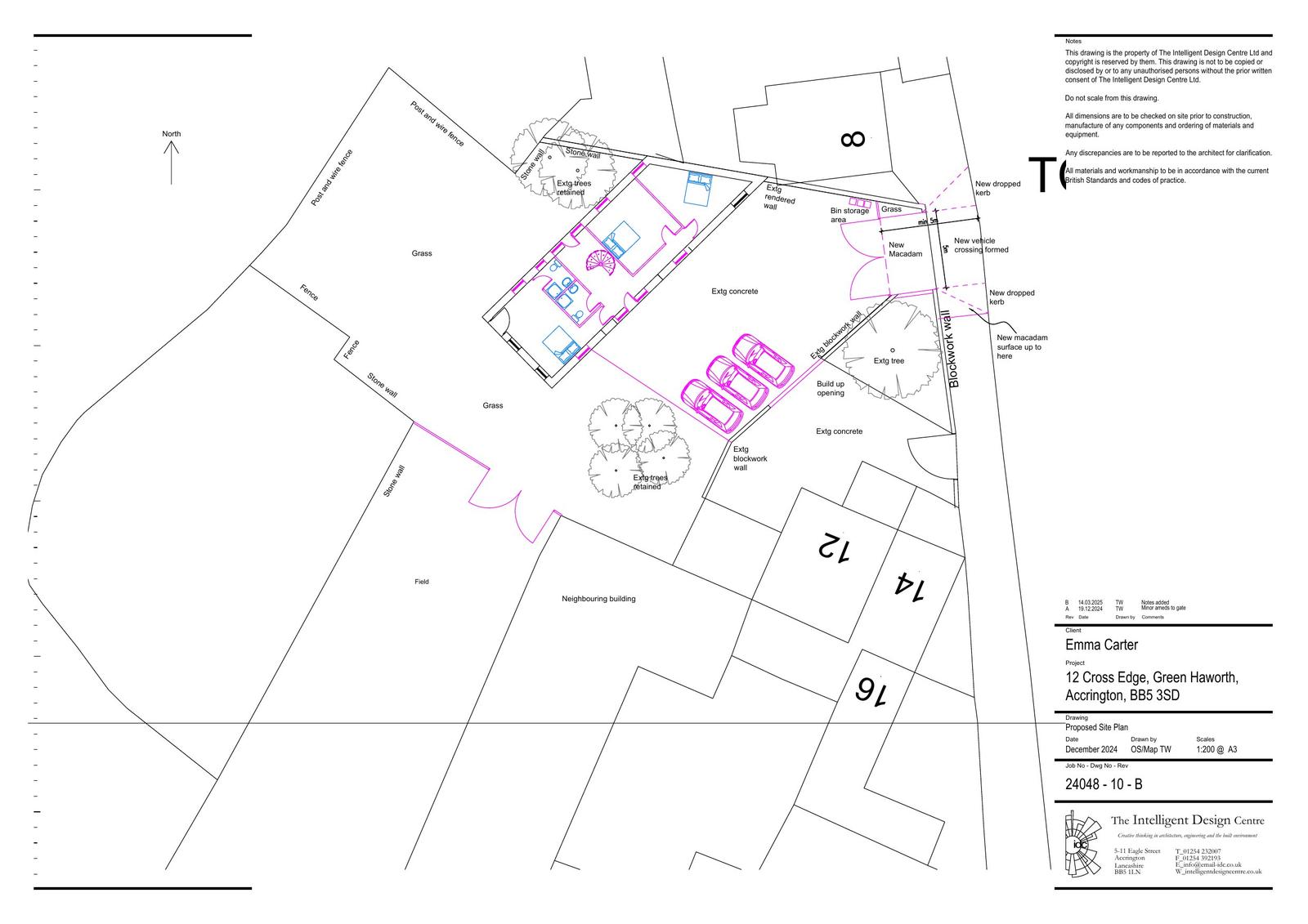
12 Cross Edge, Oswaldtwistle, Accrington, BB5 3SD | Full Planning Application | Full: Conversion and extension of existing barn into a three bedroom dwelling | Application No: 11/25/0113 | Decided: 12 May 2025

Documents

Application Form Redacted
Redacted Application Form
Not yet archived · Original link
Bat Survey Report and Method Statement
Background Papers
Not yet archived · Original link
Constraints 11 25 0113
Background Papers
Not yet archived · Original link
DECNRPP_FINAL2
Decision notice
Not yet archived · Original link
Existing Block Plan
CAD Drawing
Not yet archived · Original link
Existing Plans and Elevations
CAD Drawing
Not yet archived · Original link
CAD Drawing
Archived · Original link
HBC Ecology
Statutory Consultee Response
Not yet archived · Original link
HBC Engineer
Statutory Consultee Response
Not yet archived · Original link
HBC Environmental health
Statutory Consultee Response
Not yet archived · Original link
LCC Highways
Statutory Consultee Response
Not yet archived · Original link
Location Plan
OS Extract
Not yet archived · Original link
Officers Report
Officer's Report - final
Not yet archived · Original link
Planning History 11 25 0113
Background Papers
Not yet archived · Original link
Proposed Block Plan
CAD Drawing
Not yet archived · Original link
CAD Drawing
Archived · Original link
Scheme 1 Plans and Elevations
CAD Drawing
Not yet archived · Original link
Structural Appraisal
Background Papers
Not yet archived · Original link
Volume Calculations
CAD Drawing
Not yet archived · Original link

Have your say

Your comment matters. Councils must consider every representation that raises material planning considerations.

Write a comment